Modify Plan 53-565 - Houseplans.com
Search
REGISTER LOGIN SAVED No Saved Plans CART  Cart Empty

Customize Plan 53-565

Our professional plan designers have been assisting people with plan modifications for decades, providing thousands of homeowners with unique, custom plan designs.

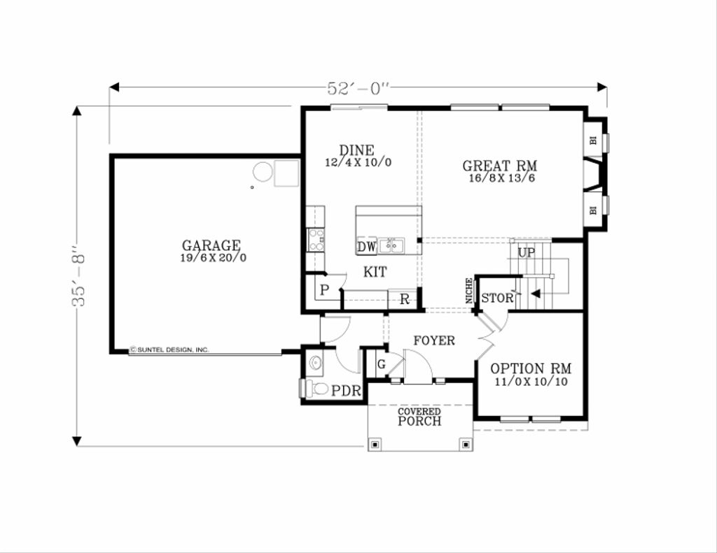
Plan #53-565 Plan 53-565
  • 3 Bedrooms | 
  • 2.5 Baths | 
  • 2 Stories | 
  • 2 Garages | 
  • 2224 sq/ft

Or give us a call at 1-800-913-2350

You may also fax us your desired changes for a quote.
Just print your plan and fax your marked changes to 415-532-2720.

Click here to learn more about plan modification services.

Coupon Codes