Houseplans.com

Questions about this plan? Visit Houseplans.com today or call 1-800-913-2350

View this plan at https://www.houseplans.com/plan/1224-square-feet-3-bedrooms-2-bathroom-traditional-house-plans-1-garage-12513

Plan 30-121

Plan 30-121
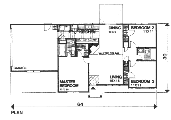
1224 sq/ft,
3 beds,
2 baths,
64' wide,
30' deep

Pricing

Plan Set
8 Copy Set
$825.00
Reproducible Set
$835.00
Foundation
Crawlspace
+$0.00
Framing
Wood 2x4
$0.00
Additional Construction Sets
Each Additional Set
+$50.00/each
Audio Video Design
Each
$165.00
Comprehensive Material List
Each
$295.00
Construction Guide
Each
$39.00
Lighting Design
Each
$165.00
Mirror Reversed Sets
Each Additional Set
+$0.00

House Features

Main Floor Bedrooms
Main Floor Master Bedroom
Split Bedrooms
Walk In Closet
Walk In Pantry Cabinet Pantry
Side Entry Garage
Suited For Corner Lot
Covered Front Porch

Styles Classifications

Ranch
Traditional
Colonial

Specifications

Main Floor
1224 sq/ft
Depth
30'
Width
64'

Floor Plan - Main Floor

Ranch Floor Plan - Main Floor Plan #30-121
Houseplans.com
Questions about this plan? Visit Houseplans.com today or call 1-800-913-2350

View this plan at https://www.houseplans.com/plan/1224-square-feet-3-bedrooms-2-bathroom-traditional-house-plans-1-garage-12513

In addition to the house plans you order, you may also need a site plan that shows where the house is going to be located on the property. You might also need beams sized to accommodate roof loads specific to your region. Your home builder can usually help you with this. You may also need a septic design unless your lot is served by a sanitary sewer system. Many areas now have area-specific energy codes that also have to be followed. This normally involves filling out a simple form providing documentation that your house plans are in compliance.

To find out what documents you should expect with your house plans, see https://www.houseplans.com/whats-included.

In some regions, there is a second step you will need to take to insure your house plans are in compliance with local codes. Some areas of North America have very strict engineering requirements. Examples of this would be earthquake-prone areas of California and the Pacific Coast, hurricane risk areas of the Florida, Gulf & Carolina Coasts. New York, New Jersey, Nevada, and parts of Illinois require review by a local professional as well. If you are building in these areas, it is most likely you will need to hire a state licensed structural engineer to analyze the design and provide additional drawings and calculations required by your building department. If you aren’t sure, building departments typically have a handout they will give you listing all of the items they require to submit for and obtain a building permit.

Additionally, stock plans do not have a professional stamp attached. If your building department requires one, they will only accept a stamp from a professional licensed in the state where you plan to build. In this case, you will need to take your house plans to a local engineer or architect for review and stamping. In addition, plans which are used to construct homes in Nevada are required to be drawn by a licensed Nevada architect.

Note: All sales on house plans are final. No refunds or exchanges can be given once your order has been fulfilled or once we have begun to customize a home plan to your specifications.