Houseplans.com

Questions about this plan? Visit Houseplans.com today or call 1-800-913-2350

View this plan at https://www.houseplans.com/plan/2003-square-feet-3-bedroom-2-bathroom-2-garage-craftsman-modern-contemporary-sp94537

Plan 53-602

Plan 53-602
2003 sq/ft,
3 beds,
2 baths,
36' wide,
65' deep

Pricing

Plan Set
PDF Set
$1695.00
CAD and PDF Set
$2495.00
Foundation
Crawlspace
+$0.00
Slab
+$275.00
Framing
Wood 2x6
$0.00
Wood 2x4
$350.00
Right-Reading Reverse
Each
+$200.00
Additional Use License
Each
$950.00
Audio Video Design
Each
$165.00
Comprehensive Material List
Each
$295.00
Construction Guide
Each
$39.00
Lighting Design
Each
$165.00

House Features

Main Floor Master Bedroom
Upstairs Bedrooms
Walk In Closet
Walk In Pantry Cabinet Pantry
Great Room Living Room
Main Floor Laundry
Play Flex Room
Front Entry Garage
Economical To Build

Styles Classifications

Craftsman
Traditional
Cottage

Specifications

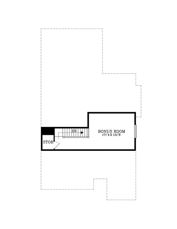
Bonus
368 sq/ft
Garage
390 sq/ft
Main Floor
1635 sq/ft
Upper Floor
368 sq/ft
Depth
65'
Height
24' 9"
Width
36'
Primary Pitch
7:12
Roof Framing
TRUSS
Roof Load
30LB
Roof Type
COMPOSITION
Ceiling Details
COFFERED
Main Ceiling
9'

Floor Plan - Main Floor

Craftsman Floor Plan - Main Floor Plan #53-602

Floor Plan - Upper Floor

Craftsman Floor Plan - Upper Floor Plan #53-602
Houseplans.com
Questions about this plan? Visit Houseplans.com today or call 1-800-913-2350

View this plan at https://www.houseplans.com/plan/2003-square-feet-3-bedroom-2-bathroom-2-garage-craftsman-modern-contemporary-sp94537

In addition to the house plans you order, you may also need a site plan that shows where the house is going to be located on the property. You might also need beams sized to accommodate roof loads specific to your region. Your home builder can usually help you with this. You may also need a septic design unless your lot is served by a sanitary sewer system. Many areas now have area-specific energy codes that also have to be followed. This normally involves filling out a simple form providing documentation that your house plans are in compliance.

To find out what documents you should expect with your house plans, see https://www.houseplans.com/whats-included.

In some regions, there is a second step you will need to take to insure your house plans are in compliance with local codes. Some areas of North America have very strict engineering requirements. Examples of this would be earthquake-prone areas of California and the Pacific Coast, hurricane risk areas of the Florida, Gulf & Carolina Coasts. New York, New Jersey, Nevada, and parts of Illinois require review by a local professional as well. If you are building in these areas, it is most likely you will need to hire a state licensed structural engineer to analyze the design and provide additional drawings and calculations required by your building department. If you aren’t sure, building departments typically have a handout they will give you listing all of the items they require to submit for and obtain a building permit.

Additionally, stock plans do not have a professional stamp attached. If your building department requires one, they will only accept a stamp from a professional licensed in the state where you plan to build. In this case, you will need to take your house plans to a local engineer or architect for review and stamping. In addition, plans which are used to construct homes in Nevada are required to be drawn by a licensed Nevada architect.

Note: All sales on house plans are final. No refunds or exchanges can be given once your order has been fulfilled or once we have begun to customize a home plan to your specifications.