Houseplans.com

Questions about this plan? Visit Houseplans.com today or call 1-800-913-2350

View this plan at https://www.houseplans.com/plan/2822-square-feet-4-bedroom-4-5-bathroom-2-garage-farmhouse-country-sp272464

Plan 929-1111

Plan 929-1111
2822 sq/ft,
4 beds,
4.5 baths,
67' 8" wide,
67' 2" deep

Pricing

Plan Set
PDF Set
$1925.00
CAD Unlimited Build
$3350.00
Study Set
$1725.00
Foundation
Crawlspace
+$0.00
Basement
+$470.00
Slab
+$470.00
Framing
Wood 2x4
$0.00
Wood 2x6
$470.00
Right-Reading Reverse
Each
+$470.00
Audio Video Design
Each
$165.00
Lighting Design
Each
$165.00
Material List
Each
+$450.00

House Features

Main Floor Master Bedroom
Split Bedrooms
Upstairs Bedrooms
Walk In Closet
Kitchen Island
Walk In Pantry Cabinet Pantry
Den Office Study Computer
Great Room Living Room
Main Floor Laundry
Mud Room
Unfinished Future Space
Side Entry Garage
Covered Front Porch
Covered Rear Porch
Screened Porch

Styles Classifications

Farmhouse
Country

Specifications

Bonus
438 sq/ft
Garage
624 sq/ft
Main Floor
2093 sq/ft
Patios
499 sq/ft
Porch
749 sq/ft
Upper Floor
729 sq/ft
Depth
67' 2"
Height
29'
Width
67' 8"
Primary Pitch
11/12
Roof Framing
Stick/Conventional
Roof Load
Live 20 psf / dead 15 psf / Wind 115 mph
Roof Type
Asphalt
Secondary Pitch
12/12
Bonus Ceiling
8'
Main Ceiling
9'
Upper Ceiling Ft
8'

Floor Plan - Main Floor

Farmhouse Floor Plan - Main Floor Plan #929-1111

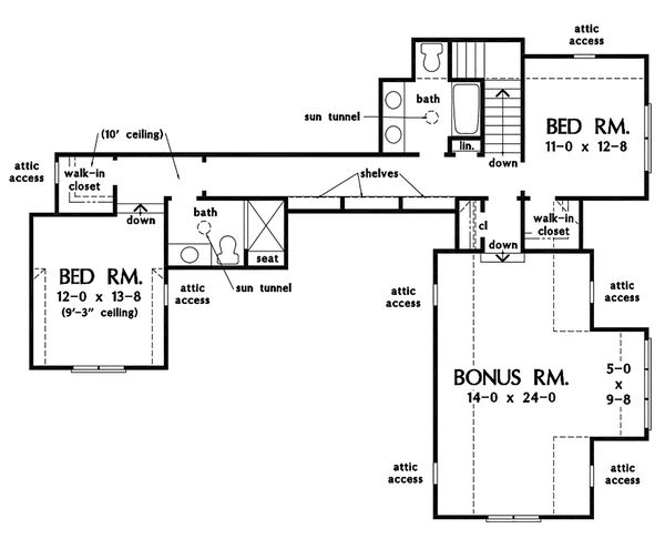
Floor Plan - Upper Floor

Farmhouse Floor Plan - Upper Floor Plan #929-1111
Houseplans.com
Questions about this plan? Visit Houseplans.com today or call 1-800-913-2350

View this plan at https://www.houseplans.com/plan/2822-square-feet-4-bedroom-4-5-bathroom-2-garage-farmhouse-country-sp272464

In addition to the house plans you order, you may also need a site plan that shows where the house is going to be located on the property. You might also need beams sized to accommodate roof loads specific to your region. Your home builder can usually help you with this. You may also need a septic design unless your lot is served by a sanitary sewer system. Many areas now have area-specific energy codes that also have to be followed. This normally involves filling out a simple form providing documentation that your house plans are in compliance.

To find out what documents you should expect with your house plans, see https://www.houseplans.com/whats-included.

In some regions, there is a second step you will need to take to insure your house plans are in compliance with local codes. Some areas of North America have very strict engineering requirements. Examples of this would be earthquake-prone areas of California and the Pacific Coast, hurricane risk areas of the Florida, Gulf & Carolina Coasts. New York, New Jersey, Nevada, and parts of Illinois require review by a local professional as well. If you are building in these areas, it is most likely you will need to hire a state licensed structural engineer to analyze the design and provide additional drawings and calculations required by your building department. If you aren’t sure, building departments typically have a handout they will give you listing all of the items they require to submit for and obtain a building permit.

Additionally, stock plans do not have a professional stamp attached. If your building department requires one, they will only accept a stamp from a professional licensed in the state where you plan to build. In this case, you will need to take your house plans to a local engineer or architect for review and stamping. In addition, plans which are used to construct homes in Nevada are required to be drawn by a licensed Nevada architect.

Note: All sales on house plans are final. No refunds or exchanges can be given once your order has been fulfilled or once we have begun to customize a home plan to your specifications.