Houseplans.com

Questions about this plan? Visit Houseplans.com today or call 1-800-913-2350

View this plan at https://www.houseplans.com/plan/3412-square-feet-5-bedroom-4-bathroom-3-garage-farmhouse-modern-sp295815

Plan 569-100

Plan 569-100
3412 sq/ft,
5 beds,
4 baths,
40' wide,
52' deep

Pricing

Plan Set
PDF Set
$1600.00
CAD Set
$2300.00
Foundation
Daylight Basement
+$0.00
Framing
Wood 2x6
$0.00
Audio Video Design
Each
$165.00
Comprehensive Material List
Each
$395.00
Construction Guide
Each
$39.00
Lighting Design
Each
$165.00

House Features

Guest Suite
Lower Level Bedrooms
Main Floor Bedrooms
Upstairs Bedrooms
Upstairs Master Bedrooms
Walk In Closet
Eating Bar
Kitchen Island
Walk In Pantry Cabinet Pantry
Great Room Living Room
Media Room
Upstairs Laundry
Front Entry Garage
Garage Under
Covered Front Porch

Styles Classifications

Traditional

Specifications

Garage
622 sq/ft
Lower Floor
824 sq/ft
Main Floor
1444 sq/ft
Porch
62 sq/ft
Upper Floor
1144 sq/ft
Depth
52'
Height
39' 8"
Width
40'
Primary Pitch
8:12
Roof Framing
Truss
Roof Type
Composition
Lower Ceiling
9'
Main Ceiling
9'
Upper Ceiling Ft
8'

Floor Plan - Main Floor

Traditional Floor Plan - Main Floor Plan #569-100

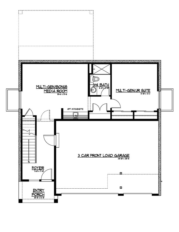
Floor Plan - Upper Floor

Traditional Floor Plan - Upper Floor Plan #569-100

Floor Plan - Lower Floor

Traditional Floor Plan - Lower Floor Plan #569-100
Houseplans.com
Questions about this plan? Visit Houseplans.com today or call 1-800-913-2350

View this plan at https://www.houseplans.com/plan/3412-square-feet-5-bedroom-4-bathroom-3-garage-farmhouse-modern-sp295815

In addition to the house plans you order, you may also need a site plan that shows where the house is going to be located on the property. You might also need beams sized to accommodate roof loads specific to your region. Your home builder can usually help you with this. You may also need a septic design unless your lot is served by a sanitary sewer system. Many areas now have area-specific energy codes that also have to be followed. This normally involves filling out a simple form providing documentation that your house plans are in compliance.

To find out what documents you should expect with your house plans, see https://www.houseplans.com/whats-included.

In some regions, there is a second step you will need to take to insure your house plans are in compliance with local codes. Some areas of North America have very strict engineering requirements. Examples of this would be earthquake-prone areas of California and the Pacific Coast, hurricane risk areas of the Florida, Gulf & Carolina Coasts. New York, New Jersey, Nevada, and parts of Illinois require review by a local professional as well. If you are building in these areas, it is most likely you will need to hire a state licensed structural engineer to analyze the design and provide additional drawings and calculations required by your building department. If you aren’t sure, building departments typically have a handout they will give you listing all of the items they require to submit for and obtain a building permit.

Additionally, stock plans do not have a professional stamp attached. If your building department requires one, they will only accept a stamp from a professional licensed in the state where you plan to build. In this case, you will need to take your house plans to a local engineer or architect for review and stamping. In addition, plans which are used to construct homes in Nevada are required to be drawn by a licensed Nevada architect.

Note: All sales on house plans are final. No refunds or exchanges can be given once your order has been fulfilled or once we have begun to customize a home plan to your specifications.