Houseplans.com

Questions about this plan? Visit Houseplans.com today or call 1-800-913-2350

View this plan at https://www.houseplans.com/plan/3123-square-feet-4-bedroom-3-bathroom-2-garage-farmhouse-sp298856

Plan 54-484

Plan 54-484
3123 sq/ft,
4 beds,
3 baths,
84' 10" wide,
61' deep

Pricing

Plan Set
PDF Set
$2195.00
CAD Set
$3245.00
Foundation
Walk Out Basement
+$0.00
Crawlspace
+$350.00
Slab
+$350.00
Framing
Wood 2x6
$350.00
Right-Reading Reverse
Each
+$250.00
Audio Video Design
Each
$165.00
Comprehensive Material List
Each
$395.00
Construction Guide
Each
$39.00
Lighting Design
Each
$165.00

House Features

Styles Classifications

Ranch
Traditional
Craftsman

Specifications

Basement
1247 sq/ft
Garage
608 sq/ft
Main Floor
1876 sq/ft
Storage
250 sq/ft
Depth
61'
Height
25' 8"
Width
84' 10"
Lower Ceiling
10'
Main Ceiling
10'

Floor Plan - Main Floor

Ranch Floor Plan - Main Floor Plan #54-484

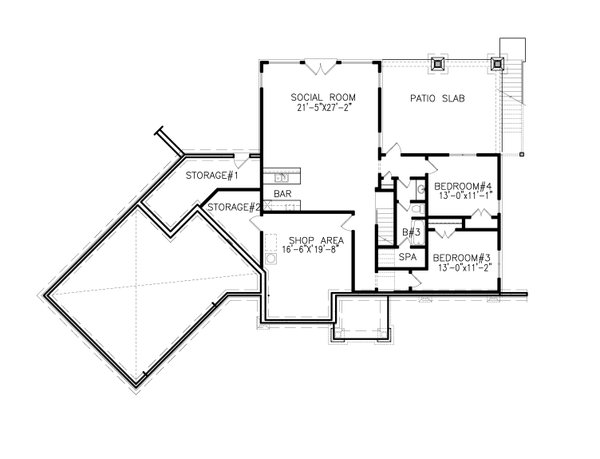
Floor Plan - Lower Floor

Ranch Floor Plan - Lower Floor Plan #54-484
Houseplans.com
Questions about this plan? Visit Houseplans.com today or call 1-800-913-2350

View this plan at https://www.houseplans.com/plan/3123-square-feet-4-bedroom-3-bathroom-2-garage-farmhouse-sp298856

In addition to the house plans you order, you may also need a site plan that shows where the house is going to be located on the property. You might also need beams sized to accommodate roof loads specific to your region. Your home builder can usually help you with this. You may also need a septic design unless your lot is served by a sanitary sewer system. Many areas now have area-specific energy codes that also have to be followed. This normally involves filling out a simple form providing documentation that your house plans are in compliance.

To find out what documents you should expect with your house plans, see https://www.houseplans.com/whats-included.

In some regions, there is a second step you will need to take to insure your house plans are in compliance with local codes. Some areas of North America have very strict engineering requirements. Examples of this would be earthquake-prone areas of California and the Pacific Coast, hurricane risk areas of the Florida, Gulf & Carolina Coasts. New York, New Jersey, Nevada, and parts of Illinois require review by a local professional as well. If you are building in these areas, it is most likely you will need to hire a state licensed structural engineer to analyze the design and provide additional drawings and calculations required by your building department. If you aren’t sure, building departments typically have a handout they will give you listing all of the items they require to submit for and obtain a building permit.

Additionally, stock plans do not have a professional stamp attached. If your building department requires one, they will only accept a stamp from a professional licensed in the state where you plan to build. In this case, you will need to take your house plans to a local engineer or architect for review and stamping. In addition, plans which are used to construct homes in Nevada are required to be drawn by a licensed Nevada architect.

Note: All sales on house plans are final. No refunds or exchanges can be given once your order has been fulfilled or once we have begun to customize a home plan to your specifications.