Houseplans.com

Questions about this plan? Visit Houseplans.com today or call 1-800-913-2350

View this plan at https://www.houseplans.com/plan/2906-square-feet-4-bedroom-3-5-bathroom-2-garage-southern-traditional-sp361098

Plan 1094-19

Plan 1094-19
2906 sq/ft,
4 beds,
3.5 baths,
81' wide,
63' deep

Pricing

Plan Set
PDF Set
$1895.00
CAD and PDF Set Unlimited Build
$2695.00
Foundation
Crawlspace
+$0.00
Right-Reading Reverse
Each
+$250.00
Audio Video Design
Each
$165.00
Construction Guide
Each
$39.00

House Features

Main Floor Master Bedroom
Upstairs Bedrooms
Walk In Closet
Breakfast Nook
Eating Bar
Kitchen Island
Walk In Pantry Cabinet Pantry
Great Room Living Room
Loft
Upstairs Laundry
Detached Garage
Breezeway
Covered Front Porch
Grill Deck Sundeck
Additional Half Bath
Jack & Jill Bath
Unusual Shape

Styles Classifications

Cottage
Traditional
Southern

Specifications

Decks
273 sq/ft
Main Floor
1956 sq/ft
Porch
200 sq/ft
Upper Floor
950 sq/ft
Depth
63'
Height
28' 6"
Width
81'
Primary Pitch
10:12
Roof Framing
Stick
Secondary Pitch
3:12
Ceiling Details
Owner's Bedroom 9'-1" clg.
Garage Ceiling
10' 5"
Main Ceiling
10' 1"
Upper Ceiling Ft
8' 6"

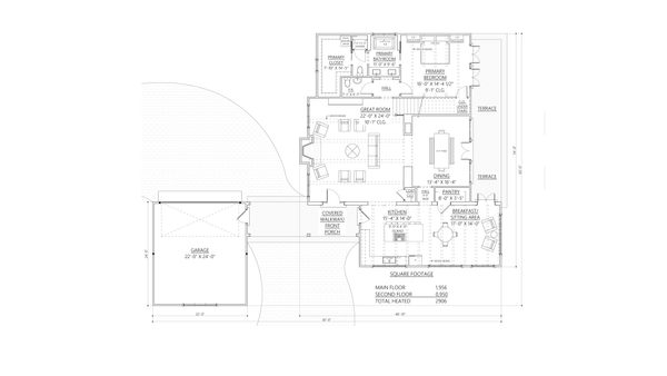
Floor Plan - Main Floor

Cottage Floor Plan - Main Floor Plan #1094-19

Floor Plan - Upper Floor

Cottage Floor Plan - Upper Floor Plan #1094-19
Houseplans.com
Questions about this plan? Visit Houseplans.com today or call 1-800-913-2350

View this plan at https://www.houseplans.com/plan/2906-square-feet-4-bedroom-3-5-bathroom-2-garage-southern-traditional-sp361098

In addition to the house plans you order, you may also need a site plan that shows where the house is going to be located on the property. You might also need beams sized to accommodate roof loads specific to your region. Your home builder can usually help you with this. You may also need a septic design unless your lot is served by a sanitary sewer system. Many areas now have area-specific energy codes that also have to be followed. This normally involves filling out a simple form providing documentation that your house plans are in compliance.

To find out what documents you should expect with your house plans, see https://www.houseplans.com/whats-included.

In some regions, there is a second step you will need to take to insure your house plans are in compliance with local codes. Some areas of North America have very strict engineering requirements. Examples of this would be earthquake-prone areas of California and the Pacific Coast, hurricane risk areas of the Florida, Gulf & Carolina Coasts. New York, New Jersey, Nevada, and parts of Illinois require review by a local professional as well. If you are building in these areas, it is most likely you will need to hire a state licensed structural engineer to analyze the design and provide additional drawings and calculations required by your building department. If you aren’t sure, building departments typically have a handout they will give you listing all of the items they require to submit for and obtain a building permit.

Additionally, stock plans do not have a professional stamp attached. If your building department requires one, they will only accept a stamp from a professional licensed in the state where you plan to build. In this case, you will need to take your house plans to a local engineer or architect for review and stamping. In addition, plans which are used to construct homes in Nevada are required to be drawn by a licensed Nevada architect.

Note: All sales on house plans are final. No refunds or exchanges can be given once your order has been fulfilled or once we have begun to customize a home plan to your specifications.