Blog Home > How Much Does it Cost to Build a House in Florida?

The Houseplans Blog

How Much Does it Cost to Build a House in Florida?

Explore Florida house plans.

Hero Image
Courtney Pittman

July 10, 2025

Livabl Brand

Can't find what you're looking for?

Give us a call below or reach out and we’ll make sure to be in contact!

Send Us a Message

Florida house plans effortlessly blend indoor and outdoor living, inviting sunshine and breezes into every room. Designed for comfort and privacy, these homes feature open layouts, spacious porches, and thoughtful details that enhance daily life.

With details like airy kitchens and seamless transitions to outdoor spaces, Florida-style home plans bring a relaxed elegance to everyday living.

How much does it cost to build a house in Florida? That depends on several factors, including location, square footage, layout, finish selections, and more.

We reached out to architect Robert Bucher, whose designs we will be selling soon, to get a clearer picture of current building costs in Florida. See his helpful interview below. (Answers have been lightly edited for clarity.)

Ready for more? Explore our collection of Florida house plans here.

What Factors Affect House Building Costs in Florida?

Several things affect building costs in Florida. Firstly, it depends on which part of the state your site is in. The Florida Residential Building Code is often amended by county and/or also by municipality.

Each AHJ (Authority Having Jurisdiction) typically will amend the code for local factors such as climate zones, flood prone considerations, high wind considerations, higher termite concentrations, specific energy codes, etc.

In addition, Florida is the lightning “capital” of the US so such protection considerations must also be included in a new home build. Impact fenestration protection is also part of several regional codes and must be also included in any design.

Soil conditions vary within the state which impacts your foundation design but in virtually all cases, basement construction is not an option so you should plan accordingly. For instance, coastal soil conditions are different than central or northern parts of Florida soils.

Rock formations or potential sinkhole and aquifer regions' geotechnical profiles must be considered when purchasing a site. Regional build costs are also affected by typical coastal construction types such as CMU and concrete systems versus more interior parts of the state which typically realize more wood and light gauge steel construction types.

What’s the Cost Breakdown for Building a New Home in Florida?

With a more production level home builder grade home you can expect to be in the $150 to $250 per square foot [range] PLUS land, sitework and utilities.

The luxury price point home starts around $325 [per] square foot and certainly can skyrocket from there depending on the levels of finish and the location.

The breakdown cost is typically 40% for labor and $60% for materials.

How Much Does It Cost to Build a Small House?

A modest small house typically would be in the $150 to $250 [per] square foot range (building structure only).

How Much Does It Cost to Build a 2,000 Sq Ft House?

A builder grade production level house at that size would be in the $175 to $275 [per] square foot range (again, building structure only).

What Permits and Fees Should You Expect in Florida?

Aside from the typical AHJ building permit and subcontractor fees, plan sets sealed by a licensed architect or engineer must be submitted with the submission. Also, you must submit either NOA (Notice Of Acceptance) or FPA (Florida Product Approvals) forms detailing the specifications and installation of building products pertaining to the exterior construction.

In addition, the new home location must be considered. If the site is rural and requires on-site utilities such as a well, septic system and electrical and gas systems, there are health department permit fees and associated fees with civil engineering/site design.

If the lot is a city infill property for example, then there will be utility connectivity fees for gas, electric, water and sanitary. In all cases, the higher cost of insurance in Florida affects overall construction and build costs.

What’s the Average Cost of Materials for a New Home in Florida?

Certainly, that greatly depends on location and the level of finishes. Typically, a builder grade or small home would be in the $95 [per] square foot [range] for materials to start. However, for luxury homes it can be virtually limitless.

How Do Florida Building Codes Affect Construction Costs?

Florida has two different climate zones and several local AHJs that have amended the State Residential Building Code by region.

Therefore, Code items such as construction types, termite protection, lighting mitigation, impact resistant fenestration systems, flood elevation construction and general wind resistant building design systems all directly affect construction costs.

Explore these Florida house plans!

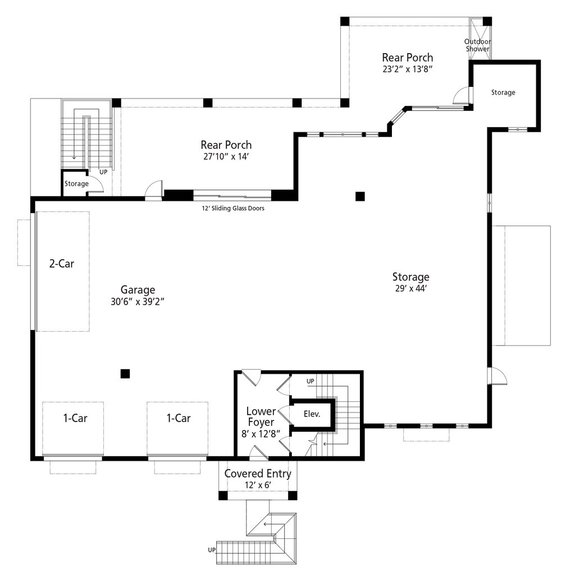
Lots of Outdoor Living

Lots of Outdoor Living Lots of Outdoor Living - Front Exterior

Lots of Outdoor Living Lots of Outdoor Living - Main Level

Lots of Outdoor Living Lots of Outdoor Living - Upper Level

Lots of Outdoor Living Lots of Outdoor Living - Lower Level

Here’s a comfortable Florida-style house plan that offers a welcoming layout and plenty of curb appeal. We love the bright, open great room, which features a vaulted ceiling that adds drama and draws the eye up. The kitchen gives you a large island that connects easily to both the rear porch and the outdoor kitchen area.

The split-bedroom design provides privacy. The lower level offers a three-car garage and lots of storage. Don’t miss the versatile loft.

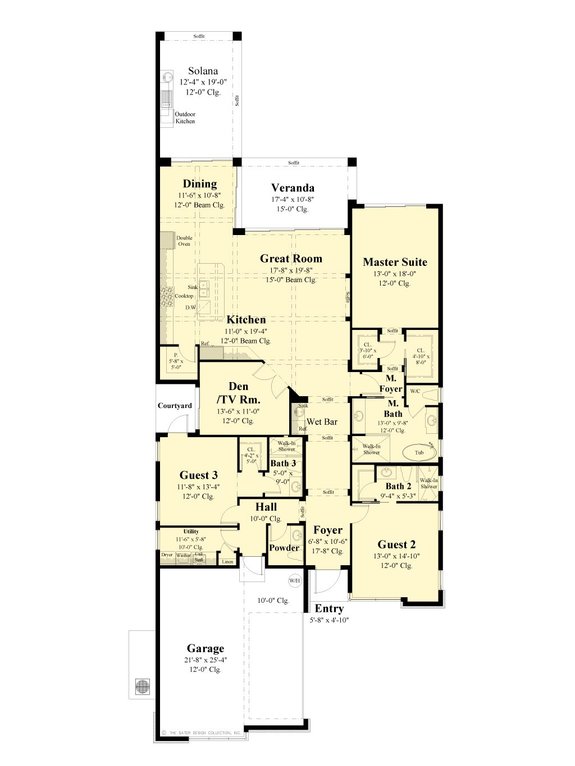
Modern Florida House Plan

Modern Florida House Plan Modern Florida House Plan - Front Exterior

Modern Florida House Plan Modern Florida House Plan - Main Level

This Florida house plan shows off modern curb style with clean, sleek lines. Inside, the open floor plan boasts a great room, a modern kitchen with an island, and a walk-in pantry. The great room offers seamless indoor-outdoor living, featuring a wall of sliding glass doors that connect to the veranda.

Two closets and a generous walk-in shower highlight the primary suite. Two more bedroom suites rest near the front of the plan. Check out the versatile den and the cool wet bar.

Three Bedroom Suites

Three Bedroom Suites Three Bedroom Suites - Front Exterior

Three Bedroom Suites Three Bedroom Suites - Main Level

Three Bedroom Suites Three Bedroom Suites - Lower Level

Looking for a house plan that feels both spacious and welcoming? Showcasing a Florida-style design, this plan offers an open-concept layout for seamless living and easy entertaining. The split-bedroom setup gives everyone privacy.

The primary suite delivers luxury with two closets, a sitting room, and a spa-like bath. The laundry room sits conveniently close by, while two more bedroom suites reside on the left side of the plan. Other highlights include a four-car garage with dedicated storage, a den/wine room, and a spacious rear porch.

Seamless Indoor/Outdoor Living

Seamless Indoor/Outdoor Living Seamless Indoor/Outdoor Living - Front Exterior

Seamless Indoor/Outdoor Living Seamless Indoor/Outdoor Living - Main Level

In the market for a design that blends modern style with everyday comfort? Here ya go! This contemporary ranch plan features an open-concept layout, a vaulted great room, and seamless indoor/outdoor living connections.

Clean lines, abundant natural light, and smart storage solutions add to its charm. Stylish barn doors hide the flexible study. We love the outdoor kitchen and the large walk-in shower in the primary suite.

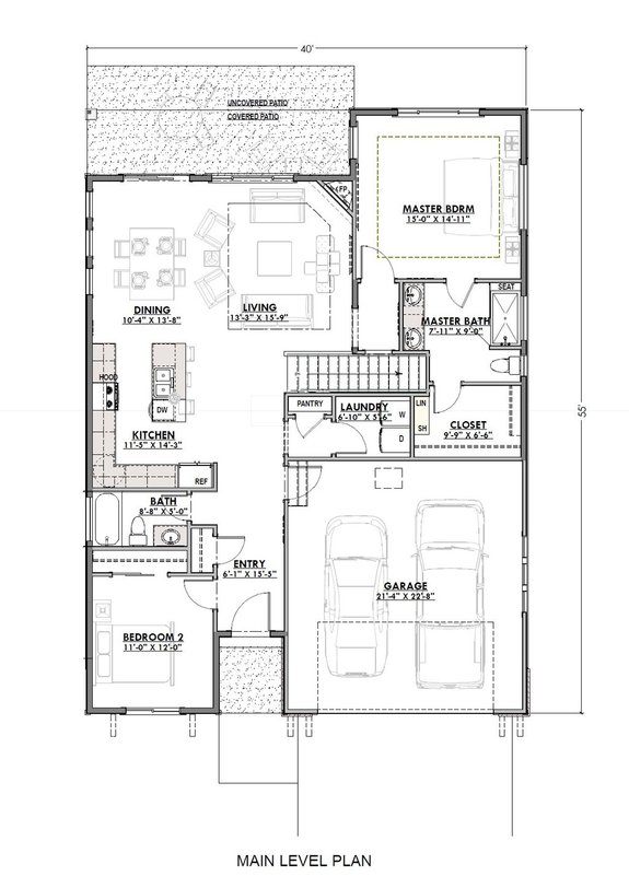
Small Florida House Plan

Small Florida House Plan Small Florida House Plan - Front Exterior

Small Florida House Plan Small Florida House Plan - Main Level

Here’s a modest Florida house plan (1,474 square feet) that boasts farmhouse features like vertical siding and metal roof accents. Inside, the open layout between the main gathering areas makes the space feel larger than it is. The L-shaped kitchen features an island and ample counter space.

At the front of the plan, a two-car garage adds convenience and room for organization. Nice weather? Take advantage of outdoor living on the rear patio.

Luxury Florida House Plan

Luxury Florida House Plan Luxury Florida House Plan - Front Exterior

Luxury Florida House Plan Luxury Florida House Plan - Main Level

Luxury Florida House Plan Luxury Florida House Plan - Upper Level

This thoughtfully designed Florida house plan delivers luxury in 3,262 square feet. With three bedroom suites, everyone gets their own space (no morning traffic jams). The vaulted great room opens to the U-shaped kitchen and the dining room. Check out the handy wet bar.

An outdoor kitchen on the covered lanai makes it easy to enjoy fresh air and good company, rain or shine. Just off the two-car garage (with room for a golf cart!), a mudroom keeps daily life organized and clutter-free. Our favorite part? The main-level primary suite, which features an outdoor shower.

See more Florida house plans.

How Much Does it Cost to Build a House in Florida? Inspiration

Get Our Newsletter

Be the first to see new plans, special offers, and more.

By signing up for our newsletter, you agree to our Terms & Conditions and Privacy Policy, for an account

Blog Subscribe Icon