Colonial Style House Plan - 3 Beds 2.5 Baths 1660 Sq/Ft Plan #1053-34 - Houseplans.com
Search
REGISTER LOGIN SAVED No Saved Plans CART  Cart Empty
Don't lose your saved plans! Create an account to access your saves whenever you want. See our Terms & Conditions and Privacy Policy.
OR
Plan 1053-34
Photographs may show modified designs.
Home  >  Style  >  Colonial

Colonial House Plan 1053-34

Key Specs


Plan Sq Ft

1660
sq ft

Plan Bedrooms

3
Beds

Plan Bathrooms

2.5
Baths

Plan Floors

2
Floors

Plan Garages

2
Garages

Questions? Get Personalized Help
Select Plan Set Options
What's included?
Additional Construction Sets$60.00/each

Additional hard copies of the plan (can be ordered at the time of purchase and within 90 days of the purchase date).

$100.00
$39.00
$100.00
Mirror Reversed Sets$60.00

Printed sets showing plan in reverse, text and dimensions will be backwards.

Subtotal
$840.00
Best Price Guaranteed

Or order by phone: 1-800-913-2350
Questions? Get Personalized Help
 

 
Hours:
Ready for Your Call 7 Days a Week
Every Day 7 am - 8:30 pm Eastern

See Terms & Conditions and Privacy Policy.

Thanks for your question.

We will be in touch shortly.

Wow!
Cost to Build Reports
$1.99 with Code
CTB2026 (Limit 1)
Our Cost to Build Report gives you a personalized estimate for building your home, based on your location, plan, and materials.

Residential Construction Guide

Learn Building Basics

This downloadable, 26-page guide is full of diagrams and details about plumbing, electrical, and more.

Key Specs


Plan Sq Ft

1660
sq ft

Plan Bedrooms

3
Beds

Plan Bathrooms

2.5
Baths

Plan Floors

2
Floors

Plan Garages

2
Garages

Plan Description


This colonial design floor plan is 1660 sq ft and has 3 bedrooms and 2.5 bathrooms.

This plan can be customized!

Tell us about your desired changes so we can prepare an estimate for the design service. Click the button to submit your request for pricing, or call 1-800-913-2350.

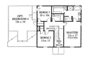
Floor Plans


Floor Plan - Main Floor

Reverse
houseplans LOGO

BUILDER Advantage Program

PRO BUILDERS

Join the club and save 5% on your first order.
PLUS download exclusive discounts and more.

LEARN MORE

Floor Plan - Upper Floor

Reverse

Full Specs & Features


Basic Features

Bedrooms : 3
Baths : 2.5
Stories: 2
Garages: 2

Dimension

Depth : 28'
Height : 29'
Width : 50'

Area

Total : 1660 sq/ft
Bonus: 407 sq/ft
First Floor: 845 sq/ft height 8'
Second Floor: 815 sq/ft
* Total Square Footage typically only includes conditioned space and does not include garages, porches, bonus rooms, or decks.

Roof

Primary Pitch : 8:12
Roof Framing : Conventional

Exterior Wall Framing

Exterior Wall Finish : Siding
Framing : Wood - 2x4

Bedroom Features

Fireplace
Formal Dining Room
Walk In Closet

Kitchen Features

Breakfast Nook
Kitchenette Wet Bar
Walk In Pantry Cabinet Pantry

Additional Room Features

Family Room Keeping Room
Main Floor Laundry

Outdoor Spaces

Courtyard
Covered Front Porch

What's included in this plan set


See a sample plan set

All plans are drawn at ¼” scale or larger and include :

  • Foundation Plan: This page shows all necessary notations and dimensions including support columns, walls, and excavated/unexcavated areas.
  • Exterior Elevations: Views of the home from all four sides showing exterior materials and measurements.
  • Floor Plan(s): Detailed plans for each level showing room dimensions, wall partitions, windows and doors, etc.
  • Cross Section: A slice of the home from roof to foundation, showing important details like stairs and wall construction.
  • Overhead Roof Plan(s): A view of the home from above showing roof pitch, peaks, valleys, and other details.
  • Construction Notes and Details: Shows the builder how things come together, like walls, the chimney, insulation, and more.
* See important information before purchasing

Pricing


Plan Options

PDF Set

Best Value!
$840.00
PDF plan sets are best for fast electronic delivery and inexpensive local printing.

5 Copy Set

$945.00
5 printed plan sets mailed to you.

Foundation Options

Basement

$0.00
Ideal for level lot, lower level of home partially or fully underground.

*Options with a fee may take time to prepare. Please call to confirm.

Framing Options

Wood 2x4

$0.00
Wood 2x4 Exterior Walls

*Options with a fee may take time to prepare. Please call to confirm.

Additional Options

Additional Construction Sets

$60.00
Additional hard copies of the plan (can be ordered at the time of purchase and within 90 days of the purchase date).

Audio Video Design

$100.00
Receive an overlay sheet with suggested placement of audio and video components.

Construction Guide

$39.00
Educate yourself about basic building ideas with these four detailed diagrams that discuss electrical, plumbing, mechanical, and structural topics.

Lighting Design

$100.00
Receive an overlay sheet with suggested placement of lighting fixtures.

Mirror Reversed Sets

$60.00
A mirror-reversed set is a printed copy of your house, resulting in the same image you would see if you held the drawing up to a mirror. Everything, including the text, is backward in relation to the original design. These kinds of drawing are typically used to reorient an original plan more advantageously on a site, either because the homeowner prefers it that way or because of limitations of the site itself. Note: Mirror reverse sets are only available with a 5 copy or 8 copy set. With a Reproducible, PDF, or CAD set, you can print mirrored copies locally. In addition: 5 Copy set selected, should only allow 4 mirrored sets to be selected. 8 Copy set selected, should only allow 7 mirrored sets to be selected.

*Options with a fee may take time to prepare. Please call to confirm.

Unless you buy an “unlimited” plan set or a multi-use license you may only build one home from a set of plans. Please call to verify if you intend to build more than once. Plan licenses are non-transferable and cannot be resold.

Need help? Let our friendly experts help you find the perfect plan!

Contact us now for a free consultation.

Today's Deals