Don't lose your saved plans! 
Create an account to access your saves whenever you want. See our Terms & Conditions and Privacy Policy.
OR

Cabin House Plan 3-279 1721 Sq Ft, 3 Bed, 2 Bath, 2 Floor, 1 Garage

Key Specs
  • 3
    Beds
  • 2
    Baths
  • 2
    Floors
  • 1
    Garages
  • 1721
    Square Feet
With its wraparound deck and soaring windows, this spectacular chalet-style home is ideal for scenic sites. Living and dining spaces combine to take advantage of the dramatic cathedral ceiling, the rugged stone fireplace, and the view through the floor-to-ceiling windows. The open kitchen features a bright corner sink and a seated breakfast bar. Two bedrooms use a full bath and the convenient main-floor laundry area. On the second level, the master suite enjoys a den, a private full bath with separate shower and tub, and a walk-in closet. The high ceiling gives this space an elegant feel. The unfinished basement option of this plan includes a tuck-under garage and lots of space to finish later as a family room or lounge.

Questions on this plan?

New to the process and looking for some help to kick things off? Let us know a bit about your plans and we’ll be happy to help.

Budget & Customization Tools

Modify icon
Customize this Plan
Tell us about your desired changes and we can prepare an estimate.
Cost to Build icon
Cost to Build Report
A personalized estimate based on your location, plan, & materials.
Cost to Build icon
Residential Construction Guide
This downloadable, 26-page guide is full of diagrams and details about plumbing, electrical, and more.

Full specs & Features

Basic Features

Bedrooms: 3
Baths: 2
Stories: 2
Garages: 1

Dimension

Depth: 46'
Height: 24' 4"
Width: 25' 4"

Area

Total: 1721 sq/ft
Basement Unfinished: 717 sq/ft
First Floor: 1165 sq/ft
Garage: 448 sq/ft
Second Floor: 556 sq/ft
* Total Square Footage typically only includes conditioned space and does not include garages, porches, bonus rooms, or decks.

Roof

Primary Pitch: 12:12
Roof Framing: Conventional
Secondary Pitch: 6:12

Exterior Wall Framing

Exterior Wall Finish: Siding
Framing: Wood - 2x6 Wood - 2x4

Bedroom Features

Fireplace
Formal Dining Room
Walk In Closet

Kitchen Features

Kitchenette Wet Bar

Additional Room Features

Den Office Study Computer

Outdoor Spaces

Deck

What's Included

Content may vary depending on the size and complexity of the home and the style of the individual designer:Plans are typically drawn to ¼” scale and include:
  • Foundation Plan(s): This page shows all necessary notations and dimensions including footings, support columns, walls, and excavated/unexcavated areas.
  • Floor Plan(s): Detailed plans for each level showing room dimensions, wall partitions, windows and doors, fixture locations, and ceiling treatments.
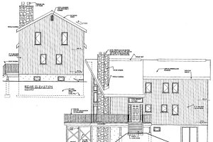
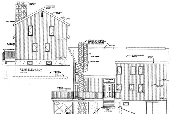
  • Exterior Elevations: show the front, rear and sides of the house, including exterior materials, details and measurements.
  • Interior Elevations: show the specific details of cabinets (kitchen).
  • Overhead Roof Plan(s): A view of the home from above showing roof pitch, peaks, valleys, and other details.
  • Cross Section(s): Show details of the house as though it were cut in slices from the roof to the foundation. The cross sections specify the home's construction, insulation, flooring and roofing details.
  • Electrical Plan(s): Schematic electrical layouts show the suggested locations for switches, fixtures and outlets. These details may be shown on the floor plan or on a separate diagram.
  • Construction Notes / Detail(s): Shows basic parts and assemblies recommended for the home so the builder can see how things come together.

FAQs

Are designs on Houseplans ready to submit to my building department for permitting?

It depends on where you're building. Our plans contain enough information for a professional builder to construct your home, but your local government may require additional information before permitting. We strongly advise that you talk with your builder before you get started. If you are building for yourself, we recommend visiting your local building department to start your diligence. Read more here.

Can I make changes to a plan?

Absolutely! Our modification service allows you to customize almost anything - whether it's adding an extra garage bay, adjusting square footage, changing the roof pitch, or more, the plan modification service is a great value and can be completed quickly. Additionally, if you purchase an electronic plan set (PDF or CAD), you may have the option to make changes locally. CAD files offer the most flexibility for custom edits. Just let us know what you're thinking, and we’ll provide an estimate and timeframe to get started. Learn more here.

How much does a house cost to build?

Find out! Build costs vary based on the size of the home, materials used, and local rates for goods and labor. Our Cost to Build report is a great way to get some basic costs dialed in before you order your plans. Just plug in your postal code, select your desired construction quality, and we'll calculate for you.

Learn more about Cost to Build reports here.

Can I trust Houseplans?

Founded in 2004, Houseplans works with hundreds of architects and designers to offer their plans at a fraction of the price of custom design. Houseplans has an "Excellent" rating on TrustPilot.

Read more about us here.

Does Houseplans offer live support?

Yes, Houseplans has a dedicated team of house plan advisors with decades of experience between them. You can reach them by calling, emailing, filling out a form on the page of a plan that you like, or going to the Contact Us page. We're available to talk every day, even on weekends.

Builder Advantage Home

Builder Advantage Program

Are you a Pro Builder? Join the club, save 5% on your first order, get exclusive discounts, and more.

Learn More

You may also like

Save Plan
Cabin

Plan 1108-9

$1300.00

beds3

bd

baths2.5

ba

stories3

stories

square feet1815

sq ft

Save Plan
Cottage

Plan 515-56

$650.00

beds2

bd

baths2

ba

stories1

story

square feet838

sq ft

Save Plan
Beach

Plan 938-126

$2495.00

beds4

bd

baths3.5

ba

stories3

stories

square feet2894

sq ft

Recently viewed plans

Exterior - Front Elevation for Cabin House Plan #3-279 - 3 bed, 2 bath
Save Plan

Plan 3-279

$696.00

beds3

bd

baths2

ba

stories2

stories

square feet1721

sq ft