Country Style House Plan - 3 Beds 2.5 Baths 1969 Sq/Ft Plan #1116-25 - Houseplans.com
Search
REGISTER LOGIN SAVED No Saved Plans CART  Cart Empty
Don't lose your saved plans! Create an account to access your saves whenever you want. See our Terms & Conditions and Privacy Policy.
OR
15% OFF THIS PLAN TODAY
Plan 1116-25
Photographs may show modified designs.
Home  >  Style  >  Country

Country House Plan 1116-25

Key Specs


Plan Sq Ft

1969
sq ft

Plan Bedrooms

3
Beds

Plan Bathrooms

2.5
Baths

Plan Floors

2
Floors

Plan Garages

0
Garages

Questions? Get Personalized Help
Select Plan Set Options
What's included?
$208.25
$140.25
$250.75
$33.15
$140.25
Subtotal
NOW $1058.25
You save $186.75
(15% savings)
Sale ends soon!
Best Price Guaranteed

Or order by phone: 1-800-913-2350
Questions? Get Personalized Help
 

 
Hours:
Ready for Your Call 7 Days a Week
Every Day 7 am - 8:30 pm Eastern

See Terms & Conditions and Privacy Policy.

Thanks for your question.

We will be in touch shortly.

Wow!
Cost to Build Reports
$1.99 with Code
CTBFALL (Limit 1)
Our Cost to Build Report gives you a personalized estimate for building your home, based on your location, plan, and materials.

Residential Construction Guide

Learn Building Basics

This downloadable, 26-page guide is full of diagrams and details about plumbing, electrical, and more.

Key Specs


Plan Sq Ft

1969
sq ft

Plan Bedrooms

3
Beds

Plan Bathrooms

2.5
Baths

Plan Floors

2
Floors

Plan Garages

0
Garages

Plan Description


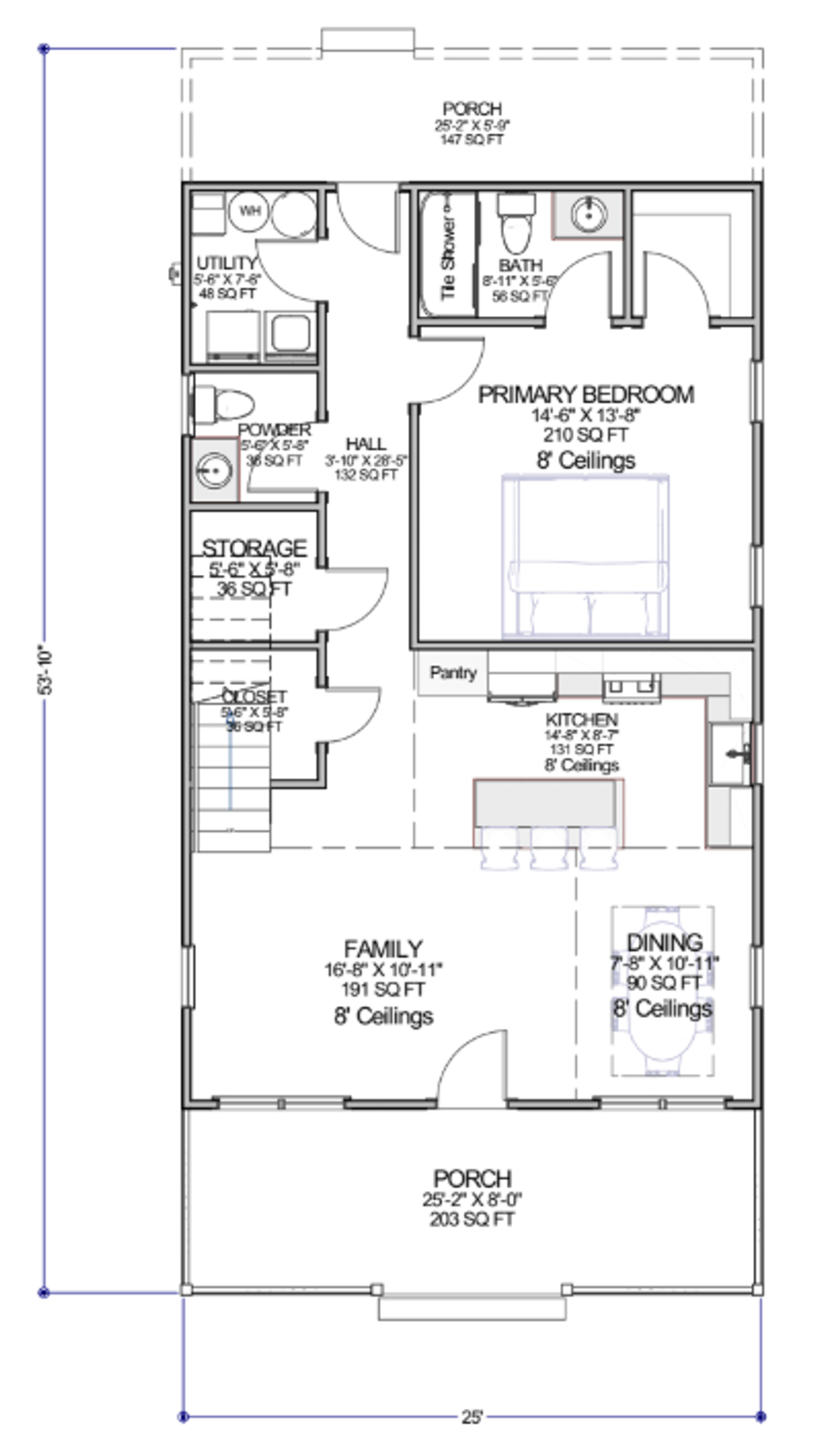
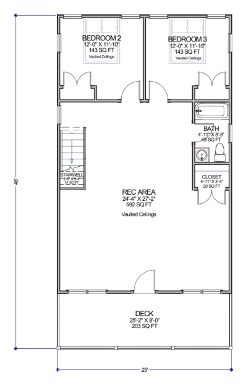
- Stacked porches with clerestory windows above present a welcoming sight on the front elevation of this Rustic Country home plan. - An open-concept living space greets you upon entering, anchored by an oversized prep island with seating for three. - Enjoy the convenience of a main-level primary bedroom that includes a full bathroom and walk-in closet. - The laundry / utility room sits across the hall from the primary bedroom and a 23' by 5'8" back porch offers additional outdoor living space. - Upstairs, two identical bedrooms share a full bathroom and a rec area provides access to the front deck. . GIVING BACK: Please note the designer of this plan gives 10% of their profits on all sales to charities focused on helping children and families in foster care.

This plan can be customized!

Tell us about your desired changes so we can prepare an estimate for the design service. Click the button to submit your request for pricing, or call 1-800-913-2350.

Floor Plans


Floor Plan - Main Floor

Reverse
houseplans LOGO

BUILDER Advantage Program

PRO BUILDERS

Join the club and save 5% on your first order.
PLUS download exclusive discounts and more.

LEARN MORE

Floor Plan - Upper Floor

Reverse

Floor Plan - Main Floor

Reverse

Floor Plan - Upper Floor

Reverse

Full Specs & Features


Basic Features

Bedrooms : 3
Baths : 2.5
Stories: 2
Garages: 0

Dimension

Depth : 53' 10"
Height : 25'
Width : 25'

Area

Total : 1969 sq/ft
Decks : 147 sq/ft
Main Floor : 1000 sq/ft
Porch : 406 sq/ft
Upper Floor : 969 sq/ft
* Total Square Footage typically only includes conditioned space and does not include garages, porches, bonus rooms, or decks.

Ceiling

Main Ceiling : 8'
Upper Ceiling Ft : 8'

Roof

Primary Pitch : 2/12
Roof Framing : Stick
Roof Type : Gable

Exterior Wall Framing

Exterior Wall Finish : Siding
Framing : 2x4

Bedroom Features

Main Floor Master Bedroom
Upstairs Bedrooms
Walk In Closet

Kitchen Features

Eating Bar
Kitchen Island
Walk In Pantry Cabinet Pantry

Additional Room Features

Great Room Living Room
Hobby Rec Room Game Room
Main Floor Laundry
Play Flex Room
Storage Area

Lot Characteristics

Suited For Narrow Lot

Outdoor Spaces

Balcony
Covered Front Porch
Grill Deck Sundeck

What's included in this plan set


See a sample plan set

All plans are drawn at ¼” scale or larger and include :

  • Foundation Plan: This page shows all necessary notations and dimensions including support columns, walls, and excavated/unexcavated areas.
  • Exterior Elevations: Views of the home from all four sides showing exterior materials and measurements.
  • Floor Plan(s): Detailed plans for each level showing room dimensions, wall partitions, windows and doors, etc.
  • Cross Section: A slice of the home from roof to foundation, showing important details like stairs and wall construction.
  • Overhead Roof Plan(s): A view of the home from above showing roof pitch, peaks, valleys, and other details.
  • Construction Notes and Details: Shows the builder how things come together, like walls, the chimney, insulation, and more.
* See important information before purchasing

Pricing


Plan Options

PDF Set

Best Value!
$1058.25
PDF plan sets are best for fast electronic delivery and inexpensive local printing.

PDF Unlimited Build

$1483.25
PDF plan sets are best for fast electronic delivery and inexpensive local printing.

CAD Unlimited Build

$1908.25
For use by design professionals to make substantial changes to your house plan and inexpensive local printing.

Foundation Options

Basement

$0.00
Ideal for level lot, lower level of home partially or fully underground.

Crawlspace

$0.00
Ideal for semi-sloped or level lot, home can be built off of grade, typically 18” - 48”.

Daylight Basement

$0.00
Ideal for sloping lot, lower level of home partially underground.

Floating Slab

$0.00
A concrete slab that covers the ground with no anchoring, it simply floats. Typical for garages and workshop plans.

Island Basement

$0.00
Foundation raised on piles or piers so that the main part of the house remains above floodwaters; typically required by FEMA, insurance companies, and county codes in shoreline areas.

Monolithic Slab

$0.00
A single concrete pour with thicker portions that replace footers under load bearing walls and all perimeter edges.

No Foundation

$0.00
Foundation is not included.

Partial Basement

$0.00
Ideal for builds where a full basement is not necessary or site conditions don’t allow for excavation. Typically combined with a slab or crawlspace.

Pier

$0.00
Ideal for lot conditions where the home needs to be off the ground. A pier foundation consists of wood posts or concrete piers connected by beams to support the home. Some lots may require drilling deep into bedrock to support the posts.

Screw Pile

$0.00
Uses a steel screw-in piling and ground anchoring system. Typical when soil conditions may prevent standard foundation solutions.

Slab

$0.00
Ideal for level lot, single layer concrete poured directly on grade.

Stem Wall Foundation

$0.00
Joins the foundation with a house’s vertical walls; often part of stem-wall slab foundation systems, which are constructed like a crawlspace foundation but filled in and compacted, then the slab is poured.

Walk Out Basement

$0.00
Ideal for a sloping lot, lower level with outdoor access.

*Options with a fee may take time to prepare. Please call to confirm.

Framing Options

Wood 2x4

$0.00
Wood 2x4 Exterior Walls

Wood 2x6

$250.75
Wood 2x6 Exterior Walls

*Options with a fee may take time to prepare. Please call to confirm.

Additional Options

Right-Reading Reverse

$208.25
Choose this option to reverse your plans and to have the text and dimensions readable.

Audio Video Design

$140.25
Receive an overlay sheet with suggested placement of audio and video components.

Comprehensive Material List

$250.75
A complete list of building supplies needed to construct the infrastructure of your new house, plus an overlay of materials shown directly on your PDF (foundation to rooftop with interior and exterior materials), and a detailed, itemized door and window schedule showing all sizes and types. Please allow 5-7 Business Days for completion. Note, the Comprehensive list is only available with a PDF purchase. The Comprehensive list can be ordered no matter what additional plan options you have selected.

Construction Guide

$33.15
Educate yourself about basic building ideas with these four detailed diagrams that discuss electrical, plumbing, mechanical, and structural topics.

Lighting Design

$140.25
Receive an overlay sheet with suggested placement of lighting fixtures.

*Options with a fee may take time to prepare. Please call to confirm.

Unless you buy an “unlimited” plan set or a multi-use license you may only build one home from a set of plans. Please call to verify if you intend to build more than once. Plan licenses are non-transferable and cannot be resold.

Other Plans By This Designer

See all plans by
this designer

Need help? Let our friendly experts help you find the perfect plan!

Contact us now for a free consultation.