Our Signature Plans
Shop NowThanks for your question.
We'll be in touch shortly.
Thank you for your inquiry. Your message has been sent.
We'll be in touch shortly.
New to the process and looking for some help to kick things off? Let us know a bit about your plans and we’ll be happy to help.
New to the process and looking for some help to kick things off? Let us know a bit about your plans and we’ll be happy to help.
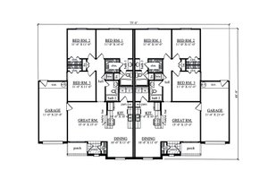
Bedroom 1:
154 sq/ft width 11' x depth 14'
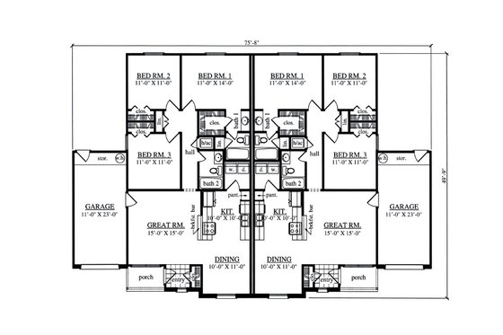
Bedroom 1:
154 sq/ft width 11' x depth 14'
Bedroom 2:
121 sq/ft width 11' x depth 11'
Bedroom 2:
121 sq/ft width 11' x depth 11'
Bedroom 3:
121 sq/ft width 11' x depth 11'
Bedroom 3:
121 sq/ft width 11' x depth 11'
Dining Room:
110 sq/ft width 10' x depth 11'
Dining Room:
110 sq/ft width 10' x depth 11'
Garage:
253 sq/ft width 11' x depth 23'
Garage:
253 sq/ft width 11' x depth 23'
Great Room:
225 sq/ft width 15' x depth 15'
Great Room:
225 sq/ft width 15' x depth 15'
Kitchen:
100 sq/ft width 10' x depth 10'
Kitchen:
100 sq/ft width 10' x depth 10'
All plans are drawn at ¼” scale or larger and include :
It depends on where you're building. Our plans contain enough information for a professional builder to construct your home, but your local government may require additional information before permitting. We strongly advise that you talk with your builder before you get started. If you are building for yourself, we recommend visiting your local building department to start your diligence. Read more here.
Absolutely! Our modification service allows you to customize almost anything - whether it's adding an extra garage bay, adjusting square footage, changing the roof pitch, or more, the plan modification service is a great value and can be completed quickly. Additionally, if you purchase an electronic plan set (PDF or CAD), you may have the option to make changes locally. CAD files offer the most flexibility for custom edits. Just let us know what you're thinking, and we’ll provide an estimate and timeframe to get started. Learn more here.
Find out! Build costs vary based on the size of the home, materials used, and local rates for goods and labor. Our Cost to Build report is a great way to get some basic costs dialed in before you order your plans. Just plug in your postal code, select your desired construction quality, and we'll calculate for you.
Learn more about Cost to Build reports here.
Founded in 2004, Houseplans works with hundreds of architects and designers to offer their plans at a fraction of the price of custom design. Houseplans has an "Excellent" rating on TrustPilot.
Read more about us here.
Yes, Houseplans has a dedicated team of house plan advisors with decades of experience between them. You can reach them by calling, emailing, filling out a form on the page of a plan that you like, or going to the Contact Us page. We're available to talk every day, even on weekends.
Are you a Pro Builder? Join the club, save 5% on your first order, get exclusive discounts, and more.
Learn MoreYou may also like