Don't lose your saved plans! 
Create an account to access your saves whenever you want. See our Terms & Conditions and Privacy Policy.
OR

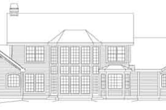
Traditional House Plan 57-187 2900 Sq Ft, 4 Bed, 3.5 Bath, 2 Floor, 2 Garage

Key Specs
  • 4
    Beds
  • 3.5
    Baths
  • 2
    Floors
  • 2
    Garages
  • 2900
    Square Feet
This traditional design floor plan is 2900 sq ft and has 4 bedrooms and 3.5 bathrooms.

Questions on this plan?

New to the process and looking for some help to kick things off? Let us know a bit about your plans and we’ll be happy to help.

Budget & Customization Tools

Modify icon
Customize this Plan
Tell us about your desired changes and we can prepare an estimate.
Cost to Build icon
Cost to Build Report
A personalized estimate based on your location, plan, & materials.
Cost to Build icon
Residential Construction Guide
This downloadable, 26-page guide is full of diagrams and details about plumbing, electrical, and more.

Full specs & Features

Basic Features

Bedrooms: 4
Baths: 3.5
Stories: 2
Garages: 2

Dimension

Depth: 53'
Width: 78'

Area

Total: 2900 sq/ft
Basement: 1835 sq/ft
Main Floor: 1835 sq/ft
Upper Floor: 1065 sq/ft
* Total Square Footage typically only includes conditioned space and does not include garages, porches, bonus rooms, or decks.

Bedroom Features

Main Floor Master Bedroom
Walk In Closet

Kitchen Features

Breakfast Nook
Kitchen Island
Walk In Pantry Cabinet Pantry

Additional Room Features

Great Room Living Room
Sunroom

Garage Features

Side Entry Garage

Lot Characteristics

Suited For Corner Lot

Outdoor Spaces

Screened Porch

What's Included

Plans are typically drawn to ¼” scale and include:
  • Cover Sheet: The coversheet offers a rendering or visual representation of the front of the home. It also suggests a potential version of the architectural style, materials, and façade options to help the customer, builder, or customer’s HOA or building department visualize the final exterior.
  • Foundation Plan(s): The foundation plan is used to show how the foundation should be built. It explains the thickness of the foundation walls, floor joist sizes and spacing, column locations, window/door/vent locations and sizes, for basement plans potentially suggested furnace/water heater locations, plumbing (where required) and miscellaneous construction details related to the foundation and basement.
  • Floor Plan(s): The floor plans of the home indicate the layout/construction of eachfloor of the house. Items typically included are room dimensions, wall sizes, plumbingelectrical locations, stair locations, door/window sizes, kitchen and bath layouts, ceilingconditions in each space, flooring, structural information and any special conditionsrelated to the floor plan.
  • Exterior Elevations: The elevation sheets communicate the material/dimensions that the designer envisioned, creating the correct look and feel on the outside of the house. Some of the items typically shown on an elevation sheet include materials used on the exterior of the house, size and shape of windows and doors, size and shape of vents, size of the trim, height and dimensions of various elements, depth of foundations, types of shingles and moldings, pitch of the roof, placement of materials (example: brick soldier course, brick quoins, etc.), and possibly a roof plan ( “bird’s eye” view showing the roof slopes, ridges, valleys and any saddles) and/ or the location of gutters and downspouts.
  • Interior Elevations: The details , sections, and interior elevations sheets provide enlarged, precise, and focused drawings of specific construction elements that cannot be fully or clearly explained at the standard scale used in the floor plan. They often zoom-in or dissect important or complex parts of the design, showing exactly how those elements are built, joined, or finished such as walls, drainage, framing, material junctions, stair handrails, or built-ins and cabinetry. They are essential for accuracy, compliance, and construction quality.
  • Overhead Roof Plan(s): A view of the home from above showing roof pitch, peaks, valleys, and other details.
  • Cross Section(s): A slice of the home from roof to foundation, showing relationships between floors, roof, and foundation.
  • Construction Notes / Detail(s): Shows basic parts and assemblies recommended for the home so the builder can see how things come together.

FAQs

Are designs on Houseplans ready to submit to my building department for permitting?

It depends on where you're building. Our plans contain enough information for a professional builder to construct your home, but your local government may require additional information before permitting. We strongly advise that you talk with your builder before you get started. If you are building for yourself, we recommend visiting your local building department to start your diligence. Read more here.

Can I make changes to a plan?

Absolutely! Our modification service allows you to customize almost anything - whether it's adding an extra garage bay, adjusting square footage, changing the roof pitch, or more, the plan modification service is a great value and can be completed quickly. Additionally, if you purchase an electronic plan set (PDF or CAD), you may have the option to make changes locally. CAD files offer the most flexibility for custom edits. Just let us know what you're thinking, and we’ll provide an estimate and timeframe to get started. Learn more here.

How much does a house cost to build?

Find out! Build costs vary based on the size of the home, materials used, and local rates for goods and labor. Our Cost to Build report is a great way to get some basic costs dialed in before you order your plans. Just plug in your postal code, select your desired construction quality, and we'll calculate for you.

Learn more about Cost to Build reports here.

Can I trust Houseplans?

Founded in 2004, Houseplans works with hundreds of architects and designers to offer their plans at a fraction of the price of custom design. Houseplans has an "Excellent" rating on TrustPilot.

Read more about us here.

Does Houseplans offer live support?

Yes, Houseplans has a dedicated team of house plan advisors with decades of experience between them. You can reach them by calling, emailing, filling out a form on the page of a plan that you like, or going to the Contact Us page. We're available to talk every day, even on weekends.

Builder Advantage Home

Builder Advantage Program

Are you a Pro Builder? Join the club, save 5% on your first order, get exclusive discounts, and more.

Learn More

You may also like

Save Plan
Traditional

Plan 20-2346

$1305.00

beds4

bd

baths2.5

ba

stories2

stories

square feet2257

sq ft

Save Plan
Country

Plan 427-1

$897.60

beds3

bd

baths2.5

ba

stories2

stories

square feet1908

sq ft

Save Plan
Farmhouse

Plan 430-422

$1445.00

beds3

bd

baths2.5

ba

stories1

story

square feet2494

sq ft

Recently viewed plans

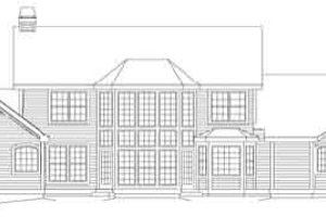
Exterior - Front Elevation for Traditional House Plan #57-187 - 4 bed, 3.5 bath
Save Plan

Plan 57-187

$1499.00

beds4

bd

baths3.5

ba

stories2

stories

square feet2900

sq ft