Ranch Style House Plan - 6 Beds 4.5 Baths 4192 Sq/Ft Plan #920-83 - Houseplans.com
Search
REGISTER LOGIN SAVED No Saved Plans CART  Cart Empty
Don't lose your saved plans! Create an account to access your saves whenever you want. See our Terms & Conditions and Privacy Policy.
OR
15% OFF FOR THE FIRST 25 CUSTOMERS
Plan 920-83
Photographs may show modified designs.
Home  >  Style  >  Ranch

Ranch House Plan 920-83

Key Specs


Plan Sq Ft

4192
sq ft

Plan Bedrooms

6
Beds

Plan Bathrooms

4.5
Baths

Plan Floors

2
Floors

Plan Garages

3
Garages

Questions? Get Personalized Help
Select Plan Set Options
What's included?
Additional Construction Sets$42.50/each

Additional hard copies of the plan (can be ordered at the time of purchase and within 90 days of the purchase date).

$85.00
$33.15
$170.00
Mirror Reversed Sets$170.00

Printed sets showing plan in reverse, text and dimensions will be backwards.

Subtotal
NOW $2305.20
You save $406.80
(15% savings)
Sale ends soon!
Best Price Guaranteed

Or order by phone: 1-800-913-2350
Questions? Get Personalized Help
 

 
Hours:
Ready for Your Call 7 Days a Week
Every Day 7 am - 8:30 pm Eastern

See Terms & Conditions and Privacy Policy.

Thanks for your question.

We will be in touch shortly.

Wow!
Cost to Build Reports
$1.99 with Code
CTB2026 (Limit 1)
Our Cost to Build Report gives you a personalized estimate for building your home, based on your location, plan, and materials.

Residential Construction Guide

Learn Building Basics

This downloadable, 26-page guide is full of diagrams and details about plumbing, electrical, and more.

Key Specs


Plan Sq Ft

4192
sq ft

Plan Bedrooms

6
Beds

Plan Bathrooms

4.5
Baths

Plan Floors

2
Floors

Plan Garages

3
Garages

Plan Description


This ranch design floor plan is 4192 sq ft and has 6 bedrooms and 4.5 bathrooms.

This plan can be customized!

Tell us about your desired changes so we can prepare an estimate for the design service. Click the button to submit your request for pricing, or call 1-800-913-2350.

Floor Plans


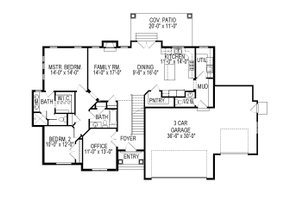
Floor Plan - Main Floor

Reverse
houseplans LOGO

BUILDER Advantage Program

PRO BUILDERS

Join the club and save 5% on your first order.
PLUS download exclusive discounts and more.

LEARN MORE

Floor Plan - Upper Floor

Reverse

Floor Plan - Lower Floor

Reverse

Full Specs & Features


Basic Features

Bedrooms : 6
Baths : 4.5
Stories: 2
Garages: 3

Dimension

Depth : 45' 2"
Height : 24' 8"
Width : 73' 8"

Area

Total : 4192 sq/ft
Basement : 1480 sq/ft
Garage : 837 sq/ft
Lower Floor : 1480 sq/ft
Main Floor : 1801 sq/ft
Patios : 200 sq/ft
Storage : 195 sq/ft
Upper Floor : 911 sq/ft
* Total Square Footage typically only includes conditioned space and does not include garages, porches, bonus rooms, or decks.

Ceiling

Garage Ceiling : 11'
Lower Ceiling : 9'
Main Ceiling : 9'
Upper Ceiling Ft : 8'

Roof

Primary Pitch : 8/12
Secondary Pitch : 3.5/12

Exterior Wall Framing

Framing : 2x6

Bedroom Features

Main Floor Bedrooms
Main Floor Master Bedroom
Upstairs Bedrooms
Walk In Closet

Kitchen Features

Kitchen Island
Walk In Pantry Cabinet Pantry

Additional Room Features

Den Office Study Computer
Family Room Keeping Room
Hobby Rec Room Game Room
Main Floor Laundry
Mud Room
Storage Area

Garage Features

Front Entry Garage
Split Garage

Lot Characteristics

Suited For Corner Lot
Suited For View Lot
Zero Lot Lines

Outdoor Spaces

Covered Rear Porch

Energy Efficient Features

Energy Efficient Design

What's included in this plan set


See a sample plan set
Please note: These plans may not be available for construction in certain areas within the state of Utah. If you are building in Utah, please give us a call to confirm availability.
  • Cover Sheet: Drawing index, designer contact info, plan name/number, legal disclaimers.
  • Foundation Plan(s): This page shows all necessary notations and dimensions including footings, support columns, walls, and excavated/unexcavated areas.
  • Floor Plan(s): Detailed plans for each level showing room dimensions, wall partitions, windows and doors, fixture locations, and ceiling treatments.
  • Exterior Elevations: Views of the home from all four sides showing exterior materials, roof slope, ridge heights, siding and trim notes.
  • Overhead Roof Plan(s): A view of the home from above showing roof pitch, peaks, valleys, and other details.
  • Cross Section(s): A slice of the home from roof to foundation, showing relationships between floors, roof, and foundation.
  • Electrical Plan(s): Shows the location of lights, receptacles, switches, etc. Some plans that do not include an electrical plan may have it available for an additional fee.
  • Construction Notes / Detail(s): Shows basic parts and assemblies recommended for the home so the builder can see how things come together.
  • Rendering(s): 3D perspective views (not included with all plans)
  • Door / Window Schedule(s): A list of all the doors and windows needed to construct the house. This can help with estimating materials costs.
* See important information before purchasing

Pricing


Plan Options

PDF Set

Best Value!
$2305.20
PDF plan sets are best for fast electronic delivery and inexpensive local printing.

Foundation Options

Basement

$0.00
Ideal for level lot, lower level of home partially or fully underground.

Daylight Basement

$425.00
Ideal for sloping lot, lower level of home partially underground.

*Options with a fee may take time to prepare. Please call to confirm.

Additional Options

Additional Construction Sets

$42.50
Additional hard copies of the plan (can be ordered at the time of purchase and within 90 days of the purchase date).

Audio Video Design

$85.00
Receive an overlay sheet with suggested placement of audio and video components.

Construction Guide

$33.15
Educate yourself about basic building ideas with these four detailed diagrams that discuss electrical, plumbing, mechanical, and structural topics.

Lighting Design

$170.00
Receive an overlay sheet with suggested placement of lighting fixtures.

Mirror Reversed Sets

$170.00
A mirror-reversed set is a printed copy of your house, resulting in the same image you would see if you held the drawing up to a mirror. Everything, including the text, is backward in relation to the original design. These kinds of drawing are typically used to reorient an original plan more advantageously on a site, either because the homeowner prefers it that way or because of limitations of the site itself. Note: Mirror reverse sets are only available with a 5 copy or 8 copy set. With a Reproducible, PDF, or CAD set, you can print mirrored copies locally. In addition: 5 Copy set selected, should only allow 4 mirrored sets to be selected. 8 Copy set selected, should only allow 7 mirrored sets to be selected.

*Options with a fee may take time to prepare. Please call to confirm.

Unless you buy an “unlimited” plan set or a multi-use license you may only build one home from a set of plans. Please call to verify if you intend to build more than once. Plan licenses are non-transferable and cannot be resold.

Other Plans By This Designer

See all plans by
this designer

Browse Similar Plans

Need help? Let our friendly experts help you find the perfect plan!

Contact us now for a free consultation.