Craftsman Style House Plan - 2 Beds 1 Baths 757 Sq/Ft Plan #1106-191 - Houseplans.com
Search
REGISTER LOGIN SAVED No Saved Plans CART  Cart Empty
Don't lose your saved plans! Create an account to access your saves whenever you want. See our Terms & Conditions and Privacy Policy.
OR
Plan 1106-191
Photographs may show modified designs.
Home  >  Style  >  Craftsman

Craftsman House Plan 1106-191

Key Specs


Plan Sq Ft

757
sq ft

Plan Bedrooms

2
Beds

Plan Bathrooms

1
Baths

Plan Floors

1
Floors

Plan Garages

0
Garages

Questions? Get Personalized Help
Select Plan Set Options
What's included?
Subtotal
$1000.00
Best Price Guaranteed

Or order by phone: 1-800-913-2350
Questions? Get Personalized Help
 

 
Hours:
Ready for Your Call 7 Days a Week
Every Day 7 am - 8:30 pm Eastern

See Terms & Conditions and Privacy Policy.

Thanks for your question.

We will be in touch shortly.

Wow!
Cost to Build Reports
$1.99 with Code
CTBFALL (Limit 1)
Our Cost to Build Report gives you a personalized estimate for building your home, based on your location, plan, and materials.

Residential Construction Guide

Learn Building Basics

This downloadable, 26-page guide is full of diagrams and details about plumbing, electrical, and more.

Key Specs


Plan Sq Ft

757
sq ft

Plan Bedrooms

2
Beds

Plan Bathrooms

1
Baths

Plan Floors

1
Floors

Plan Garages

0
Garages

Plan Description


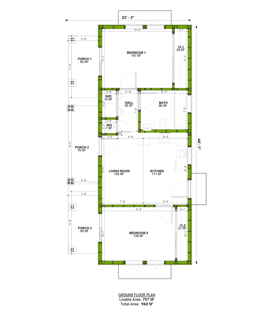
This Craftsman 2-bed/1-bath home is 757 sf of interior living space. There is also a large covered front porch, bringing the total footprint to 960 sf. This plan set is engineered for steel with 2"x4" interiors/exteriors, with 2"x6" exterior steel framing available as an add-on option. While the plan shows Light Gauge Steel framing, you can also reference it to fully build in wood. Each set comes with a Comprehensive Generic-Materials Shopping List, a Lighting-Plumbing-HVAC plan, and a Building Instructions Guide. INCLUDES DETAILED TRUSS/ROOF PLAN

This plan can be customized!

Tell us about your desired changes so we can prepare an estimate for the design service. Click the button to submit your request for pricing, or call 1-800-913-2350.

Floor Plans


Floor Plan - Main Floor

houseplans LOGO

BUILDER Advantage Program

PRO BUILDERS

Join the club and save 5% on your first order.
PLUS download exclusive discounts and more.

LEARN MORE

Full Specs & Features


Basic Features

Bedrooms : 2
Baths : 1
Stories: 1
Garages: 0

Dimension

Depth : 23' 3"
Height : 11' 10"
Width : 44' 1"

Area

Total : 757 sq/ft
Porch : 206 sq/ft
* Total Square Footage typically only includes conditioned space and does not include garages, porches, bonus rooms, or decks.

Ceiling

Lower Ceiling : 8'
Upper Ceiling Ft : 10' 10"

Roof

Primary Pitch : 4/12
Roof Framing : Cold Formed Steel
Roof Load : Inquire for info

Exterior Wall Framing

Framing : Cold Formed Steel

Additional Room Features

Main Floor Laundry

Outdoor Spaces

Covered Front Porch

More

Economical To Build
Empty Nester
Suited For Vacation Home

Energy Efficient Features

Energy Efficient Design

What's included in this plan set


See a sample plan set

All plans are drawn at ¼” scale or larger and include :

  • Foundation Plan: This page shows all necessary notations and dimensions including support columns, walls, and excavated/unexcavated areas.
  • Exterior Elevations: Views of the home from all four sides showing exterior materials and measurements.
  • Floor Plan(s): Detailed plans for each level showing room dimensions, wall partitions, windows and doors, etc.
  • Cross Section: A slice of the home from roof to foundation, showing important details like stairs and wall construction.
  • Overhead Roof Plan(s): A view of the home from above showing roof pitch, peaks, valleys, and other details.
  • Construction Notes and Details: Shows the builder how things come together, like walls, the chimney, insulation, and more.
* See important information before purchasing

Pricing


Plan Options

PDF Set

Best Value!
$1000.00
PDF plan sets are best for fast electronic delivery and inexpensive local printing.

Foundation Options

Slab

$0.00
Ideal for level lot, single layer concrete poured directly on grade.

*Options with a fee may take time to prepare. Please call to confirm.

Framing Options

Metal (PEMB)

$0.00
Designed for use as a PEMB (Pre-Engineered Metal Building) using Z8 metal framing with insulated panels on the exterior and 2x4" studs for the interior.

Wood 2x4

$0.00
Wood 2x4 Exterior Walls

Wood 2x6

$300.00
Wood 2x6 Exterior Walls

*Options with a fee may take time to prepare. Please call to confirm.

Additional Options

*Options with a fee may take time to prepare. Please call to confirm.

Unless you buy an “unlimited” plan set or a multi-use license you may only build one home from a set of plans. Please call to verify if you intend to build more than once. Plan licenses are non-transferable and cannot be resold.

Need help? Let our friendly experts help you find the perfect plan!

Contact us now for a free consultation.