By Devin Uriarte
Barndominium style has become very popular, offering a unique fusion of functionality and style. Each of these barndo floor plans is large and offers spacious living while maintaining that cozy country charm. These plans each boast five bedrooms, making them ideal for families or anyone who wants space for guests or hobbies.
See our full 5 bedroom barndominium collection.
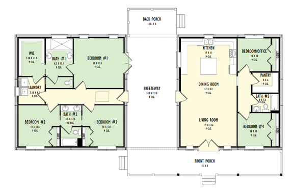
Lovely Breezway
Lovely Breezway - Front Exterior
This single-story barndominium has a lovely breezeway that connects two sections of the home. The plan is set up where the great room is separated from three of the rooms (including the generous main suite). In the great room there is a U-shaped kitchen with loads of counter space and an impressive prep island. Because the breezeway and front porch are easily accessible, it gives the space indoor-outdoor flow. The other two bedrooms are on the same side as the great room.
Barndominium with Wraparound Porch
Barndominium with Wraparound Porch - Front Exterior
Barndominium with Wraparound Porch - Main Floor
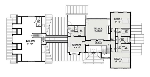
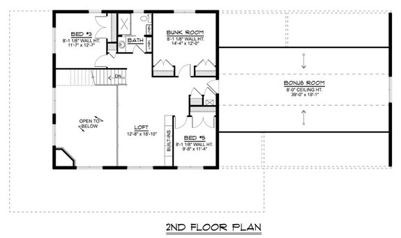
Barndominium with Wraparound Porch - Second Floor Plan
Here is an attractive five-bedroom barndominium with classic farm-style curb appeal. The wraparound porch is ideal for hosting outdoors and the French doors flow into the living space. There is a sizeable kitchen with lots of counter space and a bar-top for casual dining. On the main level there is a guest bedroom with French doors and the primary suite. Upstairs there are three guest bedrooms, including a loft with thoughtful built-ins.
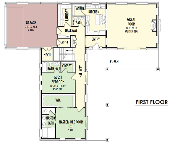
Unique Layout
Unique Layout - Front Exterior
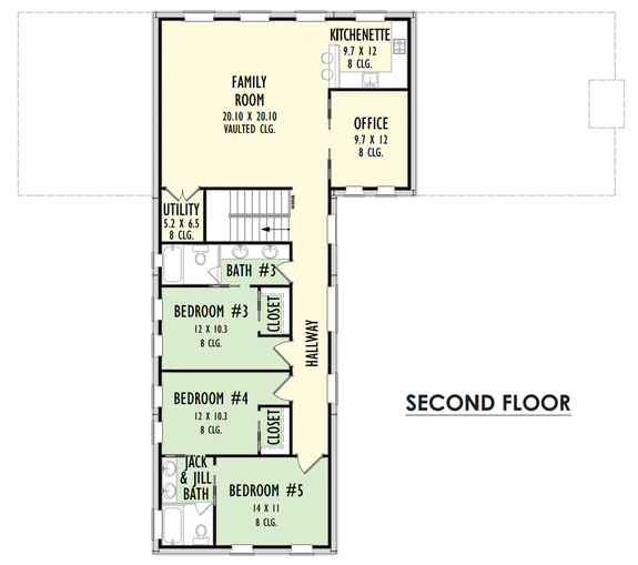
Unique Layout - Second Floor Plan
The layout of this barndominium is unique. The plan is L-shaped with a great big front porch and a side-entry garage. There are sliding glass doors in the primary suite, the main hallway, and the great room to give the plan some indoor-outdoor flow. Two out of the five bedrooms are on the first floor and upstairs are the remaining three guest rooms and a dedicated office. An added feature of this plan is the second living room on the second floor that's great for guests.
5 Bedroom Barndominium Floor Plan with Outdoor Living
5 Bedroom Barndominium Floor Plan with Outdoor Living - Front Exterior
5 Bedroom Barndominium Floor Plan with Outdoor Living - Main Floor
5 Bedroom Barndominium Floor Plan with Outdoor Living - Second Floor Plan
This classic barndo style house plan has five bedrooms, each with its own walk-in closet! What’s quite impressive about this plan are the outdoor spaces; there’s a patio, a screened porch, a grilling porch, and two front porches. These spaces make this barndominium a great place to host friends and family.
Elegant and Stylish
Elegant and Stylish - Front Exterior
Elegant and Stylish - Main Floor
Elegant and Stylish - Main Floor
Step into this elegant barndominium with jaw-dropping curb appeal. The two-car garage sits on the side so that it does not draw attention away from the exterior. Through the double entry doors is the living area and down the long hallway you'll find the primary suite. All of the guest bedrooms are on the second floor.
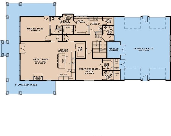
Unobstructed Curb Appeal
Unobstructed Curb Appeal - Front Exterior
Unobstructed Curb Appeal - Main Floor
Unobstructed Curb Appeal - Second Floor Plan
The high ceiling in the great room of this five-bedroom barndominium plan allow lots of natural light to flow into the space. There are large windows on the front-facing side, which add to the classic curb appeal. Because the tandem four-car garage opens to the sides, it does not detract from the beauty of the front exterior. On the main floor there is an impressive primary suite with a walk-in closet and easy access to the laundry room. The first guest bedroom also resides on the first floor with a private bath and walk-in closet. Upstairs are the remaining three guest bedrooms, each with its own bathroom and walk-in closet.

