Blog Home > 5 Car Garages: When You Need a Lot of Parking and Space

The Houseplans Blog

5 Car Garages: When You Need a Lot of Parking and Space

Stay organized with these 5 car garage plans.

Hero Image

June 2, 2025

Livabl Brand

Can't find what you're looking for?

Give us a call below or reach out and we’ll make sure to be in contact!

Send Us a Message

By Courtney Pittman

Looking for unmatched flexibility and space? Check out these 5 car garage plans, some with living space and others simply providing parking and storage. We've even sprinkled a few barndominium plans in here.

These designs keep you comfortable and organized with abundant storage options, making them ideal for families with multiple vehicles or car enthusiasts.

The extra garage bays can also serve as a workshop or a recreational area – the options are endless! Enjoy vehicle protection and long-term versatility with these oversized 5 car garage plans.

Check out garage plans here.

Explore garage plans with living space here.

Country 5 Car Garage Plan

Country 5 Car Garage Plan Country 5 Car Garage Plan - Front Exterior

Country 5 Car Garage Plan Country 5 Car Garage Plan - Main Level

Country 5 Car Garage Plan Country 5 Car Garage Plan - Lower Level

Here’s a 5 car garage plan that stands out with farmhouse-inspired features like a gable roof and a covered porch area. A vaulted ceiling in the open gathering area creates a breezy vibe. Enjoy casual dining at the kitchen island.

Note the sizable pantry. French doors open to a covered deck. The primary suite impresses with a walk-in pantry, a big shower, a separate tub, and a private deck. Additional highlights include a mudroom with a bench and hooks, an entry closet for storage, and a versatile 5 car garage setup with options for RV parking.

5 Car Garage Plan with Office

5 Car Garage Plan with Office 5 Car Garage Plan with Office - Front Exterior

5 Car Garage Plan with Office 5 Car Garage Plan with Office - Main Level

Take a look at this modern 125-foot-wide garage plan. Need room for storage? Check out the 5 car garage, which includes room for an RV.

An office, complete with a break room, resides on the left side of the plan. A utility room, an IT room, two half baths, and a janitors closet round out this design.

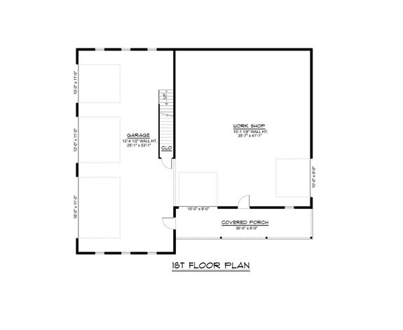
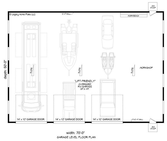
Detached Garage with Shop

Detached Garage with Shop Detached Garage with Shop - Front Exterior

Detached Garage with Shop Detached Garage with Shop - Main Level

Sleek and cool, this detached garage plan boasts clean lines, a modern shed roof, and mixed siding. Inside, you’ll find a lift-friendly 5 car garage ideal for collectors or anyone needing serious storage. Even better? There’s room for an RV.

On the right side of the plan, a dedicated workshop features a sloped ceiling, a workbench, and plenty of room for customization.

Want a shop-house design? We've got them here.

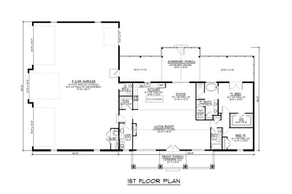
Ranch Plan with Screened Porch

Ranch Plan with Screened Porch Ranch Plan with Screened Porch - Front Exterior

Ranch Plan with Screened Porch Ranch Plan with Screened Porch - Main Level

Here’s a ranch house plan with eye-catching curb appeal. Relax on the wide front porch or the spacious screened porch out back. You’ll appreciate the oversized 5 car garage on the left side of the plan.

Inside, a kitchen island serves the living room, where a cathedral ceiling and a fireplace add drama. The open dining nook waits close by. Don’t miss the walk-in closet in the primary suite and the generous pantry.

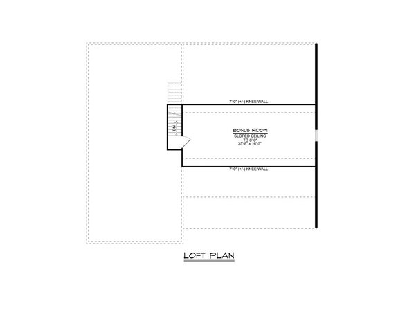
Flexible Barndo Plan

Flexible Barndo Plan Flexible Barndo Plan - Front Exterior

Flexible Barndo Plan Flexible Barndo Plan - Main Level

Flexible Barndo Plan Flexible Barndo Plan - Upper Level

Check out this versatile barn-inspired garage plan. Offering ample room for vehicle storage, a workshop, or a hobby space, this design is all about flexibility. The exterior impresses with a metal roof and a covered front porch. Upstairs, a bonus room could be used as a detached home office.

Love the look? Shop barndominium garage plans.

Country Plan with Outdoor Kitchen

Country Plan with Outdoor Kitchen Country Plan with Outdoor Kitchen - Front Exterior

Country Plan with Outdoor Kitchen Country Plan with Outdoor Kitchen - Main Level

Country Plan with Outdoor Kitchen Country Plan with Outdoor Kitchen - Upper Level

With a wraparound porch, a metal gable roof, and stone accents, this rustic design delivers tons of country curb appeal. Inside, the sprawling floor plan features five bedrooms and three-and-a-half baths. The two-story living room takes center stage with a double-sided fireplace that opens to a large covered rear porch.

A big island and a roomy pantry highlight the open kitchen. The wet bar is a welcome amenity. The main-level primary suite makes it easy to age in place. The 5 car garage features a spacious shop area, an RV bay, and a storage room. Ready to entertain? Check out the outdoor kitchen.

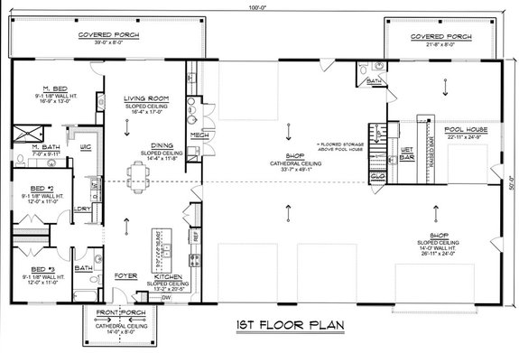
Barndominium Plan with Spacious Pool House Attached

Barndominium Plan with Spacious Pool House Attached Barndominium Plan with Spacious Pool House Attached - Front Exterior

Barndominium Plan with Spacious Pool House Attached Barndominium Plan with Spacious Pool House Attached - Main Level

Two covered porches and a streamlined layout are just some of the highlights of this three-bedroom barndominium plan. The seamless floor plan places the island kitchen, the dining area, and the living room in one open space. Ready to impress, the primary suite shines with a private bathroom, a big closet, and access to the laundry room. Two secondary bedrooms share a hall bath nearby.

Here’s a nice detail: the attached pool house boasts a wet bar, a half bath, and a covered porch for relaxed entertaining. A 5 car garage gives you lots of room for storage and features a shop area.

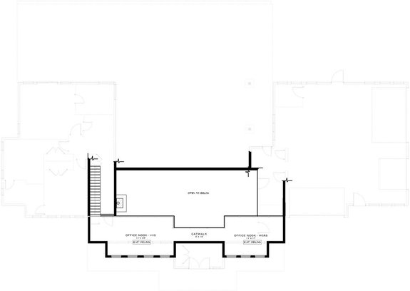
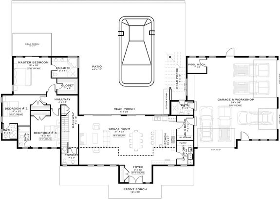
Extra-Large Patio

Extra-Large Patio Extra-Large Patio - Front Exterior

Extra-Large Patio Extra-Large Patio - Main Level

Extra-Large Patio Extra-Large Patio - Upper Level

An extra-large patio with an outdoor kitchen and seamless floor plan gives this design a modern feeling. On the main level, the luxe primary suite features a modern shower, a separate tub, a walk-in closet, and a private porch.

With a 5 car garage and workshop, you’ll have plenty of space to keep items stored and organized. A double office nook rests on the second level. Relax on the covered front porch and take in the view.

Check out garage plans here.

Explore garage plans with living space here.

Get Our Newsletter

Be the first to see new plans, special offers, and more.

By signing up for our newsletter, you agree to our Terms & Conditions and Privacy Policy, for an account

Blog Subscribe Icon