Blog Home > 800 Sq. Ft. ADU Floor Plans

The Houseplans Blog

800 Sq. Ft. ADU Floor Plans

Explore 800 sq. ft. ADU floor plans.

Hero Image
Courtney Pittman

December 3, 2024

Livabl Brand

Can't find what you're looking for?

Give us a call below or reach out and we’ll make sure to be in contact!

Send Us a Message

Accessory dwelling units are a hot topic right now – and we are here for it. These modest designs make the most of their limited space with open gathering areas and practical details (like island kitchens and smart storage). We’ve gathered some of our favorite 800 sq. ft. ADU floor plans below.

Explore our collection of ADU floor plans here.

Sleek ADU Floor Plan

Sleek ADU Floor Plan Sleek ADU Floor Plan - Front Exterior

Sleek ADU Floor Plan Sleek ADU Floor Plan - Lower Level

Sleek ADU Floor Plan Sleek ADU Floor Plan - Main Level

Here’s a contemporary ADU floor plan with sleek curb appeal. The heart of the home is the kitchen, where an island adds extra seating and serves the vaulted living room. Nearby, sliding glass doors open to a breezy covered balcony.

In the bedroom, a walk-in closet offers room for storage. The lower level gives you a two-car garage and a storage nook. A patio offers even more room for outdoor living.

Two-Bedroom ADU Floor Plan

Two-Bedroom ADU Floor Plan Two-Bedroom ADU Floor Plan - Front Exterior

Two-Bedroom ADU Floor Plan Two-Bedroom ADU Floor Plan - Main Level

This Craftsman style ADU floor plan boasts a layout that is simple and modern. The living room opens directly to the kitchen, creating an airy vibe. A vaulted ceiling adds volume.

The primary suite gives you a private bathroom with a linen closet, along with another closet for clothing. A secondary bedroom, a full hall bath, and a laundry room wait nearby.

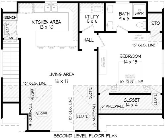
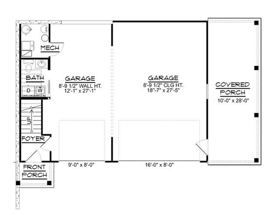
Craftsman Plan with Two-Car Garage

Craftsman Plan with Two-Car Garage Craftsman Plan with Two-Car Garage - Front Exterior

Craftsman Plan with Two-Car Garage Craftsman Plan with Two-Car Garage - Lower Level

Craftsman Plan with Two-Car Garage Craftsman Plan with Two-Car Garage - Upper Level

Here’s a handy Craftsman-style garage plan with an apartment above it. Store up to two vehicles on the first level. The covered patio is a welcome detail.

The second level keeps things modern with open flow between the spacious living room and the kitchen, where an island is ready for casual meals. A bedroom and a flexible nursery (or office) sit close by. A covered deck invites you outside.

Can't get enough tiny homes? Explore our tiny house plan collection!

Hardworking Farmhouse Plan

Hardworking Farmhouse Plan Hardworking Farmhouse Plan - Front Exterior

Hardworking Farmhouse Plan Hardworking Farmhouse Plan - Lower Level

Hardworking Farmhouse Plan Hardworking Farmhouse Plan - Upper Level

Beautiful and affordable, this petite farmhouse ADU floor plan gives you a hardworking layout. In the entry, a built-in bench is a convenient detail. The U-shaped kitchen provides a snack bar that easily serves the living area.

A bedroom suite resides on the right side of the plan and impresses with a storage closet and an extra-generous walk-in closet. The first level offers a three-car garage with a workshop area.

Loving any of the plans you're seeing? Register now to easily save and return to your favorites!

Sweet Cottage Design

Sweet Cottage Design Sweet Cottage Design - Front Exterior

Sweet Cottage Design Sweet Cottage Design - Main Level

This two-bedroom ADU floor plan showcases cottage style and gives you a warm welcome with a cute front porch. Check out the metal roof and the wood details. Inside, the layout encourages modern living with the great room opening to the kitchen.

A vaulted ceiling makes the space feel larger than it is. A bedroom, a full bath, and a storage room round out this design.

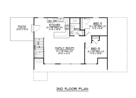
Country Plan with Three-Car Garage

Country Plan with Three-Car Garage Country Plan with Three-Car Garage - Front Exterior

Country Plan with Three-Car Garage Country Plan with Three-Car Garage - Lower Level

Country Plan with Three-Car Garage Country Plan with Three-Car Garage - Upper Level

Here’s an ADU floor plan under 1,000 square feet. A wide covered porch delivers country style. There’s plenty of room for storage in the three-car garage.

We love the bright family room and the nearby U-shaped kitchen. Enjoy relaxed meals at the eating bar. Two bedrooms share a bath on the right side of the plan. Don’t miss the patio.

Thinking about building a garage with living space? Explore garage plans with apartments here.

Farmhouse Plan with Bunk Room

Farmhouse Plan with Bunk Room Farmhouse Plan with Bunk Room - Front Exterior

Farmhouse Plan with Bunk Room Farmhouse Plan with Bunk Room - Main Level

This charming ADU floor plan lives larger than its small size with an open layout. The fully-equipped kitchen flows nicely into the living room. The left side of the plan hosts a bedroom and a versatile bunk room.

Check out the extra-large custom shower in the bathroom. Front and rear porches offer plenty of room for outdoor living.

One-Bedroom Modern Design

One-Bedroom Modern Design One-Bedroom Modern Design - Front Exterior

One-Bedroom Modern Design One-Bedroom Modern Design - Main Level

Sleek and cool, this modern ADU floor plan does a lot with 818 square feet. For example, a big island in the kitchen offers relaxed seating and extra counter space. Nearby, a storage closet could also become a pantry.

The open great room flows into the dining area for an airy feeling. A wall of sliding glass doors opens to the covered porch. A bedroom and a hall bath wait at the back of the plan.

Browse more ADU floor plans.

Get Our Newsletter

Be the first to see new plans, special offers, and more.

By signing up for our newsletter, you agree to our Terms & Conditions and Privacy Policy, for an account

Blog Subscribe Icon