By Courtney Pittman
If you’re in the market for an accessory dwelling unit, look no further than these ADU house plans. With up-to-date features like open island kitchens and flexible areas, these petite plans make the most of their modest square footage. Here are eight designs with must-see style and clever layouts to match.
Ready for more? Explore our collection of ADU house plans here.
Charming Cottage Plan
Charming Cottage Plan - Front Exterior
Charming Cottage Plan - Main Level
Clocking in at 600 square feet, this charming cottage plan packs a punch with plenty of outdoor living space – including a screened porch. The interior feels spacious and modern, thanks to the open layout between the main living areas. In the U-shaped kitchen, a raised bar overlooks the living room, where a fireplace takes center stage.
Two closets highlight the bedroom suite. A bonus room offers versatility. Front and rear porches provide shaded comfort.
Narrow ADU Plan
Narrow ADU Plan - Front Exterior
Just 18 feet wide, this ADU house plan would work well on a narrow lot. The lovely exterior features a covered front porch and a gable roof. Inside, the vaulted living room and the kitchen share one open space.
Located at the back of the plan, the bedroom suite is fully equipped with a walk-in closet and a big shower. The laundry room waits conveniently close by.
Contemporary Bungalow Plan
Contemporary Bungalow Plan - Front Exterior
Contemporary Bungalow Plan - Main Level
Contemporary Bungalow Plan - Upper Level
This contemporary bungalow plan shows off sleek curb appeal with a metal gable roof. The four-corner footprint makes this an affordable option. Inside, the open floor plan maximises space.
The bedroom keeps you organized with a spacious closet. A loft opens up all kinds of possibilities. Nice weather? Unwind on the generous deck out front or the smaller one at the back of the plan.
See our collection of tiny house plans here
Budget-Friendly ADU Plan
Budget-Friendly ADU Plan - Front Exterior
Budget-Friendly ADU Plan - Main Level
This budget-friendly ADU house plan lives larger than its small footprint (600 square feet). In the kitchen, a desk provides space to work. Nearby, a covered patio invites you outside.
A sizable shower highlights the bathroom. Storage options include multiple closets and shelf storage.
Large Patio
Large Patio - Front Exterior
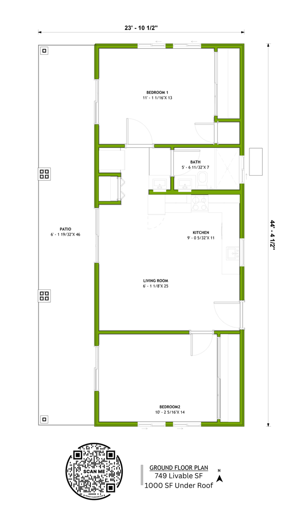
Here’s a Craftsman bungalow plan that proves less is more. For example, three sets of sliding glass doors open to a large patio, encouraging seamless indoor/outdoor living. The efficient floor plan places the living room and the L-shaped kitchen in one open space. Two bedrooms sit on opposite ends of the design.
Two-Bedroom ADU House Plan
Two-Bedroom ADU House Plan - Front Exterior
Two-Bedroom ADU House Plan - Main Level
This modern ADU house plan stands out with a welcoming front porch and a gable roof. The U-shaped kitchen flows effortlessly into the airy living room. A generous pantry keeps groceries organized.
Two bedrooms share a full hall bath at the back of the plan (one with a walk-in closet). The linen closet is a welcome detail.
Modern Garage Apartment Plan
Modern Garage Apartment Plan - Front Exterior
Modern Garage Apartment Plan - Main Level
Modern Garage Apartment Plan - Upper Level
Looking to add a smart addition to your property? Take a look at this garage apartment plan. The first level hosts a two-car garage with a dedicated workshop.
In the entry, a bench and lockers keep items tidy. Upstairs, a kitchen island serves the great room. We love the cathedral ceiling. The bedroom suite gives you a big walk-in closet and two sinks. Don’t miss the office nook and the covered deck.
Explore more garage apartment plans here
Wraparound Deck
Wraparound Deck - Front Exterior
This modern 660-square-foot ADU house plan seems much larger thanks to its breezy layout. A small island in the kitchen delivers functionality and overlooks the dining area and the living room. Three sets of sliding glass doors open to the wraparound deck for easy indoor/outdoor connections. A bedroom, a hall bath, and a laundry room complete this design.


