By Courtney Pittman
It’s all about easy living with these uncomplicated designs. No wasted space here! These streamlined plans (each with one story) feature very simple footprints and efficient layouts with minimal walls. Don’t worry, they still offer modern amenities like island kitchens, tidy mudrooms, and more. See our roundup of simple ranch house plans below.
Want more? Browse our collection of simple ranch house plans here.
Simple Ranch Plan with Farmhouse Style
Simple Ranch Plan with Farmhouse Style - Front Exterior
Simple Ranch Plan with Farmhouse Style - Main Level
This simple ranch house plan shows off farmhouse style with a metal gable roof and a cute front porch. The easygoing layout places the island kitchen and the great room at the center of the home. A cathedral ceiling adds drama and volume.
The primary suite gives you a spa-like bathroom on the right side of the plan, while two additional bedrooms share a hall bath on the left. A drop zone on the way in from the three-car garage is a nice detail.
Small House Plan with Front Porch
Small House Plan with Front Porch - Front Exterior
Small House Plan with Front Porch - Main Level
Here’s an affordable design that fits nicely on a small lot. Relax in style on the shaded front porch. Inside, a kitchen island provides plenty of counter space for prepping and enjoying casual meals.
Other up-to-date features include a primary suite with a deluxe bath, a walk-in pantry, and a spacious laundry room.
Barn-Inspired Ranch Plan
Barn-Inspired Ranch Plan - Front Exterior
Barn-Inspired Ranch Plan - Main Level
A wraparound porch gives you lots of room for outdoor living, while a metal roof adds barndominium curb appeal. The layout inside maximizes space with an open floor plan between the main living areas. All three bedrooms sit at the back of the plan. Don’t miss the two-car garage.
Lavish Primary Suite
Lavish Primary Suite - Front Exterior
Lavish Primary Suite - Main Level
Eye-catching board-and-batten siding decorates the exterior of this simple ranch house plan. Inside, the streamlined layout places the kitchen, the dining area, and the great room in one shared space. Here’s a nice detail: the sizable pantry could also become a home office if needed. We love the ventless gas fireplace.
The left side of the plan hosts the lavish primary suite, which shows off an extra-large closet, a custom shower, a separate tub, and an optional door that opens to the laundry room. Other thoughtful amenities include a coffee bar in the kitchen, an island that seats up to five, and two covered porches.
Loving any of the plans you're seeing? Register now to easily save and return to your favorites!
Ranch Plan with Optional Office
Ranch Plan with Optional Office - Front Exterior
Ranch Plan with Optional Office - Main Level
Here’s a modern ranch design under 1,000 square feet. Looking for storage? You’ll find plenty of it in the two-car garage. Ready to impress, the primary suite shines with a roll-in shower and ample closet space. The U-shaped kitchen includes an eating bar that overlooks the open living room.
Nearby, the guest room could also be used as a home office. Check out the walk-in pantry and the tidy mudroom/utility space.
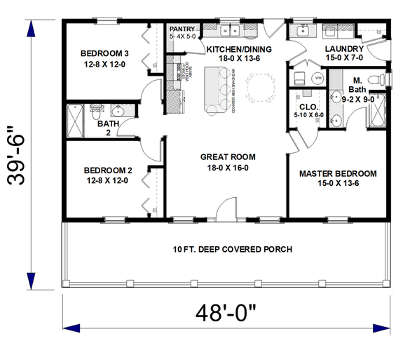
Simple Three-Bedroom Ranch Design
Simple Three-Bedroom Ranch Design - Front Exterior
Simple Three-Bedroom Ranch Design - Main Level
It doesn’t get much simpler than this three-bedroom ranch house plan. Take a look at the super-spacious closet in the primary suite (which enjoys privacy on the left side of the home). Entertain guests at the big island in the kitchen. Note the open living room and the dining area nearby.
Two secondary bedrooms and a full bath reside on the right side of the plan, along with the laundry room. Take advantage of the view on the covered front porch.
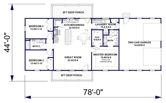
Ranch Plan with Two-Car Garage - Front Exterior
Ranch Plan with Two-Car Garage - Main Level
This ranch house plan embraces outdoor living with front and rear porches. The great room opens to the island kitchen and the dining nook. A walk-in pantry is ready to hold groceries.
Here’s an added convenience: the laundry room is located next to the primary suite. Two more bedrooms, a full bath, and a two-car garage complete this design.
Wide Front Porch
Wide Front Porch - Front Exterior
Looking for a modest house plan? We’ve got you covered with this ranch design. The facade grabs your attention with a wide front porch, board-and-batten siding, and a metal roof. An efficient layout waits inside. In the open kitchen, an island creates a relaxed vibe.
The right side of the plan gives you a laundry room that features direct access to the primary suite. Out back, a deck offers even more outdoor living.
