By Courtney Pittman
Need a little pick-me-up? We’ve put together a list of amazing house plans of 2025. Embracing modern living, comfortable layouts, and plenty of outdoor living, these fresh designs feel relaxed and up-to-date. Plus, they’re easy on the eyes. From popular farmhouse plans to affordable barn-inspired designs, get maximum enjoyment with our roundup below.
Want more? Explore our newest batch of house plans here.
Two Wraparound Porches
Two Wraparound Porches - Front Exterior
Two Wraparound Porches - Main Level
This Craftsman plan strikes the perfect balance between comfort and style. In the great room, a cathedral ceiling creates drama and draws the eye up. Nearby, an island takes center stage in the kitchen and offers extra counter space. A snack bar in the dining room is a welcome amenity.
The three-car garage could also become a workshop if needed. Not one, but two wraparound porches give you plenty of room to kick back and relax. We love the metal gable roof!
Explore more house plans with wraparound porches
Budget-Friendly Barndominium Plan
Budget-Friendly Barndominium Plan - Front Exterior
Budget-Friendly Barndominium Plan - Main Level
One trend we keep seeing more and more of is the ever-so-popular barndominium style – and we are here for it. Here’s a new budget-friendly barn-inspired plan that wows with an uncomplicated footprint and an eye-catching exterior. A wide front porch offers shaded comfort.
At the heart of the home, the open kitchen shines with an island that seats up to four, lots of counter space, and a walk-in pantry with shelves. The breakfast nook and the living room wait close by. Check out the extra-big closet in the primary suite. Two more bedrooms (each with a walk-in closet) share a full bath.
Browse barndominium plans
Farmhouse Plan with Outdoor Kitchen
Farmhouse Plan with Outdoor Kitchen - Front Exterior
Farmhouse Plan with Outdoor Kitchen - Main Level
Who doesn’t love some farmhouse flair? We certainly do! With a charming front porch, metal roof accents, and board-and-batten siding, this four-bedroom design has country style written all over it. Don’t worry, the fun doesn’t stop there.
Inside, a vaulted ceiling and a large fireplace highlight the open great room and the dining area. Nearby, the island kitchen features an eating bar and a sizable pantry with shelves and a sink. On the way in from the three-car garage, the entry keeps you organized with lockers.
At the back of the plan, the primary suite enjoys privacy and a spa-like bath. Our favorite part? The rear porch, which features an outdoor kitchen and a fireplace.
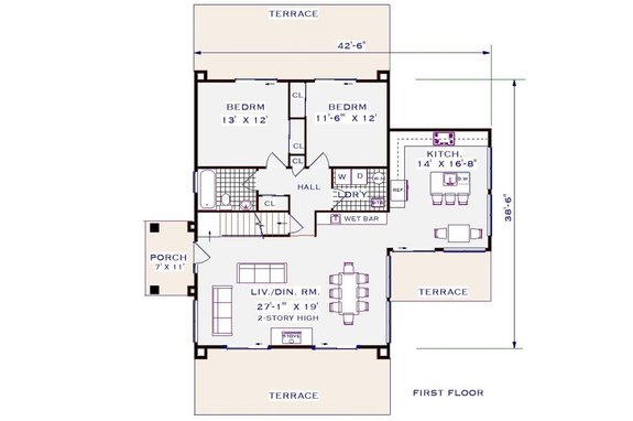
Contemporary Cottage Plan
Contemporary Cottage Plan - Front Exterior
Contemporary Cottage Plan - Main Level
Contemporary Cottage Plan - Upper Level
This cottage plan shows off clever details. The two-story living room/dining area impresses with a wood-burning stove and a wet bar. Bringing the outdoors in, two sets of sliding glass doors open to a generous terrace.
In the kitchen, another set of sliding glass doors opens to a second terrace. Two bedrooms rest at the back of the plan, along with a third terrace (accessed from each bedroom). Don’t miss the porch.
Loving any of the plans you're seeing? Register now to easily save and return to your favorites!
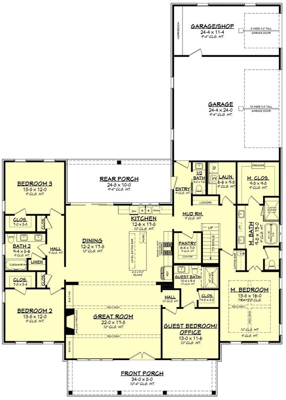
Luxe Primary Suite
Luxe Primary Suite - Front Exterior
Luxe Primary Suite - Main Level
A super-open layout and front and rear porches are just some of the highlights of this farmhouse plan. We love the mixed siding. The two-car garage features a storage closet and a workbench. The kitchen island serves the open great room, where a vaulted ceiling and a fireplace deliver style and warmth.
It’s all about luxury in the primary suite. Note the custom shower, the freestanding tub, and the extra-spacious closet. The laundry room waits conveniently close by.
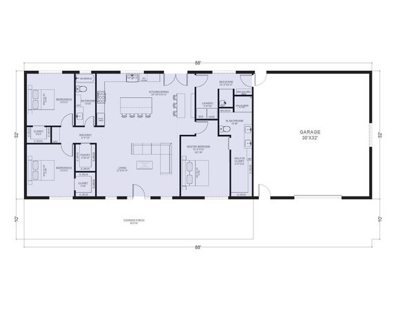
Room for Storage
Room for Storage - Front Exterior
Room for Storage - Upper Level
This farmhouse plan shows off country curb appeal with a welcoming front porch and a gable roof. The layout inside promotes modern living with an effortless flow between the open great room and the island kitchen. Next to the foyer, a versatile office could also become a bedroom.
The main-level primary suite makes it easy to age in place. The second level hosts two bedrooms (each with a walk-in closet) and a bonus room. Need room for storage? You’ll find plenty in the two-car garage.
Farmhouse Plan with Shop
Farmhouse Plan with Shop - Front Exterior
Farmhouse Plan with Shop - Main Level
Timeless style meets modern living in this farmhouse design. A wide front porch decorates the exterior and gives you a nice place to enjoy outdoor living. Inside, the kitchen island serves the dining area and the great room with ease.
The primary suite enjoys extra privacy on the right side of the plan. The three-car garage includes a shop area with a workbench. A rear porch offers even more room for outdoor enjoyment.
Small Country Plan
Small Country Plan - Front Exterior
Small Country Plan - Main Level
Clocking in at 1,677 square feet, this small country house plan makes great use of space with an efficient layout. In the great room, a vaulted ceiling makes the space feel bigger than it is. A fireplace warms things up and delivers a cozy ambiance.
The open kitchen includes a central island and a walk-in pantry. Each bedroom showcases a walk-in closet, including the lavish primary suite. Front and rear porches give you room to relax and take in the view.
