By Courtney Pittman
Need a post-holiday pick-me-up? Here’s another round of timeless designs with country charm. Think thoughtful amenities (a mudroom here, a kitchen island there), stylish details (like sliding barn doors), and open living spaces. We’ve gathered some of our best farmhouse plans under 2,000 sq. ft. below.
One-Story Farmhouse Plan with Storage
 One-Story Farmhouse Plan with Storage - Front Exterior
One-Story Farmhouse Plan with Storage - Front Exterior
 One-Story Farmhouse Plan with Storage - Main Level
One-Story Farmhouse Plan with Storage - Main Level
We can’t take our eyes off of this dreamy new farmhouse plan. Board-and-batten siding, a gable roof, and a dormer window decorate the exterior. Inside, the super-open layout includes an island kitchen, a dining area, and a great room. A barn door hides the walk-in pantry.
The primary suite enjoys privacy on the left side of the plan and boasts a spa-like bath and a big closet with direct access to the laundry room. Relax on the spacious rear porch. You’ll find dedicated room for storage in the two-car garage.
Narrow Farmhouse Plan
 Narrow Farmhouse Plan - Front Exterior
Narrow Farmhouse Plan - Front Exterior
 Narrow Farmhouse Plan - Main Level
Narrow Farmhouse Plan - Main Level
 Narrow Farmhouse Plan - Upper Level
Narrow Farmhouse Plan - Upper Level
Just 32 feet wide, this slim farmhouse plan is ideal for a narrow lot. Two covered patios and a covered upper deck offer lots of room for outdoor living. In the kitchen, an island adds extra prep space and casual seating. The open living room waits nearby.
Note the generous storage room. Two bedrooms share a full hall bath on the second floor. The laundry room is conveniently located on this level.
Simple Farmhouse Plan with 1,320 Sq. Ft.
 Simple Farmhouse Plan with 1,320 Sq. Ft. - Front Exterior
Simple Farmhouse Plan with 1,320 Sq. Ft. - Front Exterior
 Simple Farmhouse Plan with 1,320 Sq. Ft. - Main Level
Simple Farmhouse Plan with 1,320 Sq. Ft. - Main Level
Bright and open, this charming house plan gives you farmhouse curb appeal with a wide front porch covered by a metal roof. The four-corner footprint offers affordability. In the living room, a vaulted ceiling draws the eye up, while a wood-burning fireplace adds a cozy ambiance.
The island kitchen sits close by, along with an organized pantry. Just off the side porch, lockers in the entry keep items tidy. Check out the big custom shower in the primary suite.
Deep Covered Porches
 Deep Covered Porches - Front Exterior
Deep Covered Porches - Front Exterior
 Deep Covered Porches - Main Level
Deep Covered Porches - Main Level
Deep front and rear covered porches provide shaded comfort and scenic views. Inside, the open layout includes a great room with a cathedral ceiling. In the kitchen, an island gives you a functional space for meal prep.
The primary suite rests on the right side of the plan. Two bedrooms share a hall bath on the left. Store up to two vehicles in the handy garage.
Modest Bungalow Design
 Modest Bungalow Design - Front Exterior
Modest Bungalow Design - Front Exterior
 Modest Bungalow Design - Main Level
Modest Bungalow Design - Main Level
Large windows fill the living spaces with natural light. The open floor plan provides a layout that is practical and modern. An island in the kitchen serves the dining area and the living room.
Three bedrooms and a full hall bath reside on the right side of the plan. Nice weather? Relax on the covered front porch.
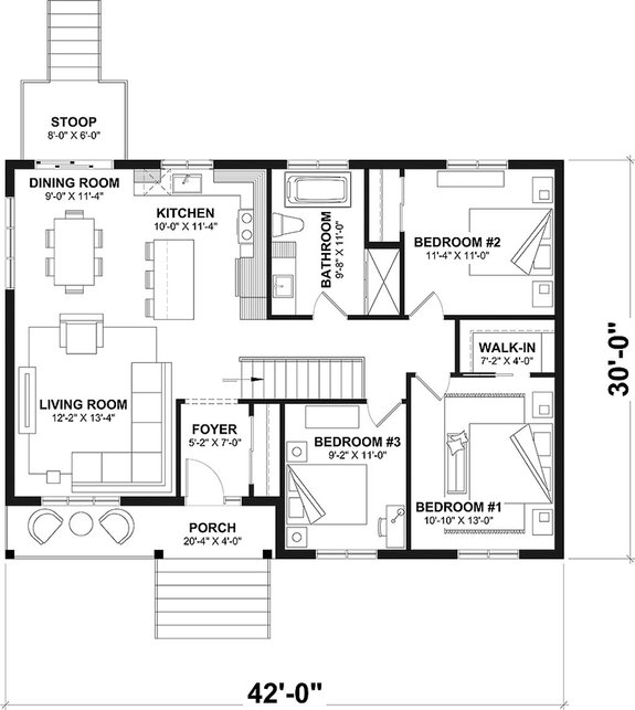
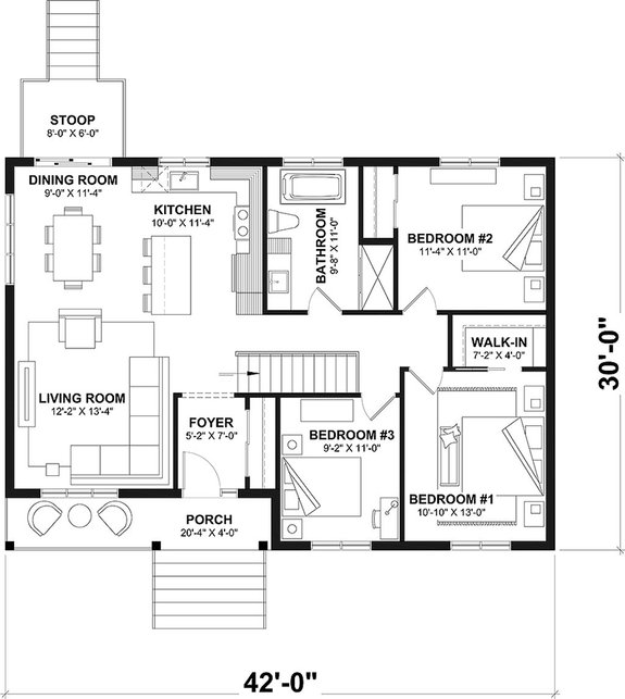
Three-Bedroom Farmhouse Plan
 Three-Bedroom Farmhouse Plan - Front exterior
Three-Bedroom Farmhouse Plan - Front exterior
 Three-Bedroom Farmhouse Plan - Main Level
Three-Bedroom Farmhouse Plan - Main Level
With just over 1,400 square feet of living space, this small farmhouse plan offers an efficient layout and smart details. For example, an island in the kitchen features a snack bar – perfect for casual meals. In the pantry, shelves keep groceries organized.
Nearby, a fireplace keeps the family room cozy during the colder months. The primary suite impresses with a generous shower and a walk-in closet. Front and rear porches give you space for outdoor relaxation.
Affordable Plan with Wraparound Porch
 Affordable Plan with Wraparound Porch - Front Exterior
Affordable Plan with Wraparound Porch - Front Exterior
 Affordable Plan with Wraparound Porch - Main Level
Affordable Plan with Wraparound Porch - Main Level
Building on a budget? Here’s an affordable plan with a simple footprint and farmhouse style. Our favorite part: the large wraparound porch. Storage options include a two-car garage and lockers in the entry.
An island with an eating bar in the kitchen/dining area overlooks the great room. Don’t miss the built-in cabinets and shelves in the pantry. Decorative beams are a welcome touch. Abundant storage throughout the home includes the main suite's walk-in closet.
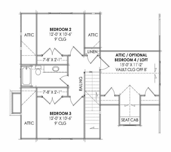
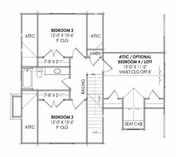
Lots of Outdoor Living
 Lots of Outdoor Living - Front Exterior
Lots of Outdoor Living - Front Exterior
 Lots of Outdoor Living - Main Level
Lots of Outdoor Living - Main Level
 Lots of Outdoor Living - Upper Level
Lots of Outdoor Living - Upper Level
Just under 2,000 square feet, this farmhouse plan encourages relaxed living with a modern layout. A large island in the kitchen provides plenty of counter space for prepping and enjoying meals. The primary suite shows off an extra-roomy closet with direct access to the laundry/utility room.
Two porches (including a wraparound porch) make it easy to enjoy the great outdoors. An optional bonus room/loft, two additional bedrooms, and a full bath wait on the second level.