Blog Home > Best Floor Plan for a 1,200 Sq. Ft. House

The Houseplans Blog

Best Floor Plan for a 1,200 Sq. Ft. House

Discover the best floor plan for a 1,200 sq. ft. house.

Hero Image

July 2, 2024

Livabl Brand

Can't find what you're looking for?

Give us a call below or reach out and we’ll make sure to be in contact!

Send Us a Message

By Courtney Pittman

What’s the best floor plan for a 1,200 sq. ft. house? Well, that depends on many factors. For example, a single-story floor plan would work best if you’re looking for accessibility and to age in place. Dealing with a tight lot? Then a two-story design might be what you’re looking for. Regardless of your needs and situation, an open floor plan will deliver a spacious feel and encourage modern living. We’ve gathered some of our favorites (all around 1,200 sq. ft.) in a variety of styles below.

Explore 1,200 sq. ft. house plans here.

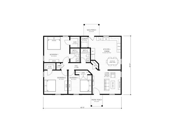
Two-Bedroom Farmhouse Plan Two-Bedroom Farmhouse Plan Two-Bedroom Farmhouse Plan - Front Exterior

Two-Bedroom Farmhouse Plan Two-Bedroom Farmhouse Plan - Main Level

Here’s a stylish farmhouse plan that does a lot with 1,222 square feet. A simple island in the kitchen provides space to enjoy casual meals, while the dining nook sits nearby. Smart amenities include a mudroom (with a bench and a closet) and a spacious pantry.

The primary suite gives you two vanities, a large shower, and direct access to the laundry room. A second bedroom sits near the front of the plan and features a walk-in closet. Take advantage of outdoor living on the wide front porch.

Affordable Cottage Plan Affordable Cottage Plan Affordable Cottage Plan - Front Exterior

Affordable Cottage Plan Affordable Cottage Plan - Main Level

Cute and affordable, this cottage house plan gives you charming curb appeal and an efficient layout inside. You’ll find plenty of counter space in the kitchen/dining area, while the living room sits nearby. A spacious closet in the primary suite is a nice touch. Two more bedrooms (one with a walk-in closet) complete this design.

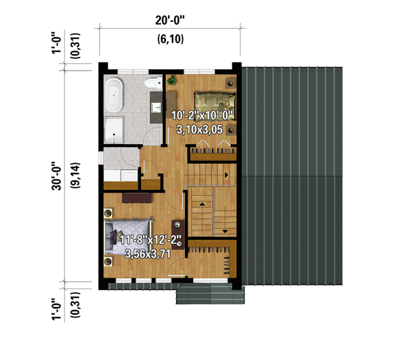
Sleek Plan for Narrow Lot Sleek Plan for Narrow Lot Sleek Plan for Narrow Lot - Front Exterior

Sleek Plan for Narrow Lot Sleek Plan for Narrow Lot - Main Level

Sleek Plan for Narrow Lot Sleek Plan for Narrow Lot - Upper Level

At just 34 feet wide, this sleek plan would work well on a tight lot. Clean lines and mixed siding decorate the exterior. Inside, the main level includes an open-concept living space that feels bright and airy.

An island in the kitchen is ready for casual meals. Store items in the one-car garage. Two bedrooms share a hall bath on the second floor. The laundry room is conveniently located up here as well.

1,200 Sq. Ft. Barndominium Plan 1,200 Sq. Ft. Barndominium Plan 1,200 Sq. Ft. Barndominium Plan - Front Exterior

1,200 Sq. Ft. Barndominium Plan 1,200 Sq. Ft. Barndominium Plan - Main Level

Stay on-trend with this cool barndominium house plan. Clocking in at exactly 1,200 square feet, this design is all about easy living and thoughtful details. The main living areas are open, with a generous island (with an eating bar) in the kitchen. Keep groceries organized in the walk-in pantry.

The bedroom suite enjoys privacy in the left wing of the plan and shows off a sizable closet. In the living room, sliding glass doors lead out to the wide front porch, while French doors open to a side porch.

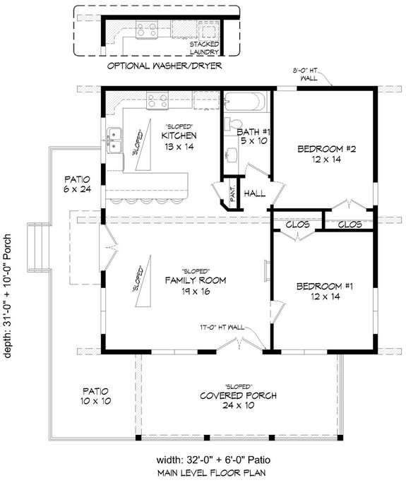
Craftsman Plan with Loft Craftsman Plan with Loft Craftsman Plan with Loft - Front Exterior

Craftsman Plan with Loft Craftsman Plan with Loft - Main Level

Craftsman Plan with Loft Craftsman Plan with Loft - Upper Level

With a wraparound deck and a screened porch, this small Craftsman house plan extends the space with outdoor living connections. The great room opens to the kitchen, where a cooktop island takes center stage. Great for aging in place, the main-level primary suite sits at the back of the plan.

Another bedroom waits upstairs, along with a bathroom and a versatile loft. Oh, and don’t miss the second-level deck.

Simple and Clean Design Simple and Clean Design Simple and Clean Design - Front Exterior

Simple and Clean Design Simple and Clean Design - Main Level

Building on a narrow lot? This 32-foot-wide design delivers contemporary curb appeal and a simple footprint. A kitchen island with a sink and an eating bar opens to the living room for a breezy vibe.

A sliding barn door in the primary suite adds function and style. Don’t miss the second bedroom suite, which comes equipped with a walk-in closet. Nice weather? Enjoy fresh air on the front porch or the back patio.

Two-Bedroom Barndo Plan Two-Bedroom Barndo Plan Two-Bedroom Barndo Plan - Front Exterior

Two-Bedroom Barndo Plan Two-Bedroom Barndo Plan - First Level

Two-Bedroom Barndo Plan Two-Bedroom Barndo Plan - Upper Level

With 1,155 square feet of living space above a versatile barn, this design has lots to offer. The first level gives you a lift-friendly barn that could be used in a variety of ways, while efficient living quarters wait on the second floor. Note the vaulted kitchen, which gives you a small snack island. The living room and the breakfast nook sit nearby.

French doors open to a deck, bringing the outdoors in. The primary suite resides down the hall for extra privacy.

Contemporary Plan with Art Loft Contemporary Plan with Art Loft Contemporary Plan with Art Loft - Front Exterior

Contemporary Plan with Art Loft Contemporary Plan with Art Loft - Main Level

Contemporary Plan with Art Loft Contemporary Plan with Art Loft - Upper Level

Here’s a contemporary house plan that is both compact and spacious. A covered front porch and a patio add welcoming curb appeal and relaxing outdoor living. Inside, the layout feels easygoing and modern.

Highlights we love include the kitchen's eating bar that seats up to five and the flexible art loft on the second level. Two bedrooms share a full bath in the right wing of the plan.

Enjoy more 1,200 sq. ft. house plans.

Get Our Newsletter

Be the first to see new plans, special offers, and more.

By signing up for our newsletter, you agree to our Terms & Conditions and Privacy Policy, for an account

Blog Subscribe Icon