By Courtney Pittman
If you’re in the market for a 3,200 sq. ft. house plan, this is your sign to seal the deal. Here are eight designs with head-turning style and modern layouts to match. They offer abundant space, multi-use rooms, and clever amenities (like mudrooms and main-level primary suites). Explore some of our favorites (all around 3,200 sq. ft.) below.
3,200 Sq. Ft. Farmhouse Plan
 3,200 Sq. Ft. Farmhouse Plan - Front Exterior
3,200 Sq. Ft. Farmhouse Plan - Front Exterior
 3,200 Sq. Ft. Farmhouse Plan - Main Level
3,200 Sq. Ft. Farmhouse Plan - Main Level
Farmhouse style meets modern luxury in this four-bedroom design. A metal roof covers the welcoming wraparound porch. Inside, the kitchen takes center stage with a big island and a hidden pantry (which features a coffee bar).
A fireplace warms the vaulted great room, while a wall of sliding glass doors opens to the rear porch. Don’t miss the extra-generous island in the outdoor kitchen. The primary suite impresses with two closets (one with an island), a walk-through shower, a separate tub, and private access to the rear porch. Other notable details include a walk-in closet in each secondary bedroom, a versatile office, and a three-car garage.
Two Bedroom Suites
 Two Bedroom Suites - Front Exterior
Two Bedroom Suites - Front Exterior
 Two Bedroom Suites - Main Level
Two Bedroom Suites - Main Level
 Two Bedroom Suites - Upper Level
Two Bedroom Suites - Upper Level
Mixed siding, metal roof accents, and a wraparound porch deliver country curb appeal to this large house plan (just over 3,200 sq. ft.). At the heart of the home, the island kitchen (complete with relaxed seating and a nearby dining nook) opens to the breezy fireplace-warmed great room. A prep kitchen waits close by.
Making it easier to age in place, the primary suite resides on the main level and shines with a sizable closet and a luxe bath. A second bedroom suite is ideal for guests. Two bedrooms (each with a walk-in closet) share a bath on the second level. A spacious loft opens up all kinds of possibilities.
Modern 3,200 Sq. Ft. House Plan
 Modern 3,200 Sq. Ft. House Plan - Front Exterior
Modern 3,200 Sq. Ft. House Plan - Front Exterior
 Modern 3,200 Sq. Ft. House Plan - Main Level
Modern 3,200 Sq. Ft. House Plan - Main Level
If you’re looking for a 3,200 sq. ft. house plan with modern style – look no further. Loaded with thoughtful details, this design gives you a sleek exterior and a functional layout. The vaulted great room feels breezy and bright with access to the front and rear porches (via French doors).
The kitchen features a large island with room for extra seating and meal prep. The dining room waits nearby. There’s ample space for groceries in the walk-in pantry. Providing plenty of privacy, the left wing of the plan hosts the primary suite (which boasts an extra-spacious closet with an island).
Large Plan for Narrow Lot
 Large Plan for Narrow Lot - Front Exterior
Large Plan for Narrow Lot - Front Exterior
 Large Plan for Narrow Lot - Main Level
Large Plan for Narrow Lot - Main Level
 Large Plan for Narrow Lot - Upper Level
Large Plan for Narrow Lot - Upper Level
Building on a slim lot? You’re in luck. This narrow farmhouse plan shows off board-and-batten siding and lots of windows. The three-car garage is a convenient touch.
Inside, the open floor plan includes a kitchen with a prep island and bar seating. A bedroom suite sits near the great room. Two more bedroom suites (including the primary suite), two secondary bedrooms, a full bath, and the laundry room wait on the second level.
Four-Bedroom Contemporary Plan
 Four-Bedroom Contemporary Plan - Front Exterior
Four-Bedroom Contemporary Plan - Front Exterior
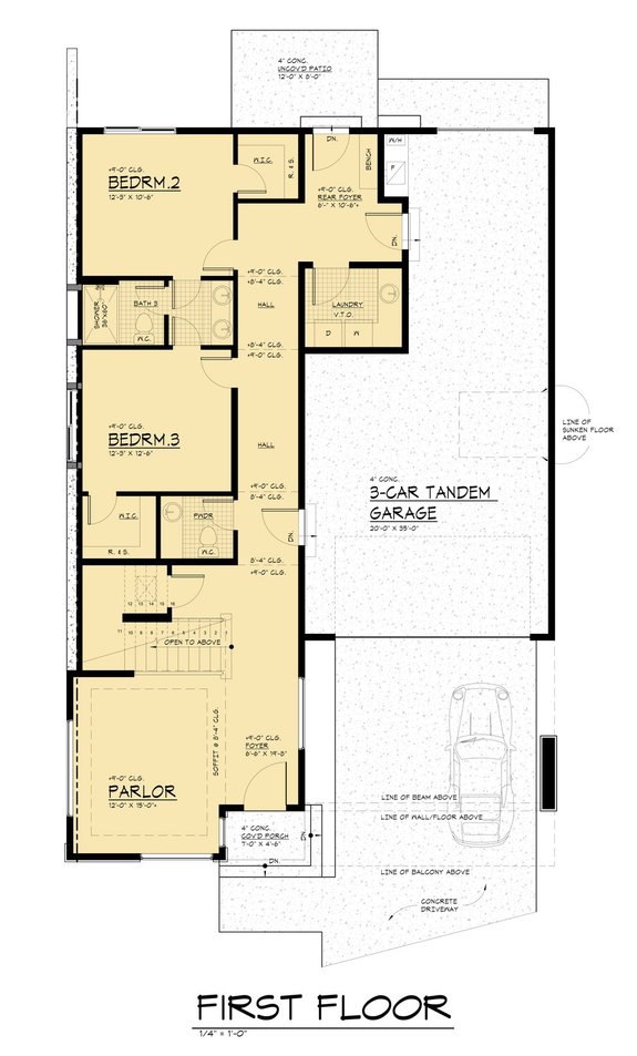
 Four-Bedroom Contemporary Plan - Main Level
Four-Bedroom Contemporary Plan - Main Level
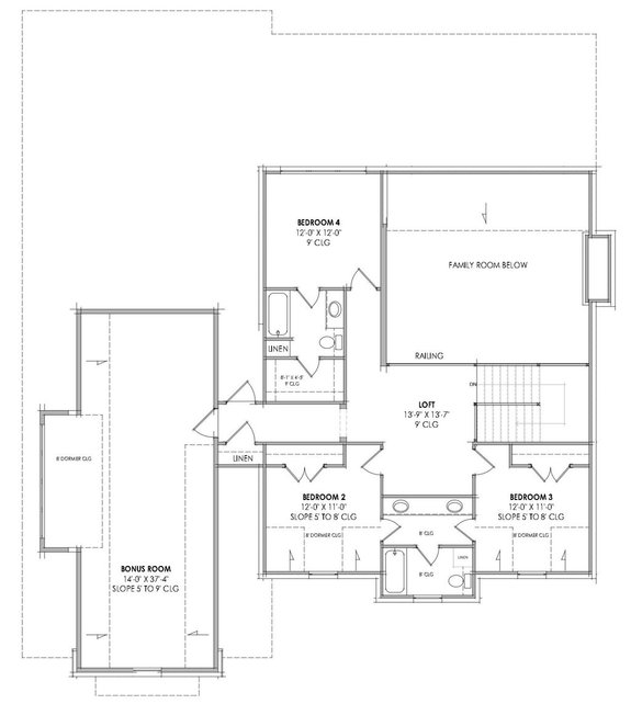
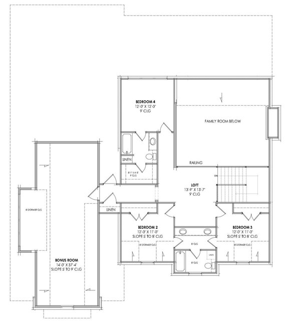
 Four-Bedroom Contemporary Plan - Upper Level
Four-Bedroom Contemporary Plan - Upper Level
Hello curb appeal! We are swooning over this contemporary house plan. The open-concept layout creates easy flow between the great room, the island kitchen, and the dining room. The generous pantry gives you built-in shelves and an appliance counter.
Don’t miss the deluxe primary suite, which showcases a custom shower (with a bench) and a soaking tub. The first floor includes two bedrooms, a versatile parlor, and a three-car garage.
Tudor Style Plan with Bonus Room
 Tudor Style Plan with Bonus Room - Front Exterior
Tudor Style Plan with Bonus Room - Front Exterior
 Tudor Style Plan with Bonus Room - Main Level
Tudor Style Plan with Bonus Room - Main Level
 Tudor Style Plan with Bonus Room - Upper Level
Tudor Style Plan with Bonus Room - Upper Level
With a spacious back porch, this Tudor design gives you plenty of room to enjoy outdoor living. The kitchen takes center stage with an island that opens to the family room. Check out the serving area next to the walk-in pantry.
Just off the three-car garage, bench and hooks keep items organized in the foyer. The primary suite sits conveniently on the main level, while two additional bedrooms and a second bedroom suite wait upstairs. The options are endless with the well-appointed loft.
Contemporary Plan with Flex Room
 Contemporary Plan with Flex Room - Front Exterior
Contemporary Plan with Flex Room - Front Exterior
 Contemporary Plan with Flex Room - Main Level
Contemporary Plan with Flex Room - Main Level
 Contemporary Plan with Flex Room - Upper Level
Contemporary Plan with Flex Room - Upper Level
 Contemporary Plan with Flex Room - Loft Level
Contemporary Plan with Flex Room - Loft Level
This contemporary house plan has us wanting to move right in. The open layout between the main living areas encourages comfortable living. The primary suite offers direct access to the laundry room, making it easy to throw in a load. A covered breezeway connects to the two-car garage.
On the second level, the flex room flows effortlessly into the family room. Sliding glass doors open to the balcony. Three bedrooms share a full hall bath. An art loft rounds out this design.
Barndominium Plan with Shop
 Barndominium Plan with Shop - Front Exterior
Barndominium Plan with Shop - Front Exterior
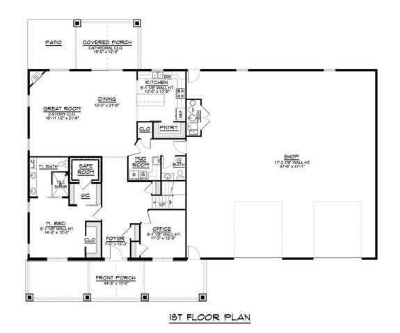
 Barndominium Plan with Shop - Main Level
Barndominium Plan with Shop - Main Level
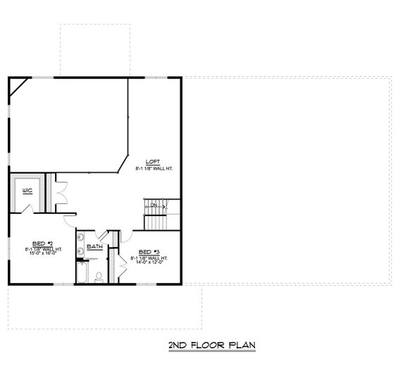
 Barndominium Plan with Shop - Upper Level
Barndominium Plan with Shop - Upper Level
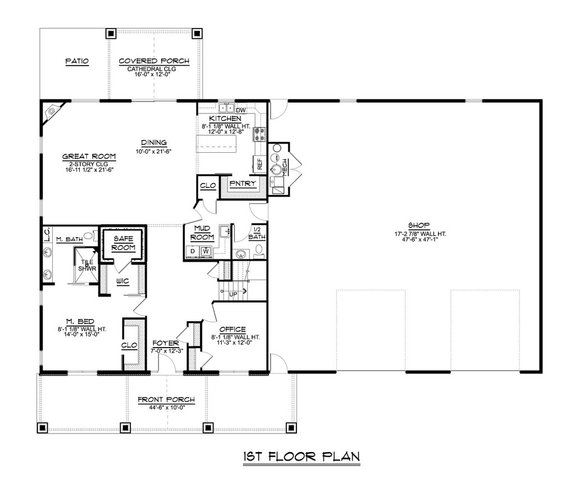
A modern take on the classic barndominium, this house plan turns heads with a timeless exterior and a simple footprint. The island kitchen, complete with a snack bar, opens to the dining area and the great room. A shop in the two-car garage is a welcome detail.
Front and rear porches make it easy to enjoy the view. Next to the foyer, an office provides additional space. Upstairs, you’ll find two bedrooms, a full bath, and a loft.