Full of style and smart features, affordable house plans are typically small, simple, and easy-to-build designs. With open floor plans, major curb appeal, and sweet indoor-outdoor living spaces, these budget-friendly house plans feel anything but cheap. You can keep building costs down with smaller footprints (check out this article from The Spruce for more ways to cut back on building costs), uncomplicated layouts (hello, open concept floor plans!), and smart material choices. Check out these cheap, easy to build house plans below.
Browse our collection of affordable house plans.
Farm-Inspired ADU Plan
Farm-Inspired ADU Plan - Front Exterior
Farm-Inspired ADU Plan - Main Level
Farm-Inspired ADU Plan - Upper Level
Farmhouse style is very much a thing – and we are here for it. Here’s an adorable ADU (accessory dwelling unit) plan. We love the board-and-batten siding and the gable roof. The first floor gives you a garage with room to store up to two vehicles.
The second level features a vaulted living area that opens to the kitchen. A breakfast bar is ready for relaxed dining. A hall bath sits between the bedroom and a flex room. Nice weather? Enjoy outdoor living on the deck.
Tiny Farmhouse Design
Tiny Farmhouse Design - Front Exterior
Tiny Farmhouse Design - Main Level
Tiny Farmhouse Design - Upper Level
Making great use of space, this tiny farmhouse plan lives large with a clever layout. A covered terrace greets you and offers plenty of room to enjoy the outdoors. Inside, the open living area includes the great room and the kitchen. Note the built-in bench in the breakfast nook.
A versatile office with shelves waits at the back of the plan, along with a bathroom. Upstairs, a mezzanine offers privacy and boasts a secret room.
Simple Barndominium Plan
Simple Barndominium Plan - Front Exterior
Simple Barndominium Plan - Main Level
A four-corner footprint makes this barndominium plan a builder-friendly option. A metal roof, front and rear porches, and metal siding add classic barn-inspired charm to the exterior. Inside, the kitchen island opens to the living room and the dining area for easy serving. In the primary suite, an extra-big closet keeps clothes organized.
Modern One-Story Plan
Modern One-Story Plan - Front Exterior
Modern One-Story Plan - Main Level
Clean lines grace the exterior of this modern one-story plan. Inside, the vibe is relaxed with a super-open layout between the L-shaped kitchen and the living room. The primary suite resides on the left side of the plan and impresses with a big shower. An additional bedroom and a full bath wait down the hall. Unwind on the cute front porch.
Big Kitchen Island
Big Kitchen Island - Front Exterior
Big Kitchen Island - Main Level
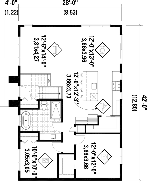
This European-style house plan is all about effortless living with a contemporary layout and thoughtful amenities. We love the large windows throughout. An island gives you plenty of room for meal prep in the kitchen. Don’t miss the spacious pantry. The dining nook and the living room wait close by. Two bedrooms (one with a walk-in closet) take up space on the right side of the plan. Nearby, the hall bath gives you a generous shower and a separate tub.
Garage Apartment Plan with Carport
Garage Apartment Plan with Carport - Front Exterior
Garage Apartment Plan with Carport - Main Level
Garage Apartment Plan with Carport - Upper Level
Timeless design details like board-and-batten siding, a metal gable roof, and barn lighting deliver farmhouse curb appeal to this garage apartment plan. Its modest square footage (713 square feet) makes it an affordable option. The lower level features a two-car garage with two storage closets.
A carport offers room for a third vehicle. Upstairs, the living room is completely open to the kitchen and the dining area. A bedroom suite (with a walk-in closet) rounds out this plan.
Three-Car Garage
Three-Carr Garage - Front Exterior
Three-Car Garage - Upper Level
Bright and modern, this ADU plan is all about easy living. The main floor gives you plenty of room for storage with a three-car garage. A half bath waits close by.
The island kitchen is ready for casual meals and effortlessly flows into the open great room. Two bedrooms share a hall bath at the back of the plan. Relax with a book on the wide deck.
Contemporary Garage Apartment Plan
Contemporary Garage Apartment Plan - Front Exterior
Contemporary Garage Apartment Plan - Main Level
Contemporary Garage Apartment Plan - Upper Level
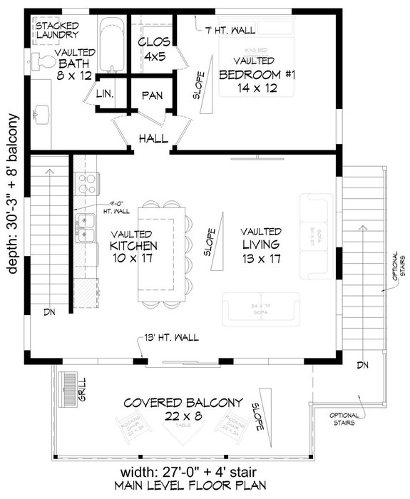
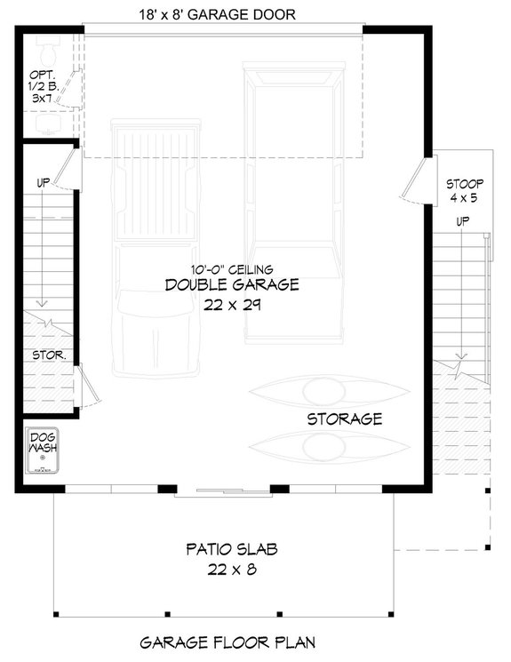
Here’s a compact garage apartment plan with contemporary curb appeal and thoughtful extras. For example, a covered balcony extends the living space and offers outdoor living. In the kitchen, a central island seats up to eight and overlooks the vaulted living room.
A walk-in closet highlights the bedroom, while a full bath waits nearby. The lower level features a two-car garage with room for storage. A patio gives you even more space for outdoor enjoyment. Don’t miss the dog wash area!
Explore cheap-to-build house plans.
Take Note: Many factors contribute to the cost of building a house, such as location and material choice. To better understand what a particular house plan will cost to build in your area, we recommend ordering a Cost to Build Report for a nominal fee.
