Blog Home > Double Island Kitchen Floor Plans

The Houseplans Blog

Double Island Kitchen Floor Plans

Live in luxury with double island kitchen floor plans.

Hero Image

July 27, 2024

Livabl Brand

Can't find what you're looking for?

Give us a call below or reach out and we’ll make sure to be in contact!

Send Us a Message

By Courtney Pittman

It’s all about modern living and touches of luxury with these double island kitchen floor plans. What makes them so impressive? They offer kitchen layouts that encourage easy conversation, more room for meal prep, and extra seating. Most plans today feature one big island, which may be what you end up preferring, but if you want two different prep zones, check out these designs.

Want more? Browse our collection of plans with amazing kitchens here.

Six-Bedroom Farmhouse Plan with In-Law Suite Six-Bedroom Farmhouse Plan with In-Law Suite Six-Bedroom Farmhouse Plan with In-Law Suite - Front Exterior

Six-Bedroom Farmhouse Plan with In-Law Suite Six-Bedroom Farmhouse Plan with In-Law Suite - Main Level

Six-Bedroom Farmhouse Plan with In-Law Suite Six-Bedroom Farmhouse Plan with In-Law Suite - Upper Level

Here’s a six-bedroom house plan with farmhouse flair. Enjoy shaded comfort on the wraparound porch. Inside, an open layout creates a relaxed vibe between the main living areas. In the kitchen, two islands give you lots of room for meal prep. A big pantry waits nearby.

In the living room, two sets of French doors open to a patio out back. Two bedroom suites sit on either side of the plan, offering versatility. Other special highlights include a game/media room, an organized mudroom, and a study.

Can't get enough kitchens? Check out this blog of house plans with amazing kitchens.

Three-Bedroom Craftsman Plan Three-Bedroom Craftsman Plan Three-Bedroom Craftsman Plan - Front Exterior

Three-Bedroom Craftsman Plan Three-Bedroom Craftsman Plan - Main Level

Three-Bedroom Craftsman Plan Three-Bedroom Craftsman Plan - Upper Level

With two kitchen islands (well, one of them is perhaps technically a peninsula, but we'll count it), this Craftsman design is ready for entertaining. Complete with a walk-in closet, a shower, a separate tub, and an exercise room, the primary suite feels like a spacious retreat. There’s no shortage of outdoor living space thanks to the lanai (which features a fireplace) and the BBQ porch.

Finish the second level for extra space and flexibility with a game room, a billiards area, an alcove, and a media room. Don’t miss the three-car garage.

Contemporary and Cool Contemporary and Cool Contemporary and Cool - Front Exterior

Contemporary and Cool Contemporary and Cool - Main Level

Contemporary and Cool Contemporary and Cool - Upper Level

This contemporary house plan gives you a stunning two-story layout with luxurious amenities. For example, the kitchen offers two islands, a drink bar, and a roomy pantry. You'll find practical details too, like the extra-big laundry room that sits between the guest suite and an office.

Residing on the left side of the main level, the primary suite features a super-spacious closet, a large shower (with two shower heads), and a freestanding tub. Out back, a covered porch sports a grill and a sink, while a gym sits nearby. Don’t miss the safe room next to the three-car garage.

Loving any of the plans you're seeing? Register now to easily save and return to your favorites!

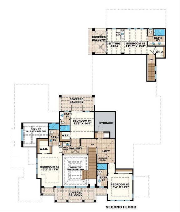
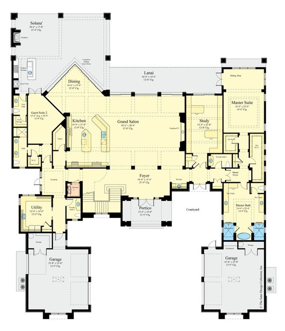
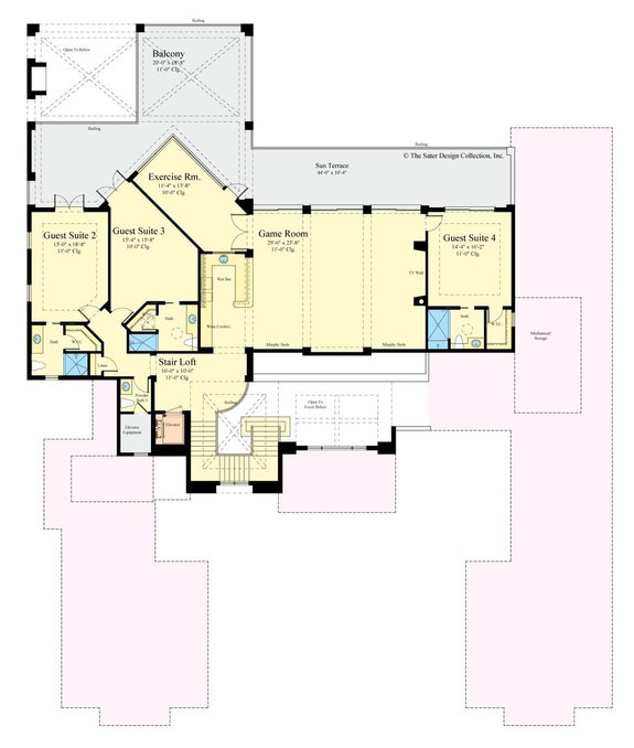
Five-Bedroom Plan with Game Room Five-Bedroom Plan with Game Room Five-Bedroom Plan with Game Room - Front Exterior

Five-Bedroom Plan with Game Room Five-Bedroom Plan with Game Room - Main Level

Five-Bedroom Plan with Game Room Five-Bedroom Plan with Game Room - Upper Level

Sleek lines and a metal roof grace the exterior of this contemporary house plan. Inside, the kitchen features two islands (one with a snack bar) that overlook the breezy grand salon. Located on the main floor, the primary suite stands out with two showers, two walk-in closets, and a sitting area.

We love the generous study, which gives you two built-in desks. Sliding glass doors open to the rear lanai, which boasts an outdoor kitchen and a fireplace. Versatile spaces include a game room, an exercise room, and a stair loft. A wet bar on the second level is a fun touch.

Two-Story Farmhouse Design Two-Story Farmhouse Design Two-Story Farmhouse Design - Front Exterior

Two-Story Farmhouse Design Two-Story Farmhouse Design - Main Level

Two-Story Farmhouse Design Two-Story Farmhouse Design - Upper Level

With a well-equipped layout and upscale amenities (like both a peninsula and an island in the kitchen), this farmhouse plan offers modern convenience. A study near the foyer provides a flexible work space that opens out to the lanai, so it's easy to take a break after a long meeting. Practical features include a walk-in pantry, a butler's pantry, and easy access to the laundry room from the primary suite's walk-in closet.

Note the large lanai at the back of the plan. Upstairs you’ll find two more bedrooms, along with a full bath.

Impressive Outdoor Living Impressive Outdoor Living Impressive Outdoor Living - Front Exterior

Impressive Outdoor Living Impressive Outdoor Living - Main Level

Impressive Outdoor Living Impressive Outdoor Living - Upper Level

Here’s a luxurious country-inspired design that offers impressive indoor/outdoor living options and lots of thoughtful details. The kitchen takes center stage with two islands. In the family room, a wall of sliding glass doors opens to the large covered lanai, where a U-shaped outdoor kitchen is ready for relaxed meals. The left side of the main level hosts the deluxe primary suite, which shows off two walk-in closets and a morning bar.

Three bedroom suites plus an in-law suite (offering lots of privacy on its own above the garage) and a loft wait upstairs, along with more outdoor living. Other smart amenities include a home office and a study.

Explore more house plans with great kitchens.

Get Our Newsletter

Be the first to see new plans, special offers, and more.

By signing up for our newsletter, you agree to our Terms & Conditions and Privacy Policy, for an account

Blog Subscribe Icon