Blog Home > Floor Plans for Build to Rent Homes

The Houseplans Blog

Floor Plans for Build to Rent Homes

These home designs will appeal to tenants.

Hero Image

January 2, 2025

Livabl Brand

Can't find what you're looking for?

Give us a call below or reach out and we’ll make sure to be in contact!

Send Us a Message

By Courtney Pittman

These floor plans for build to rent homes offer open layouts, up-to-date amenities, and well-placed rooms. Look for ADU plans (accessory dwelling units), duplex plans, triplex plans, and more. See more of these clever plans below.

Want more? Check out our collection of floor plans for build to rent homes here.

Modern Build to Rent Home Modern Build to Rent Home Modern Build to Rent Home - Front Exterior

Modern Build to Rent Home Modern Build to Rent Home - First Level

Modern Build to Rent Home Modern Build to Rent Home - Upper Level

Clean lines, a sleek roof, and board-and-batten siding…what’s not to love? This modern duplex design features two mirrored units with open floor plans. The first floor gives you a garage with storage, a versatile office, a bedroom with a big closet, and a bath.

Upstairs, the kitchen gives you a big island and lots of counter space. The open family room and a powder bath wait nearby. A bedroom suite offers privacy at the back of the plan.

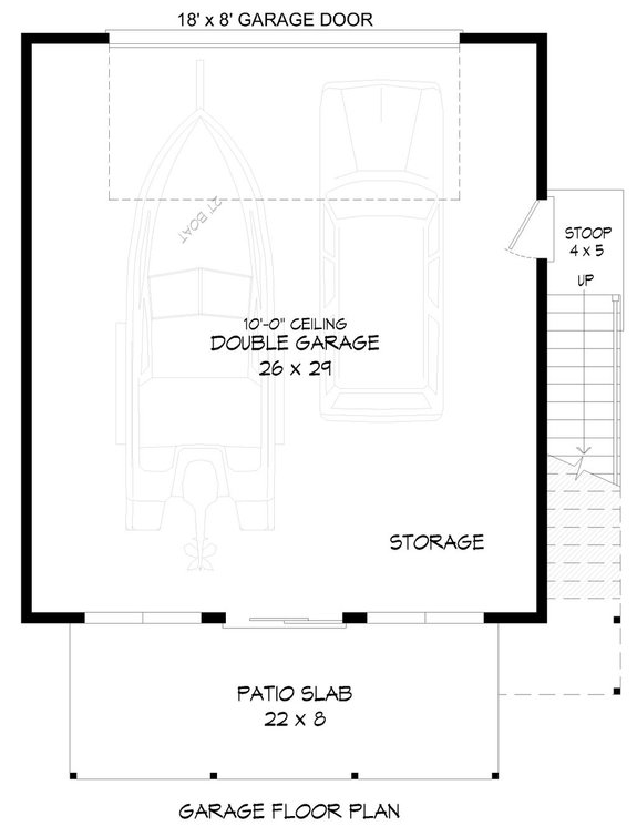
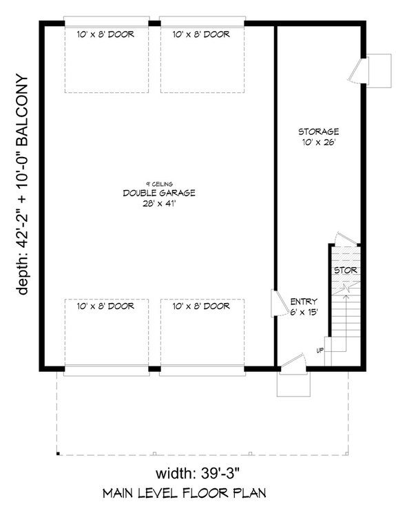
Build to Rent Garage Apartment Plan Build to Rent Garage Apartment Plan Build to Rent Garage Apartment Plan - Front Exterior

Build to Rent Garage Apartment Plan Build to Rent Garage Apartment Plan - First Level

Build to Rent Garage Apartment Plan Build to Rent Garage Apartment Plan - Upper Level

Here’s a handy build to rent garage apartment plan that would make a great accessory dwelling unit. The first floor gives you a garage with room for two vehicles and dedicated storage space. A patio slab offers outdoor enjoyment.

Ready for a view, the balcony on the second level is the perfect spot to unwind after a long day. The vaulted kitchen features an island that serves the living room. In the bedroom, a walk-in closet keeps clothes organized.

Explore our collection of garage apartment plans here.

Farmhouse-Inspired Duplex Plan Farmhouse-Inspired Duplex Plan Farmhouse-Inspired Duplex Plan - Front Exterior

Farmhouse-Inspired Duplex Plan Farmhouse-Inspired Duplex Plan - Main Level

Farmhouse-Inspired Duplex Plan Farmhouse-Inspired Duplex Plan - Upper Level

Check out this farmhouse-inspired duplex plan. An entry with lockers greets you as you step in from the garage, keeping items tidy. Nearby, an eating bar in the kitchen encourages casual meals.

Just off the open living room, a front porch offers shaded comfort. At the back of the plan, a small patio invites you outside. Upstairs, the primary suite shines with dual sinks and a walk-in closet. Two more bedrooms (each with a walk-in closet), and a versatile loft round out this level.

Discover more duplex house plans here.

Under 1,000 Square Feet Under 1,000 Square Feet Under 1,000 Square Feet - Front Exterior

Under 1,000 Square Feet Under 1,000 Square Feet - First Level

Under 1,000 Square Feet Under 1,000 Square Feet - Upper Level

Hello curb appeal! This adorable ADU design would make a great addition to a backyard. Featuring a three-car garage on the first floor, this plan gives you loads of storage space.

On the second level, a U-shaped bar creates counter space in the kitchenette. A studio space waits close by. Note the walk-in closet in the bedroom.

Contemporary Duplex Design Contemporary Duplex Design Contemporary Duplex Design - Front Exterior

Contemporary Duplex Design Contemporary Duplex Design - Main Level

Contemporary Duplex Design Contemporary Duplex Design - Upper Level

Mixed siding and a shed roof deliver contemporary curb appeal to this duplex plan. Each unit shows off a one-car garage on the first level. Inside, the great room is open to the kitchen and the dining nook.

Upstairs, you’ll find two sinks and an extra-spacious closet in the primary suite. The washer and dryer wait conveniently nearby. Two additional bedrooms share a full hall bath.

Triplex Plan with Farmhouse Style Triplex Plan with Farmhouse Style Triplex Plan with Farmhouse Style - Front Exterior

Triplex Plan with Farmhouse Style Triplex Plan with Farmhouse Style - Main Level

Triplex Plan with Farmhouse Style Triplex Plan with Farmhouse Style - Upper Level

This build to rent triplex plan is big on farmhouse style! A front porch welcomes you to each unit and offers outdoor living. Inside, an island kitchen with an eating bar overlooks the living room.

Note the lockers in the entry (just off the oversized one-car garage). Three bedrooms (including the primary suite) and a full bath complete this plan.

See more triplex plans here.

Contemporary One-Story Plan Contemporary One-Story Plan Contemporary One-Story Plan - Front Exterior

Contemporary One-Story Plan Contemporary One-Story Plan - Main Level

This one-story built to rent plan shows off contemporary curb appeal and up-to-date interior features to match. A vaulted ceiling delivers a breezy vibe to the main gathering areas. A fireplace warms the great room, which opens to the dining area and the island kitchen.

Don't miss the extra-large pantry. Two secondary bedrooms share a full bath on the left side of the plan. The primary suite enjoys privacy and a spa-like bath on the right.

Chic Fourplex Design Chic Fourplex Design Chic Fourplex Design - Front Exterior

Chic Fourplex Design Chic Fourplex Design - Main Level

Chic Fourplex Design Chic Fourplex Design - Upper Level

Chic and efficient, each unit of this fourplex design makes great use of space. The main gathering areas combine to form one open space, with seating at the eating bar or in the dining area. Keep groceries organized in the walk-in pantry. The primary suite, two secondary bedrooms, a full bath, and the laundry room rest on the second level.

More multi-family home designs are this way!

Three-Story Duplex Plan Three-Story Duplex Plan Three-Story Duplex Plan - Front Exterior

Three-Story Duplex Plan Three-Story Duplex Plan - Main Level

Three-Story Duplex Plan Three-Story Duplex Plan - Upper Level

Three-Story Duplex Plan Three-Story Duplex Plan - Lower Level

Here’s a smart three-story duplex plan that uses space wisely. The lower level gives you a double garage with room for four vehicles and super-spacious storage room. Upstairs, two sets of sliding glass doors open to a large balcony/deck, creating a breezy vibe.

An island in the kitchen opens to the eating nook and the living room. Take advantage of the extra-big closet and the luxe shower (with two shower heads) in the primary suite. Two bedrooms, a full bath, and the laundry room wait down the hall. An identical unit waits on the upper level.

Single-Family Farmhouse Plan Single-Family Farmhouse Plan Single-Family Farmhouse Plan - Front Exterior

Single-Family Farmhouse Plan Single-Family Farmhouse Plan - Main Level

Single-Family Farmhouse Plan Single-Family Farmhouse Plan - Upper Level

Here's a single-family plan under 2,000 square feet. With a welcoming front porch and a gable roof, this design is all about farmhouse style. Inside, the kitchen takes center stage with an island and a walk-in pantry.

Nearby, the dining nook opens to the spacious great room. Upstairs, the primary suite shines with two walk-in closets. Other highlights include a two-car garage, a rear deck, and a laundry room conveniently located on the second level.

Explore more build to rent homes.

Get Our Newsletter

Be the first to see new plans, special offers, and more.

By signing up for our newsletter, you agree to our Terms & Conditions and Privacy Policy, for an account

Blog Subscribe Icon