Blog Home > Garage Apartment Plans

The Houseplans Blog

Garage Apartment Plans

Give yourself options with these garage apartment plans.

Hero Image

September 3, 2024

Livabl Brand

Can't find what you're looking for?

Give us a call below or reach out and we’ll make sure to be in contact!

Send Us a Message

By Courtney Pittman

These garage apartment plans stand out with special details and may make great Accessory Dwelling Units (ADUs) or tiny homes. Look for uncomplicated layouts with space where it counts. Other smart features include outdoor living areas and room for storage. Here are eight of our favorites.

Explore our collection of garage apartment plans here.

Colonial Style Garage Apartment Plan Colonial Style Garage Apartment Plan Colonial Style Garage Apartment Plan - Front Exterior

Colonial Style Garage Apartment Plan Colonial Style Garage Apartment Plan - Main Level

Colonial Style Garage Apartment Plan Colonial Style Garage Apartment Plan - Upper Level

Here’s a garage apartment plan that shows off Colonial style with a brick facade and a hip roof. Inside, the living room flows effortlessly into the U-shaped kitchen. A bedroom and a bathroom (which features a big shower) wait nearby. The two-car garage gives you extra room for storage.

Barn-Inspired Garage Apartment Design Barn-Inspired Garage Apartment Design Barn-Inspired Garage Apartment Design - Front Exterior

Barn-Inspired Garage Apartment Design Barn-Inspired Garage Apartment Design - Main Level

The easygoing layout inside this garage apartment design delivers functionality with an open floor plan. A kitchen island serves the dining nook and the living room. Nice weather? Sliding glass doors open to a covered wraparound porch.

The bedroom suite boasts a walk-in closet. A shop area in the two-car garage is a welcome detail.

Can't get enough of the barndo look? Check out these barndominium garage plans.

Farmhouse Plan with Three-Car Garage Farmhouse Plan with Three-Car Garage Farmhouse Plan with Three-Car Garage - Front Exterior

Farmhouse Plan with Three-Car Garage Farmhouse Plan with Three-Car Garage - Main Level

Farmhouse Plan with Three-Car Garage Farmhouse Plan with Three-Car Garage - Upper Level

Hello curb appeal! This garage apartment plan shines with farmhouse curb appeal. Note the board-and-batten siding, the dormer, and the stylish barn lighting. Park up to three vehicles in the garage on the main level. Don’t miss the storage space under the stairs.

On the second floor, a large island in the kitchen creates a relaxed vibe and overlooks the dining area and the vaulted living room. The primary suite gives you a big walk-in closet that includes a washer/dryer for extra convenience.

Barndo Plan with Shop Barndo Plan with Shop Barndo Plan with Shop - Front Exterior

Barndo Plan with Shop Barndo Plan with Shop - Main Level

Barndo Plan with Shop Barndo Plan with Shop - Upper Level

Wowzers! Here’s a garage apartment plan that turns heads with gorgeous barndominium style. We love the metal gable roof and the cool barn door details. The first floor gives you a six-car garage that features a shop and a tack room. The main living areas also reside on this level (including the two-story great room).

Relax on the covered wraparound porch. Upstairs, you’ll find a bedroom suite, an additional bedroom, a full bath, and a storage closet.

Garage Plan with Studio Garage Plan with Studio Garage Plan with Studio - Front Exterior

Garage Plan with Studio Garage Plan with Studio - Main Level

Garage Plan with Studio Garage Plan with Studio - Upper Level

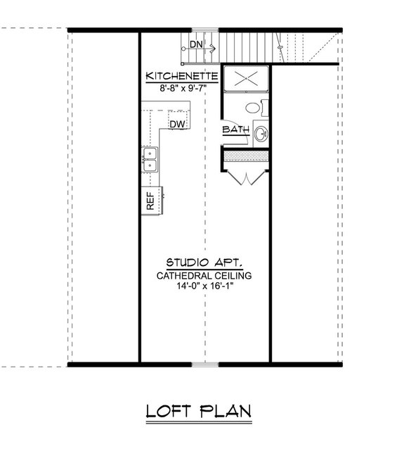
This garage plan would work well on a small lot. The first floor features a two-car garage with storage under the stairs. The second level gives you a studio apartment that includes a kitchenette and a bathroom with a big shower. The covered porch is an added bonus!

Loving any of the plans you're seeing? Register now to easily save and return to your favorites!

Two-Bedroom Garage Apartment Plan Two-Bedroom Garage Apartment Plan Two-Bedroom Garage Apartment Plan - Front Exterior

Two-Bedroom Garage Apartment Plan Two-Bedroom Garage Apartment Plan - Main Level

Two-Bedroom Garage Apartment Plan Two-Bedroom Garage Apartment Plan - Upper Level

Here’s a two-bedroom garage apartment plan that delivers curb appeal with stone siding and a gable roof. The garage gives you room to store up to two vehicles. Upstairs, the U-shaped kitchen opens directly to the family room for easy flow. Two bedrooms share a hall bath on the left side of the plan.

Flexible Farmhouse Plan Flexible Farmhouse Plan Flexible Farmhouse Plan - Front Exterior

Flexible Farmhouse Plan Flexible Farmhouse Plan - Main Level

Flexible Farmhouse Plan Flexible Farmhouse Plan - Upper Level

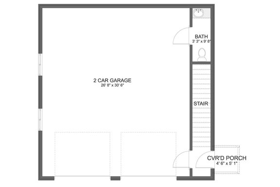
This farmhouse style garage plan is unapologetically charming. From the metal roof to the cute side porch – we are in love. The main level shows off a three-car garage, storage under the stairs, and…drumroll please…a boot room with a built-in bench.

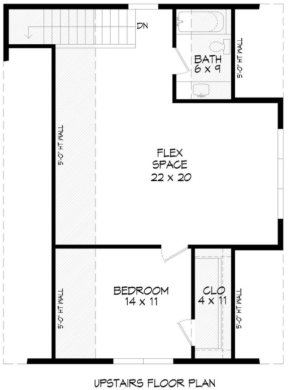
On the second floor, a flex space opens all kinds of possibilities. Nearby, the bedroom impresses with a spacious walk-in closet.

Contemporary Plan with Balcony Contemporary Plan with Balcony Contemporary Plan with Balcony - Front Exterior

Contemporary Plan with Balcony Contemporary Plan with Balcony - Main Level

Contemporary Plan with Balcony Contemporary Plan with Balcony - Upper Level

This plan shines with contemporary details (like clean lines and a shed roof). Lots of windows flood the interior with natural light. The open layout features a kitchen, a morning room, and a living room. French doors open to the generous balcony.

Other thoughtful details include a workshop area in the two-car garage and a built-in bench (plus hooks) in the entry.

Browse more garage apartment plans.

Get Our Newsletter

Be the first to see new plans, special offers, and more.

By signing up for our newsletter, you agree to our Terms & Conditions and Privacy Policy, for an account

Blog Subscribe Icon