By Gabby Torrenti
These hillside house plans feature garages underneath, helping to maximize your hillside space and make accessing your home simple. Creating versatile space underneath the main house, a hillside plan with a garage underneath is perfect for narrow lots of sloped land. This collection features plans of all styles too, so you’re sure to find a plan that you’ll love.
Contemporary Hillside Home
 Contemporary Hillside Home 1070-7 - Front Exterior
Contemporary Hillside Home 1070-7 - Front Exterior
 Contemporary Hillside Home 1070-7 - Main Floor Plan
Contemporary Hillside Home 1070-7 - Main Floor Plan
 Contemporary Hillside Home 1070-7 - Upper Floor Plan
Contemporary Hillside Home 1070-7 - Upper Floor Plan
 Contemporary Hillside Home 1070-7 - Lower Floor Plan
Contemporary Hillside Home 1070-7 - Lower Floor Plan
With just under 2,300 square feet of living space, this contemporary home features dual entrances: one through the main-level front door and a second through the garage beneath this level. Through the garage entrance, a mudroom with lots of storage space helps keep your home organized, while also keeping your most-used shoes and bags within simple reach. Up a short flight of stairs, the main level opens with a convenient laundry room and bathroom around the corner from the main living space. The kitchen, great room, and open dining room make up this central space, with a walk-in pantry and guest bedroom on opposite sides of the kitchen. Both deck and patio spaces are accessed from this floor too, giving your home lots of outdoor entertaining and relaxation potential.
Upstairs, the primary bedroom takes over a large portion of this level, featuring its own walk-in closet and a bathroom with dual sinks, creating a relaxing space for you to enjoy. Across the hallway, an additional full bathroom is made available to all of the inhabitants of this level, located conveniently adjacent to the versatile den/guest room. This space includes access to a balcony as well, allowing you to take in the sweeping views of your property from a birds-eye perspective.
Modern Home with a Three-Car Garage
 Modern Home with a Three-Car Garage 1066-62 - Front Exterior
Modern Home with a Three-Car Garage 1066-62 - Front Exterior
 Modern Home with a Three-Car Garage 1066-62 - Main Floor Plan
Modern Home with a Three-Car Garage 1066-62 - Main Floor Plan
 Modern Home with a Three-Car Garage 1066-62 - Upper Floor Plan
Modern Home with a Three-Car Garage 1066-62 - Upper Floor Plan
 Modern Home with a Three-Car Garage 1066-62 - Lower Floor Plan
Modern Home with a Three-Car Garage 1066-62 - Lower Floor Plan
Nearly 4,000 square feet of living space await you in this hillside house plan, which has space for three cars in the lower-level garage. The main level opens with the home’s foyer and a staircase that leads up to the second floor. At the base of this flight of stairs sits the formal dining room with a coffered ceiling and nearby access to the deck from the butler’s pantry. Through the butler’s pantry, a breakfast nook borders the kitchen, which features a central island that makes meal prepping easy. On the opposite side of this nook, the great room creates a perfect hub for relaxing with family or friends, just steps from the covered patio. A short walk back past the main staircase leads to the guest suite, which includes a walk-in closet and its own bathroom. This level is made complete with an additional powder room, giving guests space to freshen up.
Upstairs, a bridge that’s open to below makes this space feel open and airy, while also connecting the primary suite to the rest of the home’s bedrooms. The main suite includes a large walk-in closet, a spacious dressing area/foyer, and a bathroom with double sinks and a tub with a view. The laundry room is located just outside this suite, helping to keep your home organized, too. Across the bridge, two more bedrooms are perfect for kids or out-of-town visitors to enjoy, with a bathroom in the middle. Two sinks and a private toilet/shower area make this space simple to share, too.
Traditional Home with a Garage Underneath
Traditional Home with a Garage Underneath 437-57 - Front Exterior
 Traditional Home with a Garage Underneath 437-57 - Main Floor Plan
Traditional Home with a Garage Underneath 437-57 - Main Floor Plan
 Traditional Home with a Garage Underneath 437-57 - Upper Floor Plan
Traditional Home with a Garage Underneath 437-57 - Upper Floor Plan
 Traditional Home with a Garage Underneath 437-57 - Lower Floor Plan
Traditional Home with a Garage Underneath 437-57 - Lower Floor Plan
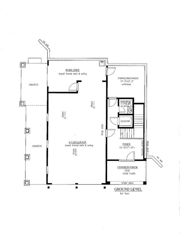
On the lower level of this 3,520-square-foot home, space for four cars is surrounded by a storage room, covered porch, a powder room, a workshop, and even an elevator. Heading up to the main floor via either the stairs or elevator, you are greeted by the wide-open dining room, which is bordered by the great room with a built-in fireplace and a kitchen with a center island and breakfast zone. Behind the breakfast area, a keeping room creates a quaint space to relax with guests or family, with a fireplace to keep things cozy. At the rear of the kitchen, a spacious working pantry keeps all of your favorite ingredients within reach and provides lots of convenient storage space. This main level is made complete with a study that’s ideal for those working from home and two covered porches that allow you to relax outdoors and take in the views of your property.
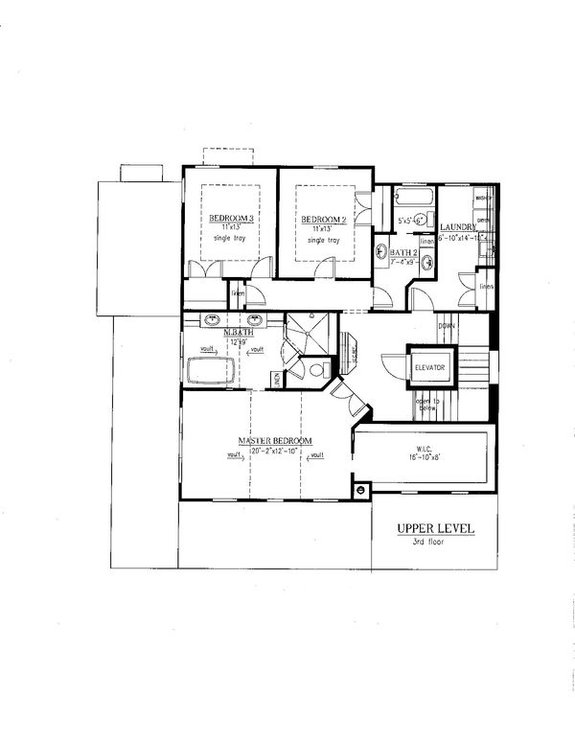
Upstairs, the primary bedroom features a huge walk-in closet and a private bathroom full of luxurious amenities. Two sinks, a separate tub, a shower, and a private toilet closet characterize this space and make it perfectly suitable for a couple to share. Across the second-floor foyer, two more bedrooms are located along their own private hallway. The bedrooms share a full bathroom with dual vanities and a separate tub/toilet section that gives everyone their own privacy. The third floor also features a large laundry room with linen storage, making it simple to store bathroom necessities close by and freshen up all of your favorite outfits just steps from your bedroom.
Modern Hillside Duplex
 Modern Hillside Duplex 48-1021 - Front Exterior
Modern Hillside Duplex 48-1021 - Front Exterior
 Modern Hillside Duplex 48-1021 - Main Floor Plan
Modern Hillside Duplex 48-1021 - Main Floor Plan
 Modern Hillside Duplex 48-1021 - Upper Floor Plan
Modern Hillside Duplex 48-1021 - Upper Floor Plan
 Modern Hillside Duplex 48-1021 - Lower Floor Plan
Modern Hillside Duplex 48-1021 - Lower Floor Plan
This modern duplex supplies you with double the space with two identical side-by-side floor plans, making this home a perfect fit for a large extended family or those who love having guests stay in their home. The lower level consists of garage space for two cars (one for each unit) and lots of room for storage, with a convenient flight of stairs to the main level. Head up to relax in the living room or prepare snacks at the kitchen's island, which overlooks everything to create a relaxed, modern vibe. At the front of the home, a guest bedroom features its own bathroom and closet space, creating a private zone for children or guests to enjoy.
Upstairs, each unit features two more suites, one in front and the other in back. The rear suite includes a full bathroom with double sinks and a tile shower, while the front suite includes a bathroom with a combined shower and tub. Lots of closet space throughout this level and a washer and dryer keep this space effortlessly neat, too.