By Courtney Pittman
House plans with rooftop decks offer functional (and versatile) places for entertaining, relaxing, or soaking up the sun. These elevated outdoor spaces deliver breathtaking views and plenty of privacy. With sleek patio furniture and lush greenery, a rooftop deck can become a serene escape for outdoor enjoyment. Take advantage of al fresco living with these house plans with rooftop decks.
See our house plans with rooftop decks collection here.
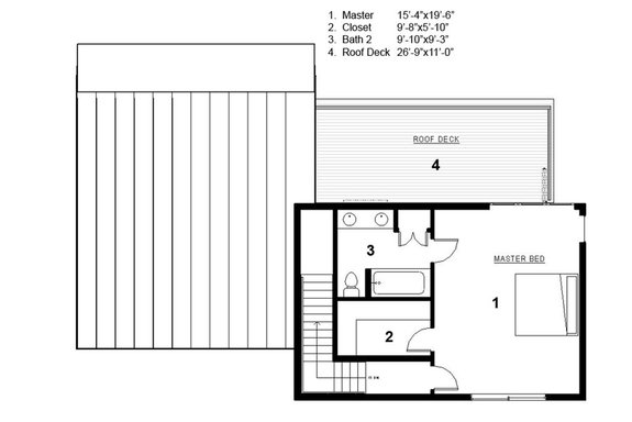
Farmhouse Plan with Rooftop Deck
Farmhouse Plan with Rooftop Deck - Front Exterior
Farmhouse Plan with Rooftop Deck - Main Level
Farmhouse Plan with Rooftop Deck - Upper Level
Timeless design details like mixed siding, metal roof accents, and a welcoming front porch deliver country curb appeal to this modern farmhouse plan. The layout inside encourages modern living with excellent flow between the great room, the dining area, and the kitchen. Check out the two-sided fireplace! We love the extra-big island and the corner built-in breakfast nook.
A mudroom with a bench and a handy home office rest next to the two-car garage. Located on the main level, the primary suite shines with two walk-in closets, dual sinks, a spacious shower, and a separate tub. Don’t miss the fun activity room on the second floor.
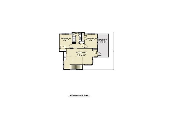
Modern Design with Bonus Room
Modern Design with Bonus Room - Front Exterior
Modern Design with Bonus Room - Main Level
Modern Design with Bonus Room - Upper Level
Here’s a modern design that balances everyday functionality with sleek style. Just off the two-car garage, a clever mudroom includes a built-in bench and cubbies. Linen storage is a welcome amenity in the laundry room.
The open island kitchen easily serves the dining nook (which features a cool buffet) and the great room. Upstairs, the primary suite features a sitting room and a spa-like bath. A bonus room could become an extra bedroom or a hobby space. Outdoor spaces include a covered patio and a sundeck.
Contemporary Plan for Narrow Lot
Contemporary Plan for Narrow Lot - Front Exterior
Contemporary Plan for Narrow Lot - Main Level
Contemporary Plan for Narrow Lot - Upper Level
Just under 28 feet wide, this contemporary plan would work well on a compact lot. Two decks (including a rooftop deck above the two-car garage) and a covered patio provide plenty of room for outdoor living. Inside, the island kitchen flows seamlessly to the dining area and the living room, where sliding glass doors open to the back.
The primary suite and two additional bedroom suites rest on the second level. The laundry room is conveniently located up here as well. A versatile loft is a welcome addition.
Sleek Details
Sleek Details - Rear Exterior
It doesn’t get much cooler than this sleek house plan. The exterior shows off contemporary curb appeal with a shed roof, clean lines, and a rooftop deck. The first floor features a kitchen island that opens to the great room and the dining nook.
Nearby, accordion doors connect the interior to the back patio. On the right side of the plan, two bedrooms share a hall bath. Upstairs, the primary suite enjoys privacy and a rooftop deck.
A View from the Great Room
A View from the Great Room - Front Exterior
Here’s a contemporary Prairie house plan with thoughtful details. The layout creates effortless flow between the great room, the island kitchen, and the dining area. Just off the kitchen, a patio invites you outside.
A smart detail: the two-car garage gives you dedicated storage space. A study offers flexibility and would work well as a home office. The unfinished portion of the basement can be completed now or later.
Scenic Rooftop Deck
Scenic Rooftop Deck - Front Exterior
Scenic Rooftop Deck - Main Level
Scenic Rooftop Deck - Second Level
Scenic Rooftop Deck - Third Level
Scenic Rooftop Deck - Rooftop Level
Effortlessly cool, this contemporary house plan gives you a simple footprint that’s suited for a slim lot. The first floor sports a garage with a work area and storage space under the stairs. On the second level, the kitchen and the living room are at the center of the plan. An island seats up to four.
Two bedrooms (including the primary suite) rest on the third level. We love the unique gallery wall in the hallway, the clever desk area, and the private balcony off the primary suite. Enjoy an elevated sanctuary on the rooftop deck.
Small Modern Plan
Small Modern Plan - Front Exterior
Small Modern Plan - Main Level
Small Modern Plan - Upper Level
This modest house plan delivers big style with modern curb appeal. The layout inside includes the living room, the island kitchen, and the dining room in one free-flowing space. Note the spacious walk-in pantry.
Next to the garage, the laundry/mudroom makes it easy to stay organized with built-in shelves and a counter. The second level features a private primary suite with a walk-in closet, two sinks, and a shower with a seat. Relax on the terrace or the rooftop deck.
Two Primary Suites
Two Primary Suites - Front Exterior
Two Primary Suites - Main Level
Two Primary Suites - Second Level
Two Primary Suites - Third Level
Two Primary Suites - Rooftop Level
Here’s a contemporary house plan that offers 2,024 square feet of stylish living space. The main level features a one-car garage and a primary suite. Bright and open, the second level features a kitchen with an island, a cozy dining nook, a generous living area, a half bath, and a laundry room.
Two bedrooms (including the primary suite) and a full bath round out the third floor. Additional highlights include a desk area and a rooftop deck.


