Blog Home > How Big is 1,500 Square Feet? Check Out These House Plans!

The Houseplans Blog

How Big is 1,500 Square Feet? Check Out These House Plans!

Explore house plans that showcase 1,500 square feet.

Hero Image

March 18, 2024

Livabl Brand

Can't find what you're looking for?

Give us a call below or reach out and we’ll make sure to be in contact!

Send Us a Message

By Courtney Pittman

How big is 1,500 square feet? Showcasing open floor plans, modern amenities, and island kitchens, our collection of 1,500 square foot plans feel bigger than they are. These petite designs seal the deal with jam-packed style and smart features, while staying budget-friendly with small footprints. Here are eight eye-catching examples.

Browse our 1,500 square foot house plans collection here.

1,477 Square Foot Farmhouse Plan 1,477 Square Foot Farmhouse Plan 1,477 Square Foot Farmhouse Plan - Front Exterior

1,477 Square Foot Farmhouse Plan 1,477 Square Foot Farmhouse Plan 1,477 Square Foot Farmhouse Plan - Main Level

1,477 Square Foot Farmhouse Plan 1,477 Square Foot Farmhouse Plan 1,477 Square Foot Farmhouse Plan - Upper Level

Just under 1,500 square feet, this farmhouse plan makes the most of its modest space with thoughtful details. Board-and-batten siding, an inviting front porch, and a metal roof accent add country flair to the exterior. Inside, the fireplace-warmed family room opens to the dining area and the spacious island kitchen. Don’t miss the walk-in pantry.

The primary suite rests at the back of the plan and gives you a luxurious bathroom and direct access to the lanai. Two secondary bedrooms and a full bath complete this plan.

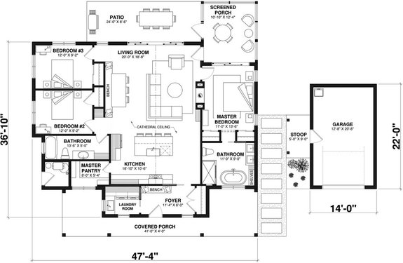
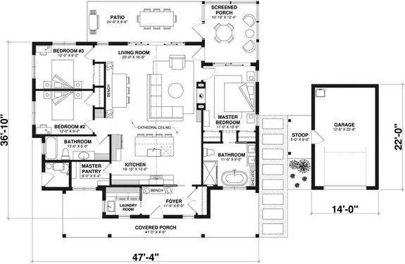
1,525 Square Foot House Plan with Screened Porch 1,525 Square Foot House Plan with Screened Porch 1,525 Square Foot House Plan with Screened Porch - Front Exterior

1,525 Square Foot House Plan with Screened Porch 1,525 Square Foot House Plan with Screened Porch 1,525 Square Foot House Plan with Screened Porch - Main Level

Here’s a 1,525 square foot house plan with timeless curb appeal. The bright living room features a cathedral ceiling and access to the rear patio via sliding glass doors. Nearby, the screened porch keeps the bugs at bay. A bench in the breakfast nook is a welcome detail. We love the big island in the kitchen and the walk-in pantry.

On the right side of the plan, the primary suite impresses with two closets, private access to the screened porch, and a spa-like bathroom. Two additional bedrooms and a full bath sit on the left.

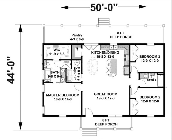
1,531 Square Foot House Plan with Open Layout 1,531 Square Foot House Plan with Open Layout 1,531 Square Foot House Plan with Open Layout - Front Exterior

1,531 Square Foot House Plan with Open Layout 1,531 Square Foot House Plan with Open Layout 1,531 Square Foot House Plan with Open Layout - Main Level

Easy living flows through the main living spaces in this modern house plan. An island in the kitchen is ready for casual meals. Park in the two-car garage. The primary suite, two secondary bedrooms, and a full bath rest on the left side of the home. The clean-lined exterior is a nice touch.

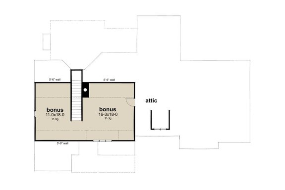
Country House Plan with Wraparound Porch Country House Plan with Wraparound Porch Country House Plan with Wraparound Porch - Front Exterior

1,531 Square Foot House Plan with Wraparound Porch Country House Plan with Wraparound Porch Country House Plan with Wraparound Porch - Main Level

1,531 Square Foot House Plan with Open Layout Country House Plan with Wraparound Porch Country House Plan with Wraparound Porch - Upper Level

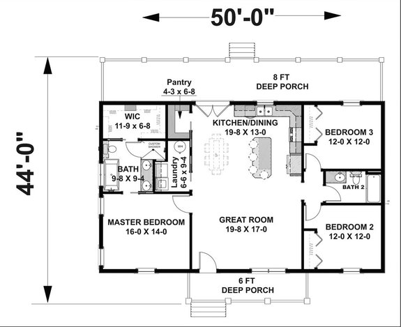
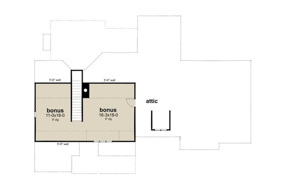
Here’s a modest house plan that offers plenty of country charm with a metal roof, dormer windows, and not one, but TWO wraparound porches. Great for aging in place, the main-level primary suite offers luxury details like a roomy closet, a modern shower, and access to the rear porch via French doors.

Upstairs, the loft is ideal for a study, a hobby space, or a game area. A bedroom and a full bath round out this level. An optional bedroom gives you room to expand.

Barndominium Style Plan Barndominium Style Plan Barndominium Style Plan - Front Exterior

Barndominium Style Plan Barndominium Style Plan Barndominium Style Plan - Main Level

Barndominium Style Plan Barndominium Style Plan Barndominium Style Plan - Upper Level

Full of function and ease, this barndominium style plan is ready to impress. An open floor plan makes great use of space and creates easy flow. The kitchen island is a convenient touch.

Organize items in the handy mudroom. Two patios and a welcoming front porch offer outdoor living options. A large two-car garage could also be used as a workshop.

Three-Bedroom Modern Farmhouse Plan Three-Bedroom Modern Farmhouse Plan Three-Bedroom Modern Farmhouse Plan - Front Exterior

Three-Bedroom Modern Farmhouse Plan Three-Bedroom Modern Farmhouse Plan Three-Bedroom Modern Farmhouse Plan - Main Level

Boasting farmhouse flair, this three-bedroom house plan gives you an efficient layout with country style. Unexpected details include the walk-in pantry for the kitchen and a spa-like bathroom in the primary suite. An island in the kitchen serves the open living and dining area.

Front and rear porches offer plenty of space to enjoy outdoor living. Here’s a nice touch: each bedroom features a walk-in closet.

Modern Cabin House Plan Modern Cabin House Plan Modern Cabin House Plan - Front Exterior

Modern Cabin House Plan Modern Cabin House Plan Modern Cabin House Plan - Main Level

Here’s a cool cabin house plan. Sleek lines, an interesting roof, and large windows deliver modern vibes. Inside, the open layout takes center stage and includes a big island in the kitchen. Tucked away on the left side of the plan, the primary suite shows off a generously-sized walk-in closet, a shower, a separate tub, and two sinks. Two more bedrooms share a full bath on the right. Hang out on the covered patio out back.

1,500 Square Foot Cottage House Plan 1,500 Square Foot Cottage House Plan 1,500 Square Foot Cottage House Plan - Front Exterior

1,500 Square Foot Cottage House Plan 1,500 Square Foot Cottage House Plan 1,500 Square Foot Cottage House Plan - Main Level

Clocking in at 1,500 square feet, this home takes full advantage of outdoor living with front and rear porches. The main living areas share one big space at the heart of the home. An island in the kitchen is ready for casual dining. Check out the extra-big closet in the primary suite.

Discover more 1,500 square foot house plans.

Get Our Newsletter

Be the first to see new plans, special offers, and more.

By signing up for our newsletter, you agree to our Terms & Conditions and Privacy Policy, for an account

Blog Subscribe Icon