Blog Home > How Big is 4,000 Square Feet?

The Houseplans Blog

How Big is 4,000 Square Feet?

How big is 4,000 square feet? Find out here!

Hero Image

June 25, 2024

Livabl Brand

Can't find what you're looking for?

Give us a call below or reach out and we’ll make sure to be in contact!

Send Us a Message

By Courtney Pittman

How big is 4,000 square feet? Pretty big, as the plans below prove. With up-to-date amenities (like generous islands in the kitchen and well-thought-out mudrooms), modern floor plans, and lots of outdoor spaces, these designs bring more to the table than their sizable footprints. Each combines standout curb appeal with smart details.

Discover our collection of 4,000 square foot house plans here.

Stunning Barndominium Floor Plan Stunning Barndominium Floor Plan Stunning Barndominium Floor Plan - Front Exterior

Stunning Barndominium Floor Plan Stunning Barndominium Floor Plan - Main Level

Stunning Barndominium Floor Plan Stunning Barndominium Floor Plan - Upper Level

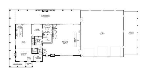
Clocking in at 4,013 square feet, this barndominium design is ready to impress. For example, a large event area features a wide bar, two half baths, and a wall of sliding glass doors that open to the covered back porch. There’s ample room for storage in the three-car garage/workshop. A carport sits nearby. An island in the kitchen makes it easy to interact while cooking.

The primary suite enjoys privacy on the main level and boasts a walk-through tile shower, a relaxing tub, and direct access to the laundry room. Upstairs, you’ll find a bedroom suite, two secondary bedrooms, a hall bath, and a loft. The versatile den is a welcome detail.

Farmhouse Plan with Outdoor Living Farmhouse Plan with Outdoor Living Farmhouse Plan with Outdoor Living - Front Exterior

Farmhouse Plan with Outdoor Living Farmhouse Plan with Outdoor Living - Main Level

Farmhouse Plan with Outdoor Living Farmhouse Plan with Outdoor Living - Upper Level

This farmhouse design offers timeless curb appeal. A metal roof covers the front porch, creating a welcoming vibe. We love the side-loading garage, which can store up to three vehicles. Inside, the open floor plan feels modern, with a fireplace-warmed living room, an island kitchen, and a dining nook. A wall of sliding glass doors connects the interior to the covered back porch and the patio.

Located on the main level, the primary suite shines with a sitting area, a spa-like bath, and a big closet. The laundry room sits nearby. Two more bedroom suites reside on the second floor. Check out the cool loft and the wet bar. Other thoughtful details include a balcony, a flexible study, and a safe room.

Barndo Design with Multi-Use Space Barndo Design with Multi-Use Space Barndo Design with Multi-Use Space - Front Exterior

Barndo Design with Multi-Use Space Barndo Design with Multi-Use Space - Main Level

Barndo Design with Multi-Use Space Barndo Design with Multi-Use Space - Upper Level

Take a look at this head-turning barndominium plan. An open layout creates great flow between the great room and the kitchen. The primary suite and a guest suite take up space on the first floor, while three more bedrooms wait upstairs. Work from home? Check out the handy office. Don’t miss the flexible family room and the kitchenette on the second level.

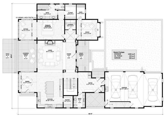
Elegant Home Plan with Media Room Elegant Home Plan with Media Room Elegant Home Plan with Media Room - Front Exterior

Elegant Home Plan with Media Room Elegant Home Plan with Media Room - Main Level

Elegant Home Plan with Media Room Elegant Home Plan with Media Room - Upper Level

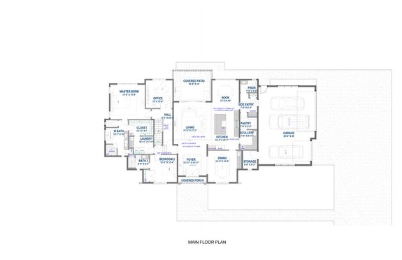
Here’s an attractive house plan with eye-catching curb appeal. Taking center stage, the spacious island kitchen opens to a relaxed living room and a breakfast nook. A big pantry and a scullery wait close by. Next to the foyer, a formal dining room could also become a study or a hobby space.

The first-floor primary suite opens directly to the laundry room (via the walk-in closet), making it easy to throw in a load. Special details include a media room on the second level, a home office, and a covered patio out back.

Farmhouse Plan with Bunk Room Farmhouse Plan with Bunk Room Farmhouse Plan with Bunk - Front Exterior

Farmhouse Plan with Bunk Room Farmhouse Plan with Bunk Room - Main Level

Farmhouse Plan with Bunk Room Farmhouse Plan with Bunk Room - Upper Level

Classic and welcoming, this farmhouse plan gives you lots of room for outdoor living with a wraparound deck and an outdoor fireplace. Inside, you’ll find tons of nice surprises – like four bedroom suites and a bunk room. The open layout features a kitchen island that overlooks the vaulted great room. Upstairs, a generous recreation room opens up all kinds of possibilities.

Modern Home Design with Grilling Porch Modern Home Design with Grilling Porch Modern Home Design with Grilling Porch - Front Exterior

Modern Home Design with Grilling Porch Modern Home Design with Grilling Porch - Main Level

Modern Home Design with Grilling Porch Modern Home Design with Grilling Porch - Upper Level

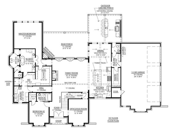
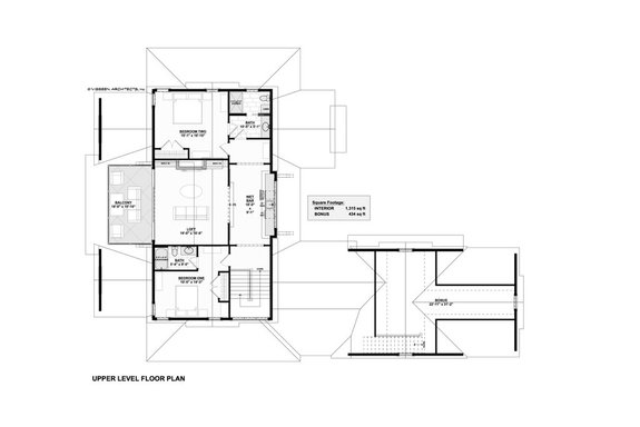
Just under 4,000 square feet, this house plan turns heads with a modern exterior and thoughtful layout details. In the family room, three sets of French doors open to the rear porch – where you'll find an island that seats up to five. The open floor plan promotes relaxed living. On the left side of the plan, the primary suite shows off a spa shower (with a seat), two walk-in closets, and access to the laundry room.

The foyer sits between an additional bedroom suite and the office/flex room. Two more bedroom suites and a media/game room reside on the second level.

Farmhouse Plan with an In-Law Suite Farmhouse Plan with an In-Law Suite Farmhouse Plan with an In-Law Suite - Front Exterior

Farmhouse Plan with an In-Law Suite Farmhouse Plan with an In-Law Suite - Main Level

Farmhouse Plan with an In-Law Suite Farmhouse Plan with an In-Law Suite - Upper Level

A wide front porch welcomes you to this farmhouse charmer. Inside, an island in the kitchen serves both the great room and the breakfast nook. An efficient mudroom keeps things organized on the way in from the two-car garage, while an office sits next to the foyer.

Need room for live-in relatives, like an in-law or grown child? The second level offers private living quarters that feature a family room, a kitchen/dining area, and a bedroom. You'll also find another bedroom suite, two additional bedrooms, and a loft.

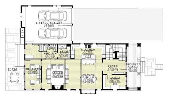
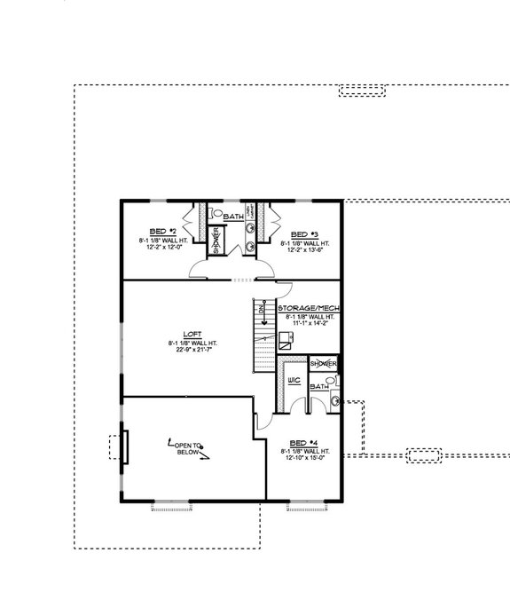
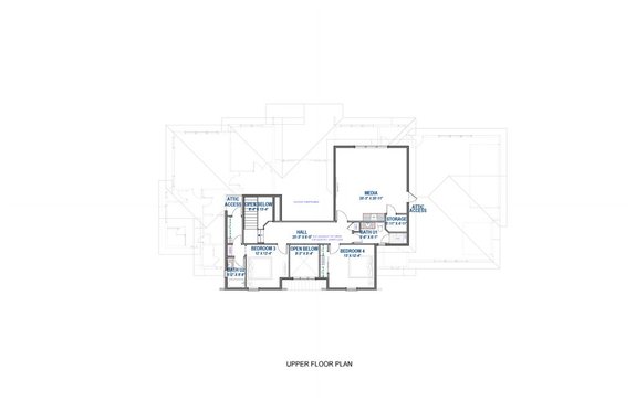
Four-Bedroom Craftsman Plan Four-Bedroom Craftsman Plan Four-Bedroom Craftsman Plan - Front Exterior

Four-Bedroom Craftsman Plan Four-Bedroom Craftsman Plan - Main Level

Four-Bedroom Craftsman Plan Four-Bedroom Craftsman Plan - Upper Level

Four-Bedroom Craftsman Plan Four-Bedroom Craftsman Plan - Lower Level

This stylish Craftsman house plan delivers modern convenience with an open-concept layout. The kitchen offers casual seating at the center island. Here’s a fun detail: a sunroom opens to the back patio. Near the foyer, a home office gives you a quiet place to get work done.

You’ll find the deluxe primary suite (check out the big closet), two secondary bedrooms, and a loft on the second level. The lower level offers room to expand with a family room, a game room, a fourth bedroom, and more.

Explore more 4,000 square foot house plans.

Get Our Newsletter

Be the first to see new plans, special offers, and more.

By signing up for our newsletter, you agree to our Terms & Conditions and Privacy Policy, for an account

Blog Subscribe Icon