Blog Home > How Much Do House Plans Cost?

The Houseplans Blog

How Much Do House Plans Cost?

And is it cheaper than custom home design? Find out here!

Hero Image

March 4, 2025

Livabl Brand

Can't find what you're looking for?

Give us a call below or reach out and we’ll make sure to be in contact!

Send Us a Message

By Courtney Pittman

How much do house plans cost? Well, that depends on many factors. Size, design style, layout (simple or complex), and the quality of materials/finishes can all play a part in the total price of a house plan. See our cost breakdown below, plus some of our favorite home designs.

Looking for your dream home? Explore our best-selling house plans collection here.

What is the Average Cost of a House Plan?

According to Matt Clancy (our in-house home expert and director of sales), “the average cost of a house plan is around $1,250.” As we mentioned before, this number can vary depending on the size, design style, and quality of materials/finishes. With thousands of home designs to choose from, you’re sure to find the perfect plan at the perfect price.

Why Choose Pre-Drawn Plans?

Pre-drawn plans can save you up to 90% (or even more!) over custom house designs. An architect or designer may charge as much as $30,000 or more for a full set of working drawings. Saving you both time and money, our ready-made plans can be modified to suit your needs – without breaking the bank.

With pre-drawn plans, "you can already see how the design looks, and you don’t have to spend a lot of time going back and forth with your designer on a custom home plan. Also, our plans can be customized, which also takes less time because you are starting with a plan that is mostly designed," says Clancy.

What’s included in a house plan set?

Here’s a list of what is typically included in a house plan set. It is important to note that not all plan sets include all of these sheets.

Foundation Plan

Floor Plan(s)

Roof Plan

Exterior Elevation

Building Section(s)

Electrical Plan(s)

Construction Notes and Details

See an example plan set here

Can I Make Modifications?

Yes! Most of our house plans can be modified to fit your needs. Modifications may cost $1,000 or more depending on the type.

Common modification requests include:

Eliminating windows

Rearranging interior walls

Changing exterior surfaces (brick, siding, stucco)

Changing exterior wall framing (2x4 to 2x6)

Changing a foundation type

Changing the roof pitch

Relocating garage door openings

Adding or eliminating a room

Stretching or reducing the square footage of a plan

Most modifications can be done by simply adjusting the existing plans, while others require a more comprehensive redesign of the home plan.

Read more about modifications here

Here are some of our favorite house plans in a variety of styles!

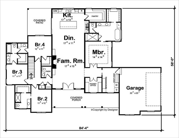
Four-Bedroom Farmhouse Design Four-Bedroom Farmhouse Design Four-Bedroom Farmhouse Design - Front Exterior

Four-Bedroom Farmhouse Design Four-Bedroom Farmhouse Design - Main Level

Fall into farmhouse bliss with this four-bedroom design. The striking exterior features a covered front porch and board-and-batten siding (a classic farmhouse touch). Don’t worry, the interior is just as dreamy.

The super-open layout shows off an island kitchen that overlooks the dining area and the family room, where a fireplace keeps things cozy. We love the extra-big pantry. There’s no shortage of luxury in the primary suite. Other notable details include: a versatile pocket office, a handy drop zone next to the two-car garage, and a covered rear patio.

One-Story Barndominium Plan One-Story Barndominium Plan One-Story Barndominium Plan - Front Exterior

One-Story Barndominium Plan One-Story Barndominium Plan - Main Level

If a rustic retreat is what you’re looking for – look no further. This barndominium plan seals the deal with a four-corner footprint and clean curb appeal. The fireplace-warmed great room features a sloped ceiling and opens to the island kitchen, where an island with an eating bar is ready for relaxed meals.

A welcoming front porch and a side porch (just off the dining area) offer outdoor enjoyment. Each bedroom features a walk-in closet (including the primary suite at the back of the plan). Just off the two-car garage, a mudroom with lockers and a built-in desk is a clever touch.

Simple and Rustic Simple and Rustic Simple and Rustic - Front Exterior

Simple and Rustic Simple and Rustic - Main Level

Farmhouse goals! Here’s a builder-friendly house plan with an uncomplicated footprint. On the right side of the plan, two secondary bedrooms share a full hall bath.

The primary suite enjoys dual sinks, a custom shower, and a generous walk-in closet. The main gathering areas are breezy and open, with the kitchen island easily serving the dining area and the great room. Ready to unwind? Front and rear porches offer outdoor living.

Modern Cabin Design Modern Cabin Design Modern Cabin Design - Front Exterior

Modern Cabin Design Modern Cabin Design - Main Level

We love a cabin house plan – especially when it has a modern twist. Here’s one that does the job nicely with sleek lines and a shed roof. Clocking in at 1,512 square feet, this small design is both affordable and practical.

The wraparound porch gives you plenty of room to relax after a long day, while extending the living space. Inside, expansive windows flood the open layout with natural light. The primary suite stands out with two walk-in closets. Don’t miss the utility room, which features a sink and a functional walk-in pantry.

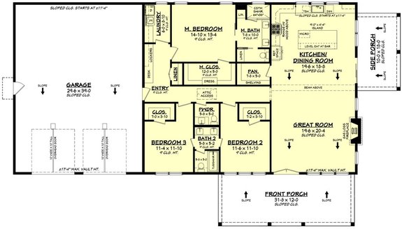
Two-Story Farmhouse Plan Two-Story Farmhouse Plan Two-Story Farmhouse Plan - Front Exterior

Two-Story Farmhouse Plan Two-Story Farmhouse Plan - Main Level

Two-Story Farmhouse Plan Two-Story Farmhouse Plan - Upper Level

Looking for a farmhouse plan? Here’s a nice one. A wide front porch and a metal gable roof decorate the facade, while an easygoing layout waits inside.

In the family room, a large fireplace delivers a cozy vibe. Nearby, the kitchen boasts a walk-in pantry and a snack bar that serves the dining nook. The second level hosts the primary suite, three additional bedrooms, and a full hall bath. Oh, and the convenient laundry room.

Loving any of the plans you're seeing? Register now to easily save and return to your favorites!

Optional Outdoor Kitchen Optional Outdoor Kitchen Optional Outdoor Kitchen - Front Exterior

Optional Outdoor Kitchen Optional Outdoor Kitchen - Main Level

Check out this charming country design. Highlights of the layout inside include an entry with lockers, a large pantry with built-in shelves and counters, and plenty of space in the laundry room. In the great room, a cathedral ceiling creates drama.

The kitchen island offers comfortable seating at the snack bar. The luxurious primary suite features a custom shower, a freestanding tub, and plenty of closet space. A second bedroom suite and two additional bedrooms occupy the right side of the layout. Take note of the workbench in the two-car garage.

Browse best-selling house plans.

Get Our Newsletter

Be the first to see new plans, special offers, and more.

By signing up for our newsletter, you agree to our Terms & Conditions and Privacy Policy, for an account

Blog Subscribe Icon