Building a home may seem daunting, but understanding each step makes it much more manageable.
This handy guide walks you through the entire process – from choosing your house plan to settling in.
Use these helpful tips (and 10 easy steps) to ensure your path to a new home is clear, smooth, and rewarding.
Questions? We're here to help! Contact us here.
1. Determine Your Budget
Consult with your local contractor to establish a clear budget. Once you understand what’s feasible, you can confidently explore your options.
You might be surprised to find that you can afford a larger home than you initially expected.
Looking for some ballpark numbers? Explore articles about cost to build here.
2. Purchase Land for Your Home
Purchasing land is a fundamental first step in your home-building journey. The size of your lot will significantly influence the type/size of house plan you choose to build.
For example, if you envision a single-story home, you’ll need a larger lot compared to a two or three-story design.
Land can be expensive. Looking at an infill lot? Take a look at house plans for narrow lots here.
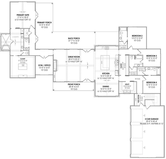
3. Select a Home Plan to Build
Choosing a house plan can be fun and challenging with so many options available. These simple tips will help you find the best plan for your needs.
Budget: Meet with your contractor to set your budget. Once you know what you can afford, you can choose the right plan.
Find a Plan You Love: Use filters to search by style, size, and features. If you like parts of different plans, contact us – our modifications department can customize your plan.
Consider Your Land/Lot: Choose a plan that fits the characteristics of your land/lot. We have plans for all types of lots, including sloping, narrow, and waterfront.
Outdoor Options: Check which outdoor areas are included in the floor plan, and remember, our team can help you add or remove these spaces as needed.
Number of Stories: Perhaps climbing stairs doesn’t bother you now, but will it in the future? You’ll save money down the road if you consider which features you’ll want in your home in the long run.
Plans Can Be Changed: Remember, you can easily customize ready-made plans to fit your needs, like moving walls, changing the garage, or adding features such as a fireplace. The exterior can also be customized with different windows, rooflines, or details.
Yes, customization costs extra, but you're still usually going to save money compared to starting from scratch with a custom architect or designer.
Be Open-Minded: Exploring different designs helps you discover what you really want, and your idea of the perfect home may change over time.
4. Check Building Codes
Each state, city, and subdivision may have its own set of codes and regulations. In some areas, like those with strong winds or near the coast, you may need an architect or engineer to review your plans.
Always check with your local building officials before applying for a permit or starting construction, as your plans may need changes to meet local rules (we can help with modifications)
You may also need extra permits or inspections during the building process.
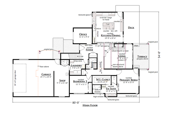
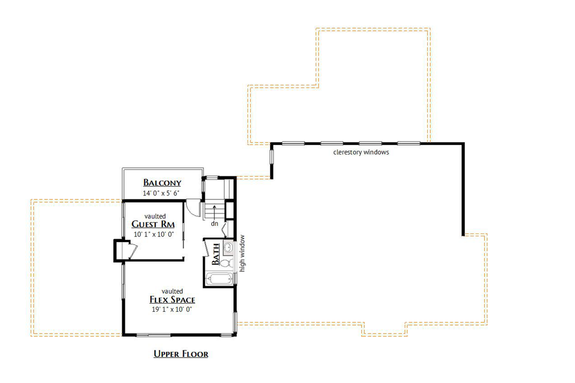
Modern Style Design
Modern Style Design - Front Exterior
Modern Style Design - Living Room
Modern Style Design - Main Level
Modern Style Design - Upper Level
5. Financing
Financing a new home build usually involves three main steps, but many lenders now make the process easier by combining these into one or two loans. Here’s a simple breakdown:
You may need loans for buying the land, building the house, and/or long-term (permanent) financing after the house is finished.
Many lenders combine these steps into a single loan, making things easier.
The plan that you select can help keep costs down. See our favorite simple, affordable house plans here.
Buying Land:
Lenders are careful with land loans because raw land can be hard to sell if you default.
If you do get a land loan, expect to pay a big down payment (often 20% or more) and higher interest rates.
Paying cash for land can be the simplest option if you can afford it.
Building the Home:
Not all lenders offer construction loans, so you may need to shop around.
To qualify, you’ll need:
Blueprints and building plans
Proper permits
A licensed, bonded contractor
Construction loans let your builder take out money as each stage is finished. The lender may want to inspect the property to ensure that the work has been done.
This process may sound complicated, but with the right lender, it’s usually straightforward and manageable.
6. Find a Contractor/Builder
If you have a vision for your dream home, the real challenge is finding a builder who understands and can deliver it. Here’s a simple approach to choosing the right builder:
Get referrals from friends, family, and colleagues. Ask if their builder finished on time, stayed on budget, and met their needs.
Visit model homes and neighborhoods you like. Talk to homeowners about their experience and check the quality of the builder’s work.
Research builders online, read reviews, and check credentials, licenses, and professional memberships.
Interview your top picks. Discuss your vision, timeline, and budget, and ask for detailed written estimates.
Choose a builder who communicates well, is transparent, and has a solid track record. This will help turn your vision into reality.
Mountain A-Frame Plan
Mountain A-Frame Plan - Front Exterior
Mountain A-Frame Plan - Main Level
Mountain A-Frame Plan - Upper Level
7. Start the Building Process
Now that you’ve finished the steps above, you’re ready to start building your home. This stage is both exciting and a bit overwhelming, but with the right advice, it can be a truly rewarding experience.
These tips are here to guide you through each part of the journey, helping turn your plans into the home you’ve always wanted.
Spa-Like Bath
Spa-Like Bath - Front Exterior
8. Final Inspection
Before you move in, your new home may need a final inspection. The local building department will send someone to check that all previous inspections are valid and that the house meets building codes.
9. Final Walkthrough
Once the final inspection is completed and approved, you have the opportunity to do your final walk-through. This is your chance to check the quality, learn how things work, point out any issues, and ask questions.
Some builders do their own inspection first and make a list of things to fix, called a punch list. After your walk-through, you and the builder review this list together.
Once everything is addressed, you’ll be asked to confirm you’re satisfied with the home. This is your last chance to request changes or ask questions before moving in.
10. MOVE IN!
Cathedral Ceiling
Cathedral Ceiling - Front Exterior
Cathedral Ceiling - Great Room
Cathedral Ceiling - Main Level
What are the benefits of a ready-made plan?
1) Stock plans (as they're sometimes called) are much cheaper compared to custom home design
2) They're already drawn, so you don't have to wait weeks for a designer
3) You can get a Cost to Build report for a plan before committing to it
4) Many plans have already been built and photographed
5) House plans can be modified to suit your needs
Check out this ready-made plan:
Modern Farmhouse Design
Modern Farmhouse Design - Front Exterior
Modern Farmhouse Design - Main Level
Modifications
A modification is any change to your house plan. Depending on the scope of the changes, edits can be made to the existing plan or the plan may need to be redrawn.
Our team can assist you with these updates – just be sure your plan follows local building codes.
Get answers to common plan modification questions here.
Let’s look at the different types of modifications and their costs:
REDLINING FOR VERY MINOR CHANGES (fastest and easiest!)
Very minor changes requiring only notes/drawings added to a plan.
Examples include: changing exterior materials, adding/removing windows or doors, moving interior non-bearing walls.
SMALL CHANGES
Minor changes affecting components but not footprint or house size.
Examples: flipping two rooms around and keeping existing dimensions, changing garage to side entry, changing exterior walls from 2x4 to 2x6.
MEDIUM-SIZED CHANGES
Changes affecting rooms and layouts but not footprint or actual house size.
Examples: small garage expansion, enlarging/shrinking existing rooms, changing roof pitch
MAJOR CHANGES
Significant plan changes affecting more than 350 square feet and/or house footprint.
Examples: changing house footprint, adding new rooms, reconfiguring room locations
Customizing your home plan has never been easier. Once you decide which plan is right for you, follow these five steps outlined below:
1) Choose a plan. You don’t need to buy it now, but you can if you want to start with your builder. On the plan page, click “Modify This Plan” and fill out the short form about your changes. A plan advisor will email you to explain the next steps. You can also send any sketches to show what you want changed.
2) Our team will review your requested changes to see if they are major or minor and make sure they’re possible. Within one to two business days, we’ll email you an estimate or ask for more details. The email will include the cost and the timeline for your customizations.
3) Once you approve the estimate, order your plan to start the process. We’ll send you a service contract to review and sign. Once we receive the signed contract, a project manager will be assigned to work on your plans. You will work directly with the project manager throughout the process.
4) We will send you proofs as we work on your changes to ensure they meet your needs. Depending on how many revisions are needed, the customized plan will be finished in four to six weeks, though timelines can be shorter or longer depending on the scope of changes (and we'll have already given you an estimate).
5) After the service ends, you’ll get your final plans as a PDF or print, based on your choice. Once you have them, you can begin local planning (like code updates, engineering, and site prep).
Farm-Inspired Plan
Farm-Inspired Plan - Front Exterior
Farm-Inspired Plan - Main Level
Cost to Build
How much will it cost to build your house plan? The answer depends on where you’re building, the quality of materials and finishes, and the site itself.
We use industry-standard software (just like insurance companies and appraisers) to give you an accurate cost to build estimate.
Each estimate is customized for your chosen house plan, construction quality, and location. After selecting a plan, click the “cost to build” button, answer a few quick questions, and check out online.
Reports are usually emailed within 2–3 business days, though many of them are available to download instantly. The quality level you select can greatly affect your estimate, so review the assumptions in your report carefully.
Read more about cost-to-build here.
Please note, these items are not included in a Cost to Build Report:
Site preparation of any kind
Removal of existing structures
Purchase of the lot
Preparation of the lot
Flatwork (such as driveways)
Detached garages or other structures
Landscaping
Modifications/customizations to the house plan
Large Kitchen Island
Large Kitchen Island - Front Exterior
Large Kitchen Island - Kitchen
Large Kitchen Island - Main Level
Questions and Answers
How much will this home cost to build?
House construction costs depend on location, the level of finishes, and the site. We can give you a “cost to build” report as a starting point. Buying a plan set lets you get bids from builders for more accurate estimates.
Some plans offer a non-buildable “study set” option that is made for obtaining bids.
How is the square footage calculated?
The square footage of a home is based on the heated living space only. Typically, this includes any finished basement area.
It does not include the garage, any porches, bonus space, or unfinished basements.
How many sets of plans do I need to buy to build my house?
You should keep a full set of plans for your records and enough copies for your builder, contractors, lender, and the building department. Check with your local building department or their website to see how many copies they need.
Contractors and subcontractors will also need copies to make bids. Buying the electronic PDF version is popular because you can easily print more copies when needed.
What is a materials list and what does it include?
A materials list shows the building supplies needed for your house, like lumber, insulation, and concrete, but usually not lighting, heating, electrical, or plumbing hardware.
Many house plans offer a materials list from the designer, which you can choose during ordering under “Additional Options.”
Are your plans ready to submit to my building department for permitting?
Each county has different rules. Our plans contain enough information to build a home, but they may not include all of the information that your local authority requires.
Before applying for a building permit or starting construction, check with your local building official to verify what you will need to submit for your building permit.
What do I need to know about architectural and engineering seals?
Some cities and states now require a licensed architect or engineer to approve and “seal” your blueprints before building (due to concerns over energy costs, safety, and other factors).
Check with your local building official before applying for a permit or starting construction to see if this is needed.
What modifications can I make to a house plan?
All stock house plans can be changed. Common changes include:
Removing windows or fireplaces
Changing garage size
Rearranging rooms
Adjusting ceiling heights
Switching exterior materials
Changing wall framing
Foundation type
Stretching or reducing the square footage of a plan
Adding a bonus room
Changing a roof pitch

