Blog Home > Metal Framing vs Wood: What to Consider When Building a Home

The Houseplans Blog

Metal Framing vs Wood: What to Consider When Building a Home

Metal framing vs wood, what's best for you?

Hero Image

April 14, 2025

Livabl Brand

Can't find what you're looking for?

Give us a call below or reach out and we’ll make sure to be in contact!

Send Us a Message

By Courtney Pittman

When building a new home, it’s important to determine the most suitable framing method. Below, you’ll find valuable insights to help you compare the advantages (and disadvantages) of metal framing versus wood framing. Additionally, we’ve rounded up six barndominium plans that highlight great examples of metal and wood framing.

Ready to explore? See our barndominium house plans collection here.

And here are specifically metal-framed house plans!

We asked architect David Wiggins (one of our home designer partners) about this topic, and here's what he had to say:

What are the pros of metal framing?

1) Fire resistant

2) Members are perfectly true and straight

3) Rot and insect-resistant

4) Resistance to damage from high winds and other environmental factors

5) Ability to achieve longer spans with smaller members

What are the cons of metal framing?

1) Lack of availability of skilled trades familiar with this type of construction

2) Serviceability after market – hanging anything on metal framing requires special fasteners (ie: interior furnishings and fixtures/lighting, etc.)

3) Currently more expensive upfront than lumber – 20% or more

4) Not a good insulator

5) It is an electrical conductor

6) Can rust if not maintained

What are the pros of wood framing?

1) Readily available

2) The labor market is more familiar with working with wood

3) Versatility in shaping, modifying, connecting, and adapting

4) Good insulator

5) Not an electrical conductor

6) Easier to modify/renovate post-market

What are the cons of wood framing?

1) Subject to rot, decay, and insects

2) Tends to warp or split

3) Structurally less reliable, limited to shorter spans

4) Requires more maintenance long term than steel

What are the main differences between metal framing and wood framing?

1) Upfront costs vs. long-term life cycle costs

2) Structural capabilities

3) Resistance to certain weather conditions

4) Labor force with experience working with materials

5) Availability

What regions does metal framing work best in?

1) Coastal areas subject to extreme weather/winds/hurricanes

2) Seismic areas dealing with earthquakes and unstable terrain

3) Fire prone areas

4) Areas with high humidity

What regions does wood framing work best in?

1) Mild climates with low humidity

2) Rural areas where trade skills are limited

3) Areas with higher availability of lumber

4) Areas not prone to high seismic activity

5) Colder climates

Why are these both popular options for barndominiums?

"Metal framing is a great solution for a barndominium due to its ability to achieve longer spans, resist extreme weather conditions, and provide more precise construction tolerances. Wood framing is a great choice for a barndominium in mild rural climates where labor markets are less skilled, and lumber is highly available."

Thank you, David!

Get inspired with these must-see barndominium plans!

Barndominium Plan with Loft Barndominium Plan with Loft Barndominium Plan with Loft - Front Exterior

Barndominium Plan with Loft Barndominium Plan with Loft - Main Level

Barndominium Plan with Loft Barndominium Plan with Loft - Upper Level

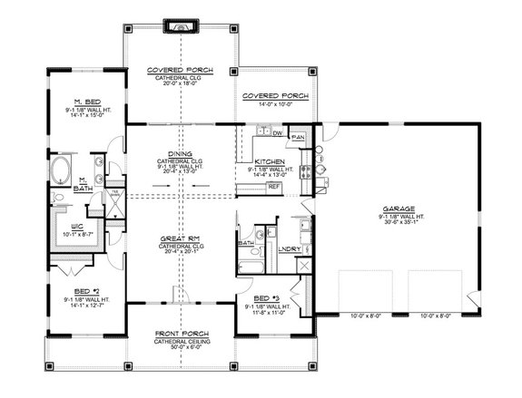
This eye-catching barndominium plan delivers outstanding curb appeal with a wraparound porch, board-and-batten siding, and a metal gable roof. You'll appreciate the spacious two-car garage. Inside, a fireplace warms the open great room and the dining area.

The island kitchen waits nearby, where a walk-in pantry is ready to hold groceries. The primary suite offers luxury with a walk-in closet, a shower, and a separate tub. Don't miss the handy loft and the additional bedroom suite on the second level.

Barndominium Plan with a Wraparound Porch Barndominium Plan with a Wraparound Porch Barndominium Plan with a Wraparound Porch - Front Exterior

Barndominium Plan with a Wraparound Porch Barndominium Plan with a Wraparound Porch - Main Level

Barndominium Plan with a Wraparound Porch Barndominium Plan with a Wraparound Porch - Upper Level

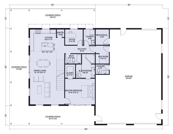
We love a rustic barndominium plan, especially this one. A spacious wraparound porch offers ample room for outdoor living. Inside, the two-story living room opens to the dining area and the island kitchen. Lots of windows draw in natural light.

The main-level primary suite features a walk-in closet, a spacious shower, and a separate tub. The handy mudroom (just off the three-car garage) and the home office offer functionality. Upstairs, two additional bedrooms (each equipped with a walk-in closet) and a game room share a hall bath.

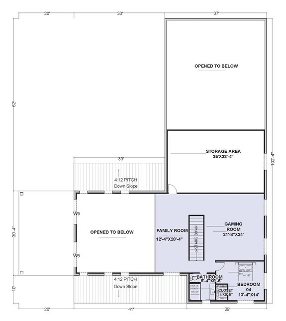
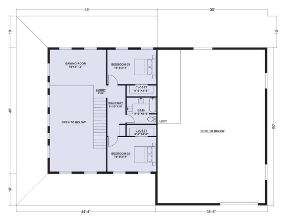
Two-Story Barndominium Plan with Post and Beam Framing Two-Story Barndominium Plan with Post and Beam Framing Two-Story Barndominium Plan with Post and Beam Framing - Front Exterior

Two-Story Barndominium Plan with Post and Beam Framing Two-Story Barndominium Plan with Post and Beam Framing - Main Level

Two-Story Barndominium Plan with Post and Beam Framing Two-Story Barndominium Plan with Post and Beam Framing - Upper Level

Timeless curb appeal meets a modern layout in this must-see barndominium plan. Take in the view on the welcoming front porch. Inside, the foyer sits between the study and the dining room.

Check out the fireplace in the open family room. A wall of sliding glass doors opens to the rear porch, where you'll find a dedicated BBQ area with a counter and a sink. The primary suite is easy to reach on the main floor and gives you a generous walk-in closet (with an island), a sizable shower, and a safe room. The second level boasts two bedrooms and a game room.

Read much more about this plan here!

Lodge-Style Plan with Metal Framing Lodge-Style Plan with Metal Framing Lodge-Style Plan with Metal Framing - Front Exterior

Lodge-Style Plan with Metal Framing Lodge-Style Plan with Metal Framing - Main Level

Lodge-Style Plan with Metal Framing Lodge-Style Plan with Metal Framing - Upper Level

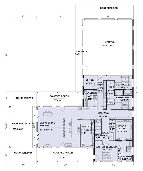
Here’s a standout barndominium plan with lodge-like features like large windows, a gable roof, and an open floor plan. In the kitchen, an extra-large island seats up to seven. The hardworking pantry includes built-in shelves and cabinets, a freezer, a fridge, a dishwasher, and more.

Two accordion glass doors open to a generous covered porch. Work from home? Check out the cool office. A walk-in closet highlights the main-level primary suite. The second floor offers flexibility with a gaming room and a family room.

Affordable Barndo Design Affordable Barndo Design Affordable Barndo Design - Front Exterior

Affordable Barndo Design Affordable Barndo Design - Main Level

Looking for an affordable house plan? Here’s a nice one. Board-and-batten siding, a metal gable roof, and a welcoming wraparound porch deliver barn-inspired curb appeal.

The open gathering areas give you room to eat and relax, with extra seating at the kitchen island. Three bedrooms and a full bath reside at the back of the plan. The laundry is conveniently nearby. Don’t miss the two-car garage.

Barndominium Plan with Basement Barndominium Plan with Basement Barndominium Plan with Basement - Front Exterior

Barndominium Plan with Basement Barndominium Plan with Basement - Main Level

Barndominium Plan with Basement Barndominium Plan with Basement - Lower Level

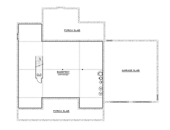
We can’t help but swoon over this three-bedroom barndominium plan. The covered front porch gives you the perfect spot to unwind. In the great room, a cathedral ceiling draws the eye up.

Sliding glass doors connect the interior to the fireplace-warmed rear porch. The primary suite stands out with a spacious shower, a separate tub, and ample closet space. On the lower level, a basement opens up all kinds of possibilities.

Modest Barndominium Plan Modest Barndominium Plan Modest Barndominium Plan - Front Exterior

Modest Barndominium Plan Modest Barndominium Plan - Main Level

This modest barndominium plan is big on style. The wide front porch is shaded by a metal roof. We love the board-and-batten siding. The efficient four-corner footprint is uncomplicated and builder-friendly.

A vaulted ceiling lifts the gaze upwards in the living room, while a wood-burning fireplace delivers warm ambiance. The well-equipped kitchen features a practical island and an organized pantry. Check out the thoughtful side entry with lockers. A custom shower highlights the primary suite.

Barndominium Plan with Incredible Porch Barndominium Plan with Incredible Porch Barndominium Plan with Incredible Porch - Front Exterior

Barndominium Plan with Incredible Porch Barndominium Plan with Incredible Porch - Main Level

Barndominium Plan with Incredible Porch Barndominium Plan with Incredible Porch - Upper Level

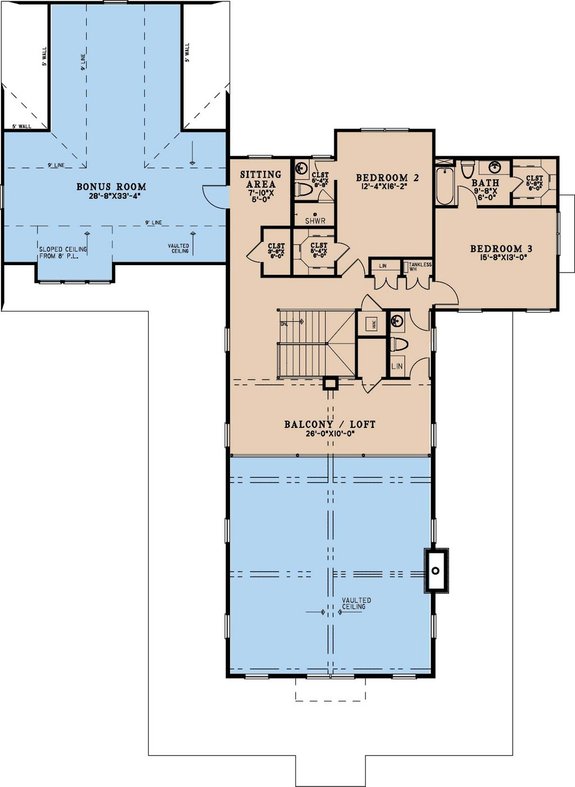
We’ll never say no to a wraparound porch. This barndominium plan features rustic details like metal roof accents and board-and-batten siding. Inside, the two-story great room opens to the dining area and the kitchen.

An island gives you a functional space for meal prep. Located on the main level, the primary suite makes it easy to age in place and offers direct access to the laundry room. A versatile guest suite rests near the two-car garage. The second floor hosts two more bedroom suites, a sitting area, a loft, and a bonus room.

See our 25 favorite barndominium designs of the moment.

Get Our Newsletter

Be the first to see new plans, special offers, and more.

By signing up for our newsletter, you agree to our Terms & Conditions and Privacy Policy, for an account

Blog Subscribe Icon