By Courtney Pittman
Loaded with style and contemporary details, our modern house plans with photos are ready for you to move right in. These standout home designs feature relaxed open floor plans, plenty of space for indoor-outdoor living, large island kitchens, and much more. Take a tour of some of our favorite modern house plans from Visbeen Architects below.
Explore modern house plans with photos
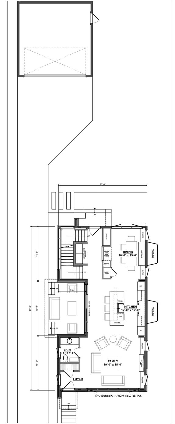
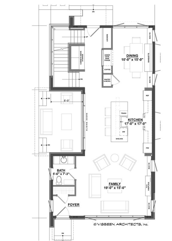
Modern House Plan for a Narrow Lot
You’ll love the wine fridge in the dining room
Plan 928-296
Head-turning style on a narrow lot can be yours with the Wexley plan from Visbeen Architects. The open layout creates great flow, especially around the kitchen’s island and out to the side patio. Thoughtful details abound, like the under-counter wine fridge in the dining room and the master suite’s versatile sitting room (check out these sitting room ideas from HGTV).
Large Kitchen Island
Enjoy cozy outdoor living on the terrace
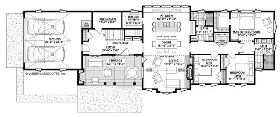
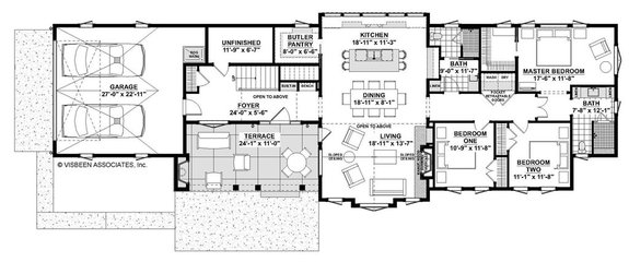
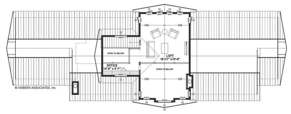
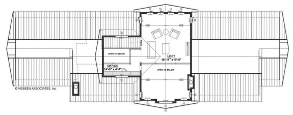
Plan 928-326
This 2,491-square-foot house design (the Alastar from Visbeen Architects) looks and feels bigger than it actually is, thanks to a soaring wall of windows that nicely frames a view. The kitchen gives you seating on two sides (a unique arrangement that makes sense for keeping conversation going, instead of just lining everyone up in a row) and total openness to the dining and living rooms. A fireplace on the terrace creates cozy outdoor living in the cooler months.
Two-Story Home Design
Check out the home office on the main level
Plan 928-329
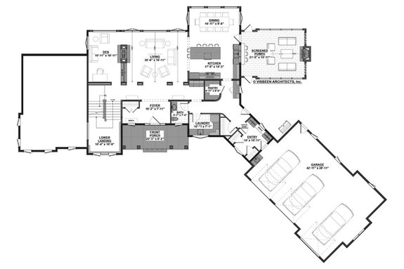
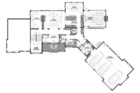
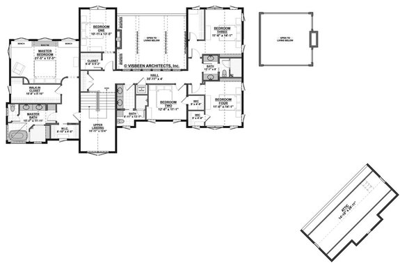
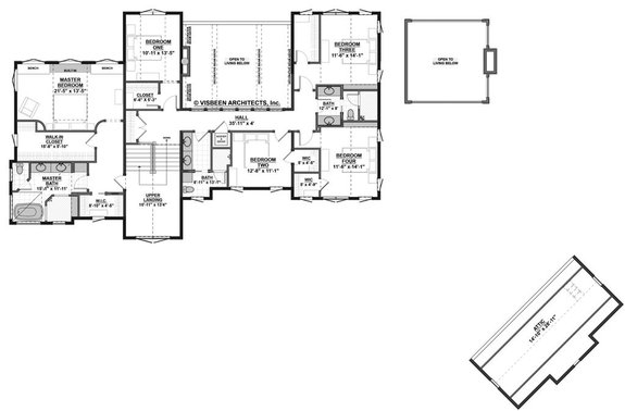
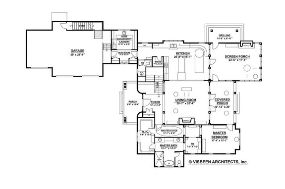
Here’s a lovely two-story home design (the Hinsdale from Visbeen Architects) with four bedrooms, a relaxing main-level master suite, and a loft upstairs that could be used in a variety of ways. Highlights include the versatile home office on the first level, easygoing flow between the main living areas, and a walk-in pantry. You’ll love the large screened porch on the right side of the floor plan that’s perfect for fall (or even year-round) outdoor living (explore these cozy screened porch design ideas from One Kindesign).
Modern Farmhouse Plan
Check out the impressive home office space
Plan 928-308
You’ll enjoy the timeless appeal of farmhouse style, and appreciate all the open space that this house plan provides (the Holloway from Visbeen Architects). This two-story plan offers all kinds of areas that are perfect for relaxing. As you enter through the generous front porch you’ll be impressed with the open living room and den/office space.
The kitchen and dining room are conveniently located near the walk-in pantry and provide access to the screened porch. The second level gives you a master suite (with a spacious bathroom and walk-in closet), three additional bedrooms, and two bathrooms.
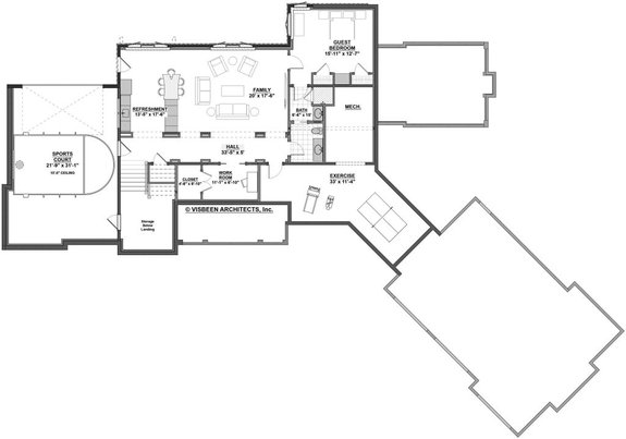
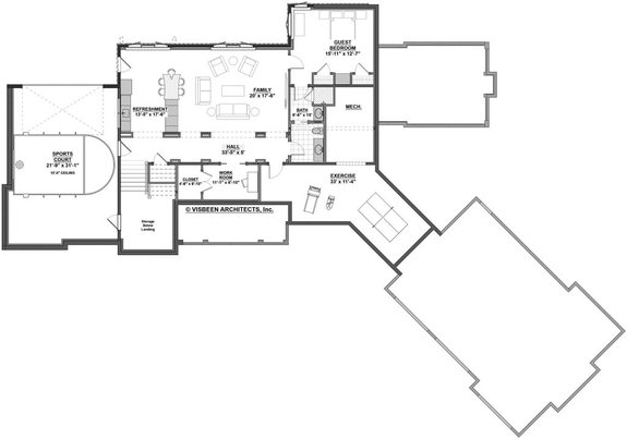
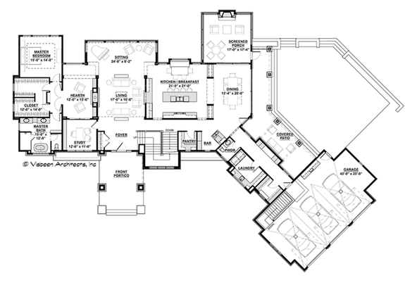
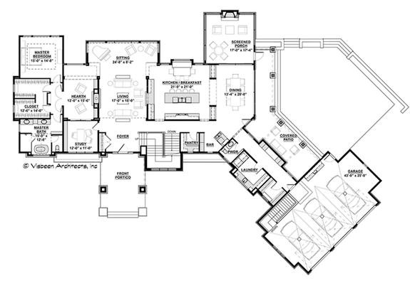
Contemporary House Plan
Warm up next to the fireplace on the screened porch
Plan 928-287
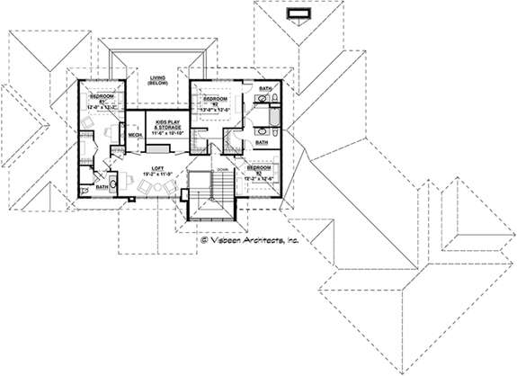
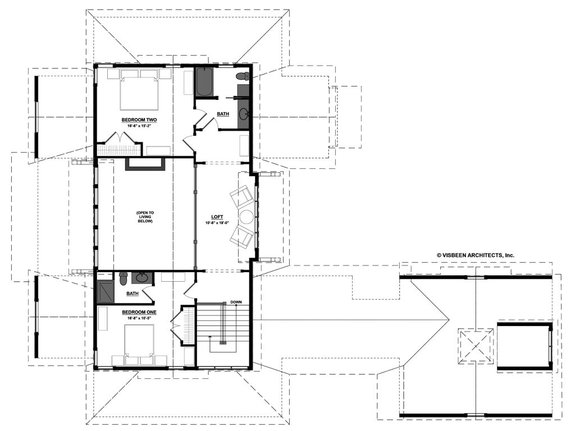
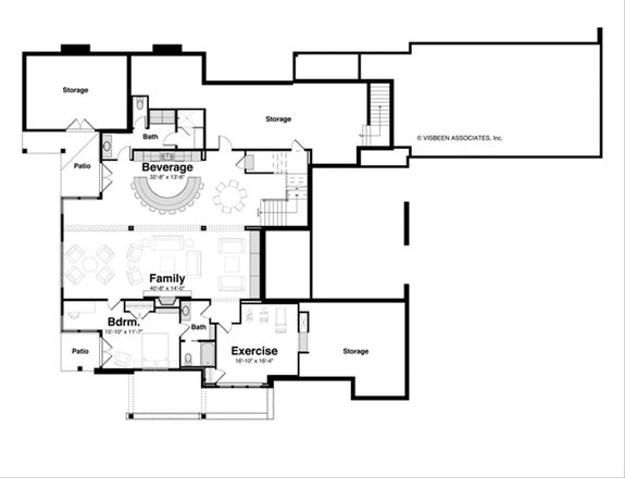
A wide island joins forces with a built-in banquette and nearby dining room to create a food-focused center in this contemporary home (the Cicero) from Visbeen Architects. Outdoor living is made easy with a side covered patio, which flows into the screened porch with a fireplace to warm chilly nights. The master suite offers a generous layout with a huge walk-in closet between the bedroom and the spacious bathroom.
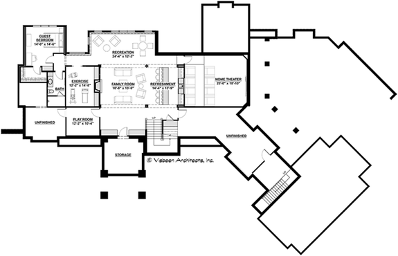
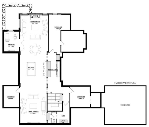
You’ll love the roomy second level, where a loft separates a private suite (ideal for an older child or guests) from two additional bedrooms. The basement can be finished to become a fun retreat for visitors, complete with a home theater, wet bar, exercise room, and more (discover basement DIY ideas to create a new living space from Country Living).
Modern Farmhouse with Open Floor Plan
Explore all the contemporary features in this home design
Plan 928-14
This modern farmhouse plan by Visbeen Architects (the Rosewood) embodies contemporary luxury, beginning with the light-filled living spaces on the first floor and continuing into the spacious sleeping zones. A large, open dining room steps out to the back screened porch for easy indoor-outdoor interaction.
The master suite gives you a bright sitting nook (surrounded on three sides with glass for plenty of natural light), a huge walk-in closet, and a spa-like bathroom with a large shower and two vanities. Check out the handy study and the large kitchen island on the main level.
Modern House Design with Curb Appeal
Use the study as a home office if needed
Plan 928-261
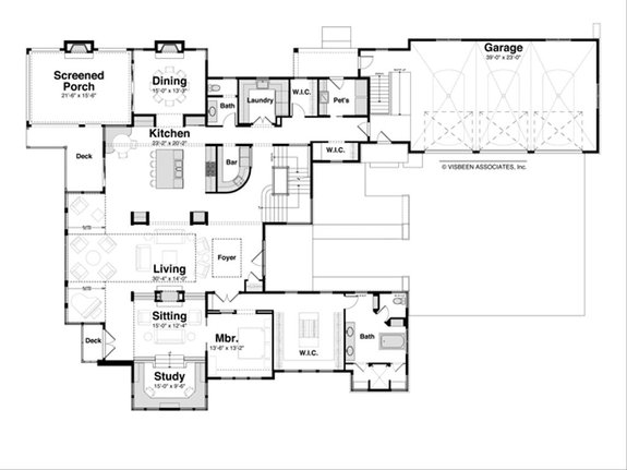
The Hasserton delivers modern curb appeal and lots of cool details throughout. The main floor gives you plenty of room to lounge, a spacious kitchen, a formal dining room, access to outdoor living, and a luxurious master suite (check out the closet!). Work from home? Use the study on this level as a home office.
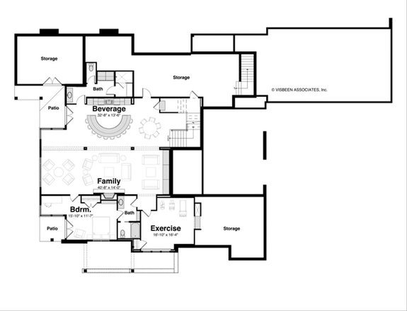
Head upstairs to find two additional bedrooms and play around with billiards in the cool loft space (or game room!). Don’t miss the lower level, which features a curved beverage bar and comfortable sitting areas. A guest bedroom and exercise facility are also located on this floor.
Modern Farmhouse Plan with Photos
Take a tour of this stylish home design
Plan 928-10
This modern farmhouse plan (the Williamsburg by Visbeen Architects) gives you easy indoor-outdoor living and an open floor plan between the main living areas. Check out the screened porch with its own fireplace. When its time to relax, hang out in the soaking tub in the spa-like master bath (located on the main level).
Three additional bedrooms reside upstairs (two with their own bathroom) along with a cool balcony. Use the bonus space above the garage as a guest suite. Don't miss the well-organized laundry room.






















