Blog Home > New Modern Farmhouse Plans for 2024

The Houseplans Blog

New Modern Farmhouse Plans for 2024

Check out these new modern farmhouse plans.

Hero Image

July 10, 2024

Livabl Brand

Can't find what you're looking for?

Give us a call below or reach out and we’ll make sure to be in contact!

Send Us a Message

By Courtney Pittman

Here’s our latest roundup of new modern farmhouse plans, all of which offer attractive amenities and head-turning curb appeal. We’re talking spacious island kitchens, organized mudrooms, and open gathering spaces. Look for plenty of outdoor living options as well. As the designs below prove, the popular modern farmhouse trend isn't going away.

Want more? Explore our modern farmhouse plans collection here.

Small Modern Farmhouse Plan with Big Shop Small Modern Farmhouse Plan with Big Shop Small Modern Farmhouse Plan with Big Shop - Front Exterior

Small Modern Farmhouse Plan with Big Shop Small Modern Farmhouse Plan with Big Shop - Main Level

Small Modern Farmhouse Plan with Big Shop Small Modern Farmhouse Plan with Big Shop - Upper Level

Sliding barn doors, a metal gable roof, and a wraparound porch decorate the exterior of this barn-evoking modern farmhouse design (there's a lot of overlap between modern farmhouse and barndominium styles). Inside, the open floor plan feels fresh and efficient. The kitchen island easily serves the great room and is ready for casual meals.

The primary suite is located on the second level, along with an additional bedroom and a hall bath. Check out the big storage closet. Here’s our favorite part: the six-car garage features a large shop space and a tack room.

Modern Farmhouse Design with Sunroom Modern Farmhouse Design with Sunroom Modern Farmhouse Design with Sunroom - Front Exterior

Modern Farmhouse Design with Sunroom Modern Farmhouse Design with Sunroom - Main Level

Here’s a modern farmhouse design with lots to love. The spacious kitchen island opens to the living room and the dining area, offering extra space for casual snacks. Don’t miss the large walk-in pantry.

At the back of the plan, a sunroom gives you a place for year-round relaxation. The primary suite shines with a deluxe bath, a generous closet, and a storm room. A study sits at the front of the plan and would make a great hobby space.

Four-Bedroom Farmhouse Plan Four-Bedroom Farmhouse Plan Four-Bedroom Farmhouse Plan - Front Exterior

Four-Bedroom Farmhouse Plan Four-Bedroom Farmhouse Plan - Main Level

Four-Bedroom Farmhouse Plan Four-Bedroom Farmhouse Plan - Upper Level

This new modern farmhouse plan shows off a breezy floor plan that’s under 2,000 square feet. A fireplace warms the living room and the dining area. The main-level primary suite enjoys privacy at the back of the plan and makes it easy to age in place.

A secondary bedroom waits near the entry, while two more bedrooms rest on the second floor. We love the covered patio and the two-car garage.

Lots of Outdoor Living Lots of Outdoor Living Lots of Outdoor Living - Front Exterior

Lots of Outdoor Living Lots of Outdoor Living - Main Level

Lots of Outdoor Living Lots of Outdoor Living - Upper Level

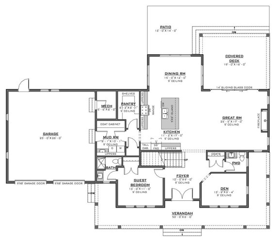
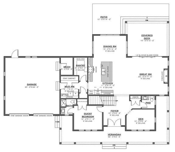
Hello gorgeous! We are swooning over this new four-bedroom modern farmhouse plan. It gives you eye-catching curb appeal with a wraparound porch, board-and-batten siding, and a metal roof. Don’t worry, inside is just as impressive.

A large island in the kitchen overlooks the great room, while an extra-roomy pantry (with shelves) is ready to hold groceries. Just off the two-car garage, a coat cabinet in the mudroom keeps things tidy. The foyer sits between a bedroom suite and a versatile den. Sliding glass doors open to the covered deck and the generous patio out back.

Mudroom with Lockers Mudroom with Lockers Mudroom with Lockers - Front Exterior

Mudroom with Lockers Mudroom with Lockers - Main Level

Mudroom with Lockers Mudroom with Lockers - Upper Level

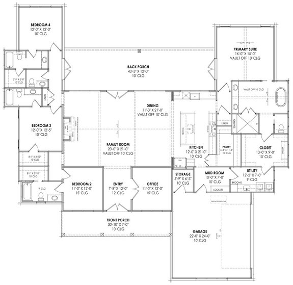
Bold and beautiful, this modern farmhouse plan features a welcoming front porch and is pictured here with classic barn lighting. The great room gives you smart built-ins on either side of the fireplace. The open kitchen and the dining nook wait nearby. Get work done in the handy office at the front of the plan.

Need to stay organized? Check out the mudroom with lockers or the walk-in pantry with built-in shelves. Four bedrooms rest on the second level, including the primary suite. The laundry room is conveniently up here as well.

Sleek Farmhouse Design Sleek Farmhouse Design Sleek Farmhouse Design - Front Exterior

Sleek Farmhouse Design Sleek Farmhouse Design - Main Level

Stone siding and large windows deliver sleek style to the exterior of this modern farmhouse design. Inside, the vaulted family room takes center stage and flows seamlessly into the spacious island kitchen. The primary suite enjoys privacy on the right side of the plan and features a spa-like bath and direct access to the laundry room (via the walk-in closet).

Three more bedroom suites reside on the left side of the plan, while an office sits near the entry. Front and rear porches give you plenty of room to relax outside.

One-Story Modern Farmhouse Plan One-Story Modern Farmhouse Plan One-Story Modern Farmhouse Plan - Front Exterior

One-Story Modern Farmhouse Plan One-Story Modern Farmhouse Plan - Main Level

This one-story modern farmhouse plan lives large with an efficient layout that is contemporary and open. The extra-big kitchen island seats up to five and provides plenty of room for meal prep and casual meals. The spacious pantry could also become a home office if needed.

A generous closet, a custom shower, and a freestanding tub shine in the luxe primary suite. Take advantage of nice weather on the covered front and rear porches. A coffee bar in the kitchen is a thoughtful amenity.

Timeless Design with Outdoor Kitchen Timeless Design with Outdoor Kitchen Timeless Design with Outdoor Kitchen - Front Exterior

Timeless Design with Outdoor Kitchen Timeless Design with Outdoor Kitchen - Main Level

A classic front porch adds country flair to this modern farmhouse plan. The island kitchen shows off a walk-in pantry and a butlers pantry that opens to the formal dining room. Work from home? Check out the study near the foyer.

The primary suite enjoys privacy in the left wing of the plan and features direct access to the laundry room. Our favorite part? The rear porch and the outdoor kitchen. Both secondary bedrooms give you walk-in closets.

Discover more modern farmhouse plans.

Get Our Newsletter

Be the first to see new plans, special offers, and more.

By signing up for our newsletter, you agree to our Terms & Conditions and Privacy Policy, for an account

Blog Subscribe Icon