By Gabby Torrenti
This collection of exclusive plans from Donald A. Gardner features on-trend modern farmhouses, classic colonials, and everything in between. Including homes with open floor plans, lots of space for entertaining, and additional bonus spaces, this collection of Gardner homes has something for every person looking to build their dream home.
Want to see the full collection? Check out all of the homes by Donald A. Gardner Architects.
Classic Country Home
Plan 929-8
After stepping in off this home’s front porch, guests are welcome to enjoy a grand open living space, featuring cathedral ceilings. This space is comprised of the living and dining rooms, with an attached kitchen. Move the party outside easily with convenient access to a screened-in porch and spacious patio, which also features an outdoor kitchen for simple summer entertaining. A private primary suite with its own full bathroom and two walk-in closets provides a sanctuary for the homeowners, while two additional bedrooms give guests or children their own areas to relax. Upstairs, a versatile bonus room allows endless possibilities for spending time with loved ones, and skylights on the upper level let light in during the day, while allowing indoor stargazing at night.
Rustic Modern Farmhouse
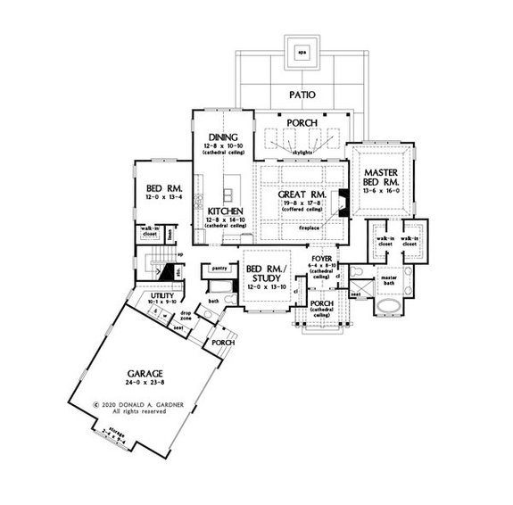
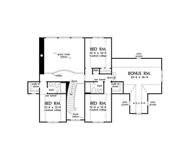
Plan 929-1128
This modern farmhouse welcomes you indoors through a trussed front porch, leading into a foyer space that opens into the home’s great room. This main living space is flanked by the primary suite to the right, as well as the wide-open island kitchen and designated dining space to the left. The main suite includes two walk-in closets and a full bathroom with a large bathtub. On the home’s opposite side is an additional bedroom, as well as another room which can be utilized as either a bedroom or study. Head upstairs to relax in the home’s bonus room, which includes its own full bathroom and access to the attic. This home would not be complete, though, without its spacious patio and enclosed porch, which makes entertaining all-year round a breeze.
Trendy Farmhouse
Plan 929-1107
Step inside to this home’s main foyer and into the wide-open living space. A great room with a cathedral ceiling is seamlessly connected to the kitchen and dining areas, making it simple to enjoy a family meal or host guests. To the left side of the home, two bedrooms are connected by a shared full bathroom with easy passage to the main living areas. On the home’s right side, a primary suite provides a getaway for the owners and includes its own walk-in closet and a bathroom with convenient dual sinks. Outside, both a deck and patio invite guests outdoors.
Are looking for ideas on how to decorate these beautiful homes? Check out these on-trend suggestions from House Beautiful.
Spacious Craftsman
Plan 929-60
This classic Craftsman home features unique truss details and windows that add visual appeal, but the impressive features of this home do not stop at the exterior. Venture inside this 3,102 square foot home, which is the perfect fit for a family. Beyond the front foyer are two flexible spaces to each side. A flex room, which can double as a study, is located to the left, while a studio space and garage-adjacent mudroom sit to the left of the main entrance area. Further into the home is the main living space, featuring an open great room with two-story ceilings and access to the home’s porch and patio. A spacious kitchen with a sizable center island opens into a convenient dining space. After dinner, step onto the screen porch with its own fireplace and cathedral ceilings. When the night is over, retire to the home's primary suite, including two walk-in closets and a full bathroom with two sinks and a luxe tub. Upstairs, three additional bedrooms provide relaxing spaces for children or guests, along with two full bathrooms and two walk-in closets for added convenience. The upper floor can be made complete with a bonus room, adding more space for spending time with loved ones.
Chic Cottage
Plan 929-1106
From the outside, this home impresses with gable details and a convenient two-car garage. Step into the foyer with vaulted ceilings, which provides simple access to the second floor via the main staircase. Further into the home is a great room with a grand fireplace, which leads seamlessly onto the back porch and patio. To the left of the great room, a sizable primary suite includes a full bathroom with dual sinks, as well as both a walk-in closet and linen closet. On the home’s opposite side, the connected dining room and kitchen create an ideal entertaining space with simple access to the pantry and an additional powder room. Upstairs, two bedrooms and a bonus room make relaxing at the end of the day easy. Additional bonus space adds to this home’s appeal, while visual features such as skylights wow from within.
Rustic Cottage
Plan 929-1132
On the exterior, this plan features rustic details that contribute to the home’s overall charm. Past the main foyer, a great room opens up into the kitchen and dining spaces, creating a free-flowing main level that feels grand. To the home’s right side, two guest bedrooms are connected by a full bathroom with access to a pocket office. Each bedroom features its own walk-in closet as well, putting storage solutions in reach. To the left of the main living space, a sizable primary bedroom creates an escape for the owners, including two walk-in closets and a full bathroom with two sinks. At the front of the home, a fourth space allows for an additional guest bedroom or study, adding to the customization options of this plan. Ideal for working from home, this high-ceilinged space also comes with its own half bathroom and is easily accessible from the main living area. Upstairs, a bonus space contributes more room to entertain and features its own optional full bathroom, too.
Classic Craftsman
Plan 929-428
This craftsman home perfectly combines rustic features with a modern layout. Off the spacious porch is a dining space, which welcomes guests into the main living area. A great room with a cathedral ceiling flows effortlessly into the eat-in kitchen, which comes equipped with a pantry that makes preparing meals simple. To the left of the home, the primary suite includes two closets, as well as a master bathroom with dual sinks and a private toilet closet. This secluded space offers ultimate relaxation, with two additional bedrooms on the home’s opposite side. These rooms share a full bathroom. Upstairs, a bonus room allows space to lounge or can double as an extra room for storing belongings.












