Blog Home > Storage Solutions: RV Garage Plans and More

The Houseplans Blog

Storage Solutions: RV Garage Plans and More

Enjoy lots of storage with these RV Garage Plans.

Hero Image

August 1, 2022

Livabl Brand

Can't find what you're looking for?

Give us a call below or reach out and we’ll make sure to be in contact!

Send Us a Message

By Courtney Pittman

Need a handy space to store your RV? These RV garage plans offer plenty of room for storage and ample parking. Plus, many of them feature multiple garage bays, smart workshops, and multi-use areas. We’ve rounded up a great mix of stylish garage apartment plans, barndominium house plans, and more.

Want more inspo? Check out our RV garage plans collection here.

Farmhouse-Style RV Garage Plan Farmhouse-Style RV Garage Plan Farmhouse-Style RV Garage Plan - Front Exterior

Farmhouse-Style RV Garage Plan Farmhouse-Style RV Garage Plan - Main Floor Plan

Here’s a farmhouse-style plan with generous RV storage. A front porch and a rear covered patio add usable outdoor living space. Inside, the vaulted great room opens to the island kitchen and the dining nook. Nearby, the primary suite enjoys a shower and a tub with a skylight.

A secondary bedroom rests on the right side of the plan and features a walk-in closet. Note the tool nook in the three-car garage and the drop zone in the mudroom. An unfinished bonus room upstairs opens up all kinds of possibilities (check out these bonus room remodeling tips from The Spruce).

Craftsman House Plan with RV Garage Craftsman House Plan with RV Garage Craftsman House Plan with RV Garage - Front Exterior

Craftsman House Plan with RV Garage Craftsman House Plan with RV Garage - Main Floor Plan

Check out this Craftsman charmer. The fireplace-warmed living room opens to the generous island kitchen. Sliding glass doors connect the primary suite to the back patio.

Don’t miss the well-equipped laundry/mudroom on the way in from the three-car garage (which includes room for an RV).

Barndominium-Style Home with RV Garage Plan Barndominium-Style Home with RV Garage Plan Barndominium-Style Home with RV Garage Plan - Front Exterior

Barndominium-Style Home with RV Garage Plan Barndominium-Style Home with RV Garage Plan - Main Floor Plan

Barndominium-Style Home with RV Garage Plan Barndominium-Style Home with RV Garage Plan - Upper Floor Plan

It’s true: this barndominium-style house plan includes a huge three-car garage AND a handy workshop (with a half bath). Inside, the well-designed layout gives you a spacious kitchen island (with an eating bar) that opens to the dining area and the living room. Nearby, sliding glass doors open to the covered wraparound porch.

The primary suite stands out with a large walk-in closet and direct access to the laundry room. At the front, a den could become a home office. Two additional bedrooms (each with a walk-in closet) share a full bath on the second floor. Check out the flexible loft (explore these DIY loft ideas from Apartment Therapy).

RV Garage Plan with Studio RV Garage Plan with Studio RV Garage Plan with Studio - Front Exterior

RV Garage Plan with Studio RV Garage Plan with Studio - Main Floor Plan

RV Garage Plan with Studio RV Garage Plan with Studio - Upper Floor Plan

Looking to add a smart addition to your property? Here’s a good one. The first floor features a three-car garage with room for an RV. A half bath also rests on this level.

Upstairs, the studio apartment gives you an island kitchen (with a pantry) that opens to the living space. A sizable deck extends the space.

Country RV Garage Plan Country RV Garage Plan Country RV Garage Plan - Front Exterior

Country RV Garage Plan Country RV Garage Plan - Main Floor Plan

Country RV Garage Plan Country RV Garage Plan - Upper Floor Plan

Board-and-batten siding and a gable roof add country curb appeal to this farmhouse plan. The main floor sports a three-car garage (with room for an RV), a mudroom, a half bath, and an island kitchen that opens to the rear covered porch.

Upstairs, the open layout includes a second island kitchen with two pantries. The primary suite enjoys privacy in the left wing of the plan and shows off a big closet. A second bedroom suite sits on the opposite side.

Tiny RV Garage Plan Tiny RV Garage Plan Tiny RV Garage Plan - Front Exterior

Tiny RV Garage Plan Tiny RV Garage Plan - Main Floor Plan

Don’t underestimate this cute 540-square-foot design. The two-car garage gives you plenty of space to store an RV. The open living/dining room provides an airy vibe.

A bedroom waits near the front of the plan, while a garden shed adds ample storage at the back.

Craftsman RV Garage Plan Craftsman RV Garage Plan Craftsman RV Garage Plan - Front Exterior

Craftsman RV Garage Plan Craftsman RV Garage Plan - Main Floor Plan

Craftsman RV Garage Plan Craftsman RV Garage Plan - Upper Floor Plan

The primary suite is located on the first floor of this Craftsman design, making it a great option for aging in place. The layout gives you seamless flow in the main gathering spaces. Don’t miss the impressive two-story lodge room.

Two more bedroom suites occupy the second level. An attic offers additional space and could serve as an extra bedroom. Other amenities to love: the small loft, the covered rear porch (that could also be an optional sunroom), and the three-car RV garage.

Modern RV Garage Plan with Apartment Modern RV Garage Plan with Apartment Modern RV Garage Plan with Apartment - Front Exterior

Modern RV Garage Plan with Apartment Modern RV Garage Plan with Apartment - Main Floor Plan

Modern RV Garage Plan with Apartment Modern RV Garage Plan with Apartment - Upper Floor Plan

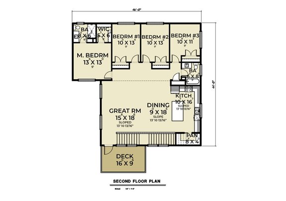
This garage apartment plan offers special details in a modest footprint. For example, the spacious kitchen features an island and a walk-in pantry and opens to the great room/dining area. A sloped ceiling draws the eye up, while a deck adds outdoor living space.

Four bedrooms(!) rest near the back of the plan – including the primary suite. You'll find tons of parking space on the first level, along with a bathroom that has a shower.

RV Garage Plan with Bonus Room RV Garage Plan with Bonus Room RV Garage Plan with Bonus Room - Front Exterior

RV Garage Plan with Bonus Room RV Garage Plan with Bonus Room - Main Floor Plan

RV Garage Plan with Bonus Room RV Garage Plan with Bonus Room - Upper Floor Plan

A gable roof adds stylish flair to the exterior of this RV garage plan. Inside, the second floor includes a kitchen island with an eating bar. The bonus room could also become a home office. A bathroom with a shower completes this level.

The three-car garage gives you enough room to store an RV and then some. Check out the convenient half bath on the main floor.

RV Garage Plan with Outdoor Living RV Garage Plan with Outdoor Living RV Garage Plan with Outdoor Living - Front Exterior

RV Garage Plan with Outdoor Living RV Garage Plan with Outdoor Living - Main Floor Plan

RV Garage Plan with Outdoor Living RV Garage Plan with Outdoor Living - Upper Floor Plan

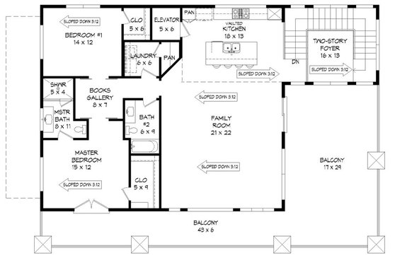
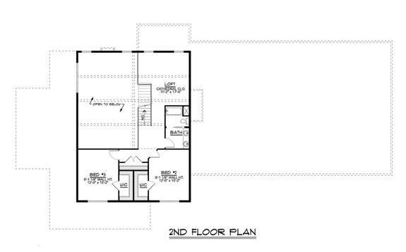
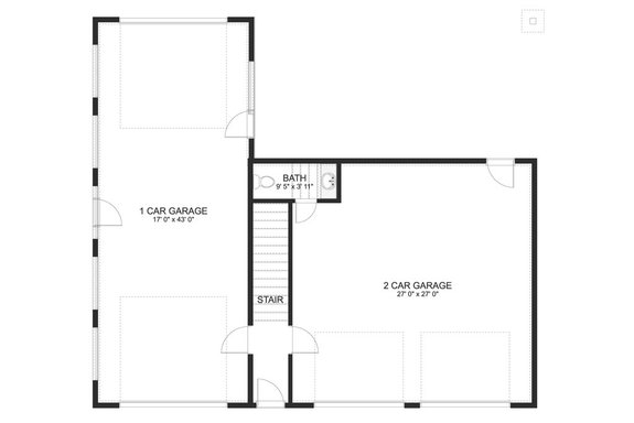
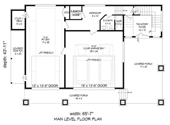
This modern RV garage plan wastes no space. Upstairs, the kitchen island does double-duty as a snack bar and opens to the big family room. Each bedroom features a walk-in closet (including the big primary suite).

Step out and enjoy the fresh air on the wraparound balcony or the covered porch. Other practical details include the lift-friendly three-car RV garage, the covered dog run, and the well-designed workshop. An elevator offers accessibility.

Explore more RV garage plans here.

Get Our Newsletter

Be the first to see new plans, special offers, and more.

By signing up for our newsletter, you agree to our Terms & Conditions and Privacy Policy, for an account

Blog Subscribe Icon