Looking for a plan with extra room for storing your recreational vehicle? These eight designs should fit the bill. Each one includes an RV garage with living quarters – making them ideal as a stand-alone home or an ADU (accessory dwelling unit). Plus, they feature well-thought-out amenities like kitchen islands and outdoor areas.
Explore our RV garage with living quarters collection here.
Tiny Modern Plan
Tiny Modern Plan - Front Exterior
Tiny Modern Plan - Upper Level
This tiny garage apartment plan shows off modern style with clean lines and a metal shed roof. Everything has a place in the four-car garage, which includes room for an RV. On the second level, the open layout places the living room and the island kitchen at the front of the plan.
A vaulted ceiling makes the space feel larger than it is. Sliding glass doors open to a deck and offer indoor/outdoor connections. Located at the back of the plan, a bedroom enjoys privacy and features a generous closet.
Ample Storage
Ample Storage - Front Exterior
With plenty of room for storage, this modern house plan is full of convenience. The main level gives you a four-car garage with room for an RV. Note the two-story vaulted ceiling and the storage area. Upstairs, a big island in the kitchen seats up to eight and overlooks the family room.
Here’s a nice touch: all three bedrooms boast walk-in closets. We love the spacious utility room.
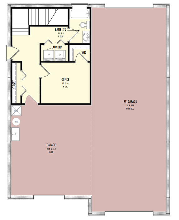
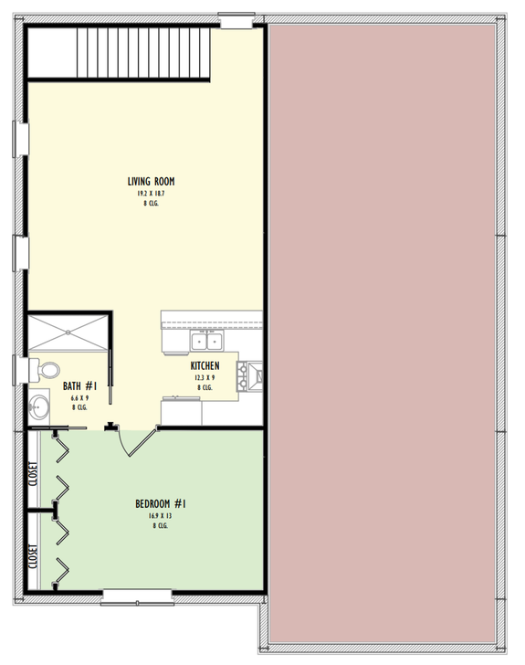
Barndo Plan with Office
Barndo Plan with Office - Front Exterior
Barndo Plan with Office - Main Level
Barndo Plan with Office - Upper Level
Here's a simple barndominium house plan. Two closets in the bedroom make it easy to keep clothes organized. The U-shaped kitchen features an eating bar that opens to the living room nearby.
Work from home? You’re in luck. A handy office is located on the main level. A two-car garage (with room for an RV) rounds out this plan.
Traditional Design with Big Balcony
Traditional Design with Big Balcony - Rear Exterior
Traditional Design with Big Balcony - Main Level
Traditional Design with Big Balcony - Upper Level
Just 31 feet wide, this traditional design would fit nicely on a slim lot. The first floor features a three-car garage or space for an RV. On the second level, a double-sided fireplace warms the living area and the large covered balcony.
The island kitchen provides extra seating with a snack bar. A big walk-in closet, a glass shower with a seat, and a separate tub highlight the bedroom suite.
Loving any of the plans you're seeing? Register now to easily save and return to your favorites!
Four-Car Garage with Storage
Four-Car Garage with Storage - Front Exterior
Four-Car Garage with Storage - Main Level
Four-Car Garage with Storage - Upper Level
Here’s a contemporary garage apartment plan that lives large. The main floor hosts a three-car garage and a two-story RV bay. A super-spacious storage area is ready to keep items organized. Check out the built-in bench in the entry.
Upstairs, you’ll find plenty of counter space in the kitchen and a thoughtful island that encourages relaxed meals. The vaulted living room rests close by. Don’t miss the extra-big closets in both bedrooms.
Under 1,000 Square Feet of Living Space
Under 1,000 Square Feet of Living Space - Front Exterior
Under 1,000 Square Feet of Living Space - Main Level
Under 1,000 Square Feet of Living Space - Upper Level
A gable roof decorates the exterior of this traditional style design. On the first floor, a garage can store up to one vehicle and an RV. Check out the shop area and the storage under the stairs.
An efficient layout waits on the second level and includes an open kitchen/living area, a bedroom suite, and a half bath.
Two-Story RV Bay
Two-Story RV Bay - Front Exterior
Two-Story RV Bar - Upper Level
This garage apartment plan lives larger than its modest footprint. Everything has a place in the three-car garage and a two-story RV bay. The well-equipped kitchen overlooks the living room.
Enjoy casual meals at the island. Our favorite part? Each bedroom includes a walk-in closet.
Southwest Garage Plan with Rooftop Deck
Southwest Garage Plan with Rooftop Deck - Front Exterior
Southwest Garage Plan with Rooftop Deck - Main Level
Southwest Garage Plan with Rooftop Deck - Upper Level
Here’s an ADU with up-to-date amenities. For example, the first floor gives you a four-car tandem garage and an RV bay. Nearby, the U-shaped kitchen includes a snack bar – perfect for casual meals. A fireplace warms the great room.
A bedroom and a hall bath (which gives you a shower with two seats) reside on the left side of the plan. Outdoor living spaces include a wide front porch and an extra-generous rooftop deck.



