Blog Home > Single Story Garage Living Quarters

The Houseplans Blog

Single Story Garage Living Quarters

Check out these single story garage living quarters!

Hero Image
Courtney Pittman

April 5, 2024

Livabl Brand

Can't find what you're looking for?

Give us a call below or reach out and we’ll make sure to be in contact!

Send Us a Message

Looking to add value to your property? You’re in luck. Single story garage living quarters offer lots of storage and flexible spaces — all on one convenient level. These designs show you how it’s done with plenty of room for organization, efficient floor plans, and smart details. Here are a few of our favorites.

Explore our collection of garage plans with apartments here.

Barndominium Garage Apartment Plan

Barndominium Garage Apartment Plan Barndominium Garage Apartment Plan - Front Exterior

Barndominium Garage Apartment Plan Barndominium Garage Apartment Plan - Main Level

Here’s a barndominium-style garage with living quarters that shows off country style with a gable roof and board-and-batten siding. A generous workshop sits on the left side of this plan, which can also hold up to two vehicles.

On the right, an island in the kitchen gives you seating for casual meals and opens to the living room. A bedroom (with a walk-in closet) and a full bath complete this design.

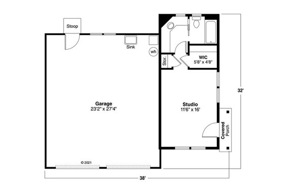
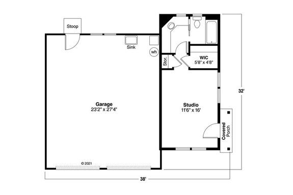
Single Story Garage Plan with Studio

Single Story Garage Plan with Studio Single Story Garage Plan with Studio - Front Exterior

Single Story Garage Plan with Studio Single Story Garage Plan with Studio - Main Level

Storage is made easy with this single story garage plan. The spacious two-car garage is ready to keep things organized. Check out the attic space. Inside, the simple layout features a studio apartment with a kitchenette. Other highlights include a closet, a sizable shower, and a covered porch.

Three-Car Garage Apartment Plan with Country Style

Three-Car Garage Apartment Plan with Country Style Three-Car Garage Apartment Plan with Country Style - Front Exterior

Three-Car Garage Apartment Plan with Country Style Three-Car Garage Apartment Plan with Country Style - Main Level

This barndominium garage apartment plan turns heads with country curb appeal. Don't miss the three-car garage. Inside, an open floor plan between the island kitchen and the living room delivers easy flow. A patio extends the space and offers outdoor living. The walk-in closet is a nice touch.

Traditional Garage Plan with a Studio

Traditional Garage Plan with a Studio Traditional Garage Plan with a Studio - Front Exterior

Traditional Garage Plan with a Studio Traditional Garage Plan with a Studio - Main Level

Here’s a traditional garage plan with a simple footprint. The uncomplicated design sports a two-car garage that can also be used for storage. A studio space gives you flexibility and features a generous walk-in closet and a full bath.

Seven-Car Garage Plan

Seven-Car Garage Plan Seven-Car Garage Plan - Front Exterior

Seven-Car Garage Plan Seven-Car Garage Plan - Main Level

A six-car garage, an RV garage, and a walk-in closet in the bedroom deliver loads of storage in this cool design. Check out the open flow between the main living spaces. Seating at the kitchen island is a modern touch. Nice weather? Kick back and relax on the front porch.

Two-Bedroom Modern Garage Apartment House Plan

Two-Bedroom Modern Garage Apartment House Plan Two-Bedroom Modern Garage Apartment House Plan - Front Exterior

Modern Garage Apartment House Plan Two-Bedroom Modern Garage Apartment House Plan - Main Level

Modern and versatile, this sleek garage apartment house plan is ready to keep things organized. A four-car garage takes up space on the left side of the plan and gives you tons of room for storage. Inside, the big kitchen island seats up to six and opens to the other main living areas.

The primary suite impresses with a spa-like bathroom, an extra-spacious walk-in closet, and direct access to the laundry room. An additional bedroom features two closets. We love the cool garage doors in the living room and the dining area.

Modest House Plan with Garden Shed

Modest House Plan with Garden Shed Modest House Plan with Garden Shed - Front Exterior

Modest House Plan with Garden Shed Modest House Plan with Garden Shed - Main Level

This modest house plan offers an uncomplicated layout with loads of amenities. The two-car garage features a workshop and abundant room for storage. The living room opens effortlessly to the island kitchen, while a bedroom rests near the front of the plan. Other highlights include two bathrooms and a cool garden shed.

Discover more garage plans with apartments here.

Get Our Newsletter

Be the first to see new plans, special offers, and more.

By signing up for our newsletter, you agree to our Terms & Conditions and Privacy Policy, for an account

Blog Subscribe Icon