Blog Home > Small Modern House Plans Under 1,500 Sq. Ft.

The Houseplans Blog

Small Modern House Plans Under 1,500 Sq. Ft.

Learn about these small modern house plans under 1500 sq. ft.

Hero Image

April 19, 2024

Livabl Brand

Can't find what you're looking for?

Give us a call below or reach out and we’ll make sure to be in contact!

Send Us a Message

By Courtney Pittman

In the market for a budget-friendly home plan? Check out these small modern house plans under 1,500 sq. ft. What makes them so great? Highly functional layouts that waste no space thanks to their smart floor plans and well-thought amenities. Here are eight of our top picks below.

Browse our collection of small modern house plans

Modern Two-Story House Plan Modern Two-Story House Plan Modern Two-Story House Plan - Front Exterior

Modern Two-Story House Plan Modern Two-Story House Plan - Main Level

Modern Two-Story House Plan Modern Two-Story House Plan - Upper Level

Here’s a thoughtfully designed two-story modern house plan. The main living areas are open, with a large prep island that includes an eating bar. A wall of sliding glass doors opens to the spacious deck for seamless indoor/outdoor living.

A bedroom and a bath sit on the left side of the plan, while an additional bedroom waits on the second level. Check out the versatile loft space.

Contemporary Design with Garage Contemporary Design with Garage Contemporary Design with Garage - Front Exterior

Contemporary Design with Garage Contemporary Design with Garage - Main Level

Here’s a small contemporary design that takes advantage of every square foot. Near the front of the plan, you'll find two bedrooms (one displaying a walk-in closet). Seating at the kitchen island is a modern touch. Highlights of the bathroom include a shower and a separate tub. Storage is made easy thanks to the handy garage.

Practical Garage Apartment Plan Practical Garage Apartment Plan Practical Garage Apartment Plan - Front Exterior

Practical Garage Apartment Plan Practical Garage Apartment Plan - Main Level

Practical Garage Apartment Plan Practical Garage Apartment Plan - Upper Level

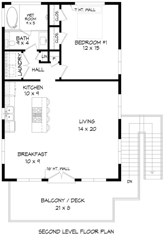
Looking to add some value to your property? Check out this garage apartment plan. On the first level, the two-car garage is “lift-friendly” and features extra room for storage. Upstairs, the open floor plan makes this design feel spacious and modern, with the kitchen island overlooking the living room and the breakfast nook.

A balcony makes it easy to step outside. The bedroom gives you two closets and rests near the generous bathroom (with a wet room!). Lots of windows deliver natural light.

Modern Barndominium Plan Modern Barndominium Plan Modern Barndominium Plan - Exterior

Modern Barndominium Plan Modern Barndominium Plan - Main Level

Modern Barndominium Plan Modern Barndominium Plan - Upper Level

Check out this stylish barndominium plan. The first floor offers a garage and an open great room and kitchen. The spacious storage area is a welcome detail. Upstairs hosts the primary suite and an additional bedroom suite. Other unexpected amenities include the flexible loft and direct access to the laundry room from the primary suite.

Modern U-Shaped Plan Modern U-Shaped Plan Modern U-Shaped Plan - Front Exterior

Modern U-Shaped Plan Modern U-Shaped Plan - Main Level

This modest plan features a U-shaped footprint (see more U-shaped plans here) and keeps things modern and simple throughout. The vaulted great room flows effortlessly into the kitchen, where an island is ready to serve up snacks. Glass doors connect the main living areas to the covered patio.

Conveniently located in the primary suite, the stacked washer and dryer make it easy to throw in a load. Don’t miss the convenient bench and the coat closet in the thoughtful mudroom.

Modern Cabin Plan Modern Cabin Plan Modern Cabin Plan - Front Exterior

Modern Cabin Plan Modern Cabin Plan - Main Level

Modern and relaxed, this cabin house plan is all about easy living. The living room, the dining area, and the kitchen share one big open space. Front and rear porches give you room to hang out outside, while enhancing indoor/outdoor living. At the back of the plan, two bedrooms (each with private access to the covered porch) share a hall bath.

Petite Plan with Art Loft Petite Plan with Art Loft Petite Plan with Art Loft - Front Exterior

Petite Plan with Art Loft Petite Plan with Art Loft - Main Level

Petite Plan with Art Loft Petite Plan with Art Loft - Upper Level

This petite house plan grabs your attention with a modern exterior. We love the shed roof and the big windows. The vaulted family room opens to the kitchen, where a big peninsula offers relaxed seating. French doors open to a covered porch. An art loft on the second level opens up all kinds of possibilities, like a reading nook or a hobby space.

Modern Plan with Mudroom Modern Plan with Mudroom Modern Plan with Mudroom - Front Exterior

Modern Plan with Mudroom Modern Plan with Mudroom - Main Level

Here’s a small modern house plan that delivers style and versatility. An island in the kitchen gives you room to sit and enjoy a casual meal. Nearby, sliding doors open to a rear deck just off the living room.

Store everyday items in the organized mudroom. Secluded on the right side of the plan, the primary suite shines with a walk-in closet, two sinks, a shower, and a separate tub.

Discover more small modern house plans

Get Our Newsletter

Be the first to see new plans, special offers, and more.

By signing up for our newsletter, you agree to our Terms & Conditions and Privacy Policy, for an account

Blog Subscribe Icon