Gabby Torrenti
Open floor plan homes are designed around a large open living space, anchored by a kitchen. This type of floor plan makes your home feel grand, regardless of the square footage. Easy to navigate and highly customizable, an open floor plan home is the perfect fit for any neighborhood or design style.
Want to explore the full collection? Check out our favorite open floor plan homes here.
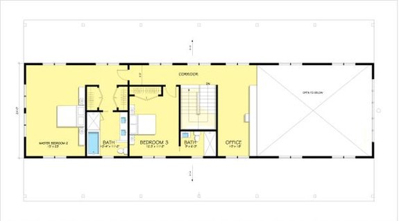
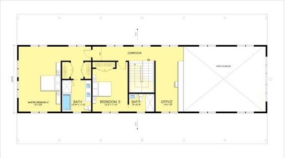
Two Story Open Farmhouse
Plan 888-15
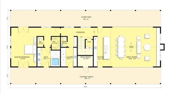
With floor-to-ceiling windows on all sides, this open concept home is constantly full of light, making the space feel fresh and welcoming all year long. On the main level, a covered porch surrounds the perimeter, leading into the wide-open living space. The great room is comprised of a combined living and dining space, located directly in front of the kitchen, separated only by a sizable kitchen island. This space is optimized for entertaining and the open floor plan makes it simple to do so. On the opposite side of the home, a laundry and powder room leads into the primary suite. This sizable suite includes a spacious bedroom with access to both the front and back porches, a walk-in closet and a full bathroom with dual sinks, a private toilet closet, and porch access as well.
Upstairs, two additional bedrooms keep guests or children separate. This specific home offers two primary suites, though, so one of the upstairs bedrooms is optimized to be the perfect additional suite for visitors. This suite includes its own walk-in closet, as well as a full bathroom with dual sinks. The third bedroom has its own closet and a connected full bathroom. Down a short corridor, a designated office space makes working from home a breeze. This open concept home is full of smart features, made complete by a convenient open floor plan.

Looking to upgrade your outdoor living space? Check out these design ideas from Builder Magazine.
Contemporary Open Home
Plan 1066-62
Beyond its modern exterior, this home begins at the spacious entry foyer, which is open to the second level; a detail that makes the space feel even grander. Further inside, the open kitchen and dining spaces are accented by a breakfast nook, which sits to the left of the spacious kitchen. Directly off the kitchen is a waterproof weather deck, which allows for year-round entertaining. On the opposite side of the home, a private guest suite with its own private hallway makes the perfect space for visitors to stay. This suite includes a powder room, additional full bathroom, and walk-in closet. Upstairs, the primary suite comprises the entire right side of the second floor, including a large bedroom, walk-in closet, full bathroom with dual sinks, and a private dressing area. Connected by an elevated bridge, the other half of the second floor features two more bedrooms, a shared bathroom, and plenty of closet space for keeping belongings at hand.
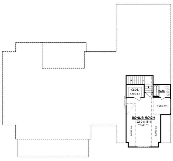
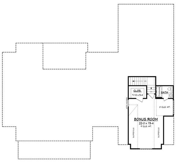
Open Floor Plan Farmhouse
Plan 430-156
This contemporary home welcomes guests off the front porch and into the main foyer space, which leads into the open living space. To the right of the great room, a sizable kitchen with an island, attached pantry, and breakfast nook serve as the heart of the home. On the opposite side of the home, three guest bedrooms comprise a private area for guests or children. The three bedrooms share a full hall bathroom and each comes equipped with its own closet space. Heading back through the great room, make a quick stop on the rear porch before retiring to the primary bedroom for a relaxing evening. This suite includes a sizable main bedroom, a full bathroom with dual sinks, and a shared closet with plenty of space for all of your favorite outfits. A laundry room and half bathroom round out the main floor of this easy-to-navigate home. Just steps beyond the laundry room, a staircase leads to an upstairs bonus space with its own bathroom, which would make the ideal movie room or relaxation space.
Looking for decorating ideas for your new home? Take a peek at plan 430-156, decorated to contemporary perfection!
Modern Open Floor Plan Home
Plan 1070-14
This two-story home is fronted by large windows, leading into a wide-open floor plan. Off the front deck is an open living space, which flows effortlessly into a dining space and kitchen. The kitchen’s large central island makes entertaining a breeze, with a half bathroom, mudroom, and pantry close by. To the right of the main entertaining space, a master suite gives the homeowners a place to relax with an attached bathroom and walk-in closet. The bathroom includes dual sinks and a separate bathtub and shower, adding to the home’s overall convenience. Upstairs, two more bedrooms and a full bathroom keep guests separate, while still allowing plenty of space for winding down.
Contemporary Farmhouse with an Open Plan
Plan 48-971
After entering off this home’s expansive front porch, drop belongings in the mudroom and step into the spacious combined living and dining space, which is located to the left of the eat-in kitchen. At the back of the home, three convenient doors provide access to an outdoor living space. When it’s time to wind down, the vaulted primary suite is located at the back of the home with its own walk-in closet and access to an additional private outdoor space. A full bathroom with dual sinks and a separate toilet closet adds to the privacy and convenience of the main suite. Connected by a small foyer area, two additional bedrooms give guests or kids their own space and access to a shared full bathroom. Closets in each room make storage a breeze as well. On the opposite side of the home, vaulted ceilings cover a media room, which provides the perfect space for those who work from home. Built-in bookshelves and a half bathroom make it simple to create a miniature office environment in the comfort of your own home. To round out this free-flowing floor plan, a laundry room and storage space help eliminate clutter, while an additional porch allows you to enjoy the fresh air at any time of the day.






