By Courtney Pittman
Don’t mind us, we’re just swooning over our latest round-up of new barndominium plans. These rustic designs offer modern living via open-concept layouts, big island kitchens, generous garages, and more. Our list features charming garage apartment plans, generous contemporary designs, and more.
Ready to build? Check out our barndominium house plans collection here.
Key Characteristics of a Barndominium
Open-Concept Floor Plans
Most barndominium plans feature functional open layouts that are inviting and modern. This design style maximises natural light, offers flexibility, and creates a sense of spaciousness.
Garages with Shop Areas
Garages with shops offer ample storage space for tools and dual-purpose areas.
Cost-Effective
Barndominium plans offer a budget-friendly alternative due to their simpler design. Typically, they require fewer materials because of their open layouts.
Outdoor Living
Many barndominium plans incorporate features like wraparound porches and patios, making it easy to enjoy outdoor living.
Rustic Curb Appeal
Barndominium plans showcase rustic charm with features like board-and-batten siding, expansive front porches, metal gable roofs, and more.
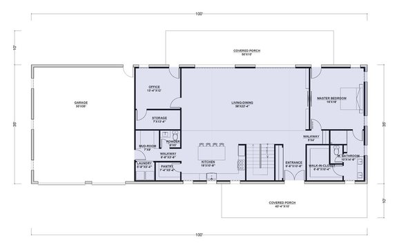
Stylish Barndo Plan
Stylish Barndo Plan - Front Exterior
Stylish Barndo Plan - Main Level
Stylish Barndo Plan - Upper Level
It doesn’t get much more stylish than this 2,810-square-foot barndominium plan. We are head-over-heels for the board-and-batten siding, the rustic lights, and the sliding barn doors. Inside, a cathedral ceiling and cool built-ins highlight the great room.
Nearby, a mudroom keeps things organized with a bench and lockers. The primary suite offers convenience with direct access to the laundry room. At the front of the plan, an office gives you a quiet place to get done. You’ll find plenty of room for storage in the three-car garage. Check out the flexible loft.
Barndominium Plan with Loft
Barndominium Plan with Loft - Front Exterior
Barndominium Plan with Loft - Main Level
Barndominium Plan with Loft - Upper Level
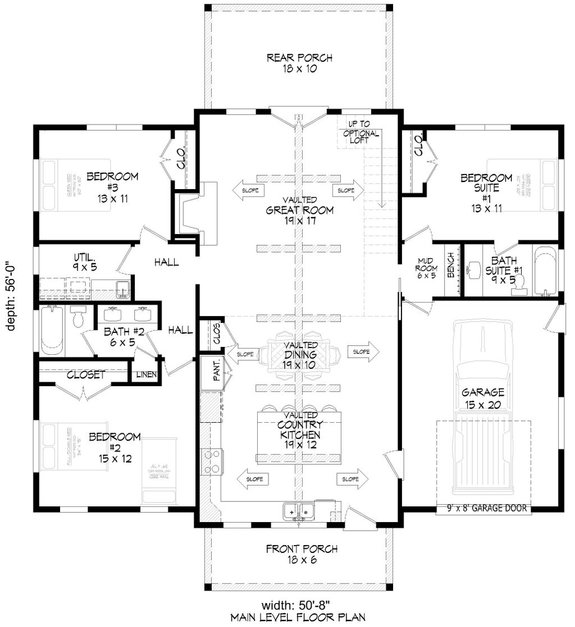
Talk about a dreamy barndominium plan! This three-bedroom design shows off serious curb appeal with a wraparound porch, metal roof accents, and barn lighting. Inside is just as good. The layout features an island kitchen that opens to the great room and the dining area.
The vaulted ceiling is a nice detail. Next to the foyer, an office offers versatility. The primary suite gives you private access to the rear porch. We love the handy mudroom just off the three-car garage. Don’t miss the flexible loft.
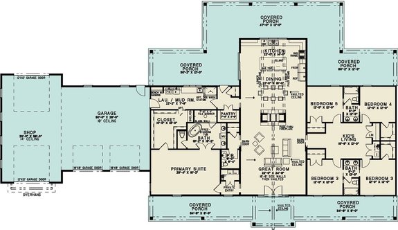
Contemporary Barndominium Plan
Contemporary Barndominium Plan - Front Exterior
Contemporary Barndominium Plan - Main Level
Contemporary Barndominium Plan - Upper Level
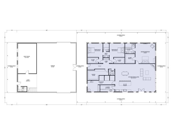
We are head-over-heels for this sleek barndominium plan. Ready for a view? Check out the porch, which wraps around the entire perimeter of the home. Inside, the contemporary layout combines style and function with an open floor plan.
An island in the kitchen seats up to six. The primary suite, as well as each bedroom, boasts a walk-in closet. Here’s a nice amenity: the four-car garage features a lobby, a loft, and a craft room.
ADU Plan with Barn Style
ADU Plan with Barn Style - Front Exterior
ADU Plan with Barn Style - Main Level
ADU Plan with Barn Style - Upper Level
This barn-inspired ADU (accessory dwelling unit) plan maximizes space despite its modest size. The main level gives you a drive-thru area for tractor storage. To the left, you’ll find two stalls, a tack room, and hay storage.
On the right side of the plan, the living room effortlessly connects to the open kitchen, creating an airy vibe. A bedroom, a full bath, and a hay loft complete this design.
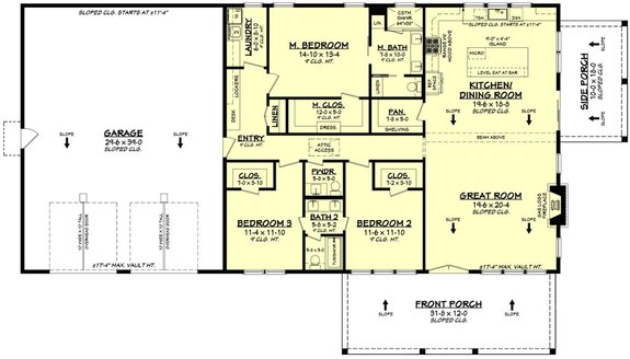
Simple Barndo Plan
Simple Barndo Plan - Front Exterior
Simple Barndo Plan - Main Level
A four-corner footprint makes this simple 1,792-square-foot barndo plan an affordable option. A large island kitchen opens to the living room and the dining area. A walk-in closet highlights the primary suite, along with two sinks, a big shower, and direct access to the utility room.
Two additional bedrooms share a hall bath on the left side of the plan. Building on a scenic lot? Take in the view from the rear covered porch.
Luxe Barndominium Plan
Luxe Barndominium Plan - Front Exterior
Luxe Barndominium Plan - Main Level
Looking for a luxury design? Check out this barndominium plan. You’ll find ample room for storage in the four-car garage, which includes a dedicated shop area.
Covered front and rear porches provide shaded areas for relaxation. Inside, the open-concept layout features a vaulted ceiling for added drama. The kitchen island, complete with a bar top, offers casual dining. We love the pass-through fireplace that connects the great room to the dining area. Don’t miss the show-stopping primary suite!
Barn-Inspired Ranch Plan
Barn-Inspired Ranch Plan - Front Exterior
Barn-Inspired Ranch Plan - Main Level
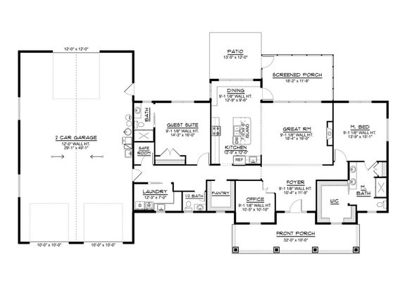
Dreaming of the perfect barndominium? This design delivers! The open layout fosters a relaxed atmosphere, with the kitchen island effortlessly connecting to the great room. Nearby, a built-in bench offers extra seating in the dining nook.
Next to the foyer, an office gives you a quiet place to get work done. We are swooning over the extra-spacious closet in the primary suite. A guest suite rests on the left side of the plan. Store up to four vehicles in the generous garage. Don’t miss the lovely screened porch at the back of the plan.
Barndominium Plan with Shop
Barndominium Plan with Shop - Front Exterior
Brandminium Plan with Shop - Main Level
Barndominium Plan with Shop - Upper Level
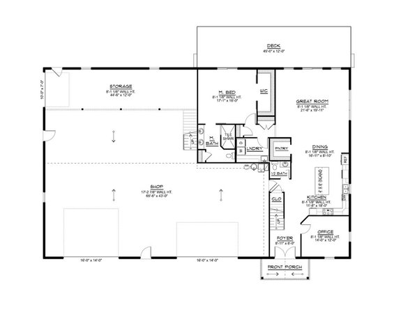
This hardworking barndominium plan blends functionality with style. The spacious three-car garage includes a large shop area, dedicated storage space, and a versatile loft. Inside, the great room flows nicely into the dining area and the kitchen, where an island offers extra room for meal prep.
A walk-in pantry keeps groceries neat and organized. Ideal for aging in place, the main-level primary suite gives you a big closet, two sinks, and a large shower. The laundry room is conveniently located nearby. Upstairs, both secondary bedrooms feature walk-in closets. Enjoy outdoor living on the rear deck.
See our collection of barndominiums with shops here.
Budget-Friendly Barndo Plan
Budget-Friendly Barndo Plan - Front Exterior
Budget-Friendly Barndo Plan - Main Level
In the market for a budget-friendly design? You’re in luck. This small barndominium plan (888 square feet) delivers style and simplicity with a four-corner footprint. A wraparound porch extends the living space and adds shaded comfort.
Inside, the L-shaped kitchen opens seamlessly to the dining nook and the living room. Two bedrooms and a full bath enjoy privacy at the back of the plan. The two-car garage with shop is a welcome detail.
Barndominium Plan with Flex Room
Barndominium Plan with Flex Room - Front Exterior
Barndominium Plan with Flex Room - Main Level
Take a look at this eye-catching three-bedroom barndominium plan. A cathedral ceiling highlights the fireplace-warmed great room. Nearby, the U-shaped kitchen gives you plenty of grocery storage with a walk-in pantry.
Check out the custom shower and the free-standing tub in the primary suite. Two secondary bedrooms rest at the front of the plan. Next to the foyer, a flex room opens up all kinds of possibilities. Front and rear wraparound porches offer plenty of room for outdoor enjoyment. A two-car garage with a workshop rounds out this design.
Explore our collection of three-bedroom barndominiums here.
Modern Barndo Plan
Modern Barndo Plan - Front Exterior
Modern Barndo Plan - Main Level
Take a gander at this rustic retreat. A four-corner footprint and a shed roof offer modern appeal, while board-and-batten siding and two porches deliver barn-inspired curb appeal. Inside, the cozy great room, complete with a sloped ceiling and a fireplace, flows into the island kitchen.
Each bedroom boasts convenience with a walk-in closet, including the private primary suite. You’ll find plenty of thoughtful details throughout, like a handy mudroom (equipped with lockers and a built-in desk) and a two-car garage.
Dedicated Storage
Dedicated Storage - Front Exterior
Dedicated Storage - Main Level
Dedicated Storage - Upper Level
Timeless charm meets modern luxury with this barndominium design. On the first floor, an office gives you a quiet place to work and features dedicated storage space. Nearby, the two-story living room opens to the kitchen and the dining area.
An island seats up to four and offers extra counter space. The main-level primary suite shines with an extra-spacious walk-in closet, two sinks, and a large shower. Upstairs, three more bedrooms (each with a walk-in closet) share a full bath on the second level. You’ll also find a family room and a storage room on this level.
Rustic Plan with Screened Porch
Rustic Plan with Screened Porch - Front Exterior
Rustic Plan with Screened Porch - Main Level
This rustic barndominium plan is all about modern living. The wraparound screened porch keeps the bugs at bay. The super-open layout places the vaulted great room, the island kitchen, and the dining area in one shared space.
Nestled at the back of the plan, the primary suite enjoys privacy and a spa-like bath. We love the hardworking utility room. Need room for projects? Check out the three-car garage.
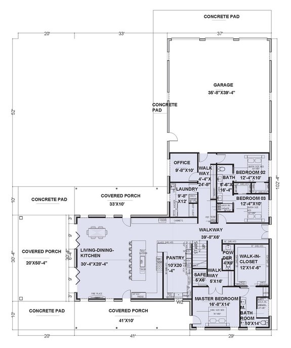
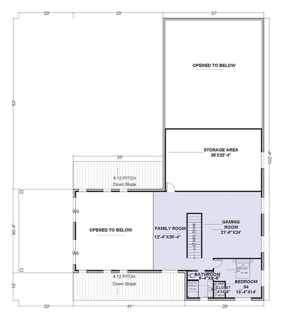
Versatile Rooms
Versatile Rooms - Front Exterior
Hello gorgeous! This barndominium offers versatility with a gaming room and a family room on the second level. The first floor gives you an open layout between the main gathering areas. In the kitchen, an island seats up to seven, offering ample room for relaxed dining.
Check out the sizable pantry, which features a dishwasher, a fridge, a freezer, and shelves. In the living room, two sets of accordion doors open to a covered porch. Highlights of the primary suite include a walk-in shower with a bench and an extra-large closet.
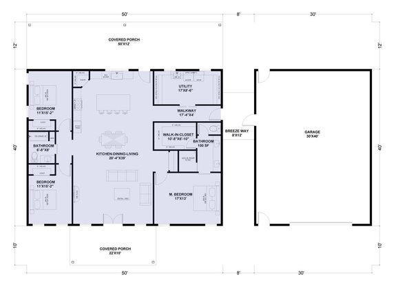
Barndo Plan with Breezeway
Barndo Plan with Breezeway - Front Exterior
Barndo Plan with Breezeway - Main Level
From the metal gable roof to the inviting front porch, this barndominium plan is full of charm. Inside, the open floor plan creates an airy vibe between the kitchen, the dining area, and the living room. On the right side of the plan, the primary suite showcases two sinks, a generous shower, and a spacious closet.
The laundry room is conveniently close by. Two additional bedrooms wait on the left. A breezeway connects to the two-car garage. Relax on the large back porch.
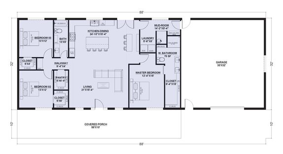
Barndominium Plan with Four-Car Garage
Barndominium Plan with Four-Car Garage - Front Exterior
Barndominium Plan with Four-Car Garage - Main Level
Here’s a small barndominium plan that boasts plenty of room for outdoor living with a welcoming front porch and a rear patio. Inside, the kitchen takes center stage with an island and a walk-in pantry. Nearby, a tray ceiling highlights the great room.
Two bedrooms share a hall bath on the left side of the plan. The primary suite and the laundry room rest on the right. Don’t miss the four-car garage.
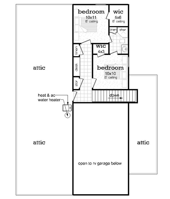
Timeless Barn Style
Timeless Barn Style - Front Exterior
Timeless Barn Style - Main Level
Timeless Barn Style - Upper Level
Check out this timeless barndominium design. The spacious garage gives you room for an RV. The living room, the dining area, and the U-shaped kitchen sit at the heart of the home.
Making it easy to age in place, the primary suite is located on the main level. Two more bedrooms (each with a walk-in closet) share a bathroom upstairs. The carport is a nice detail.
Cozy Barndominium with 1,200 Sq. Ft.
Cozy Barndominium with 1,200 Sq. Ft. - Front Exterior
Cozy Barndominium with 1,200 Sq. Ft. - Main Level
This cozy barndo plan encourages modern living with a thoughtful layout. For example, the living room, the dining area, and the kitchen share one open space. An island provides additional seating and room for meal prep.
Note the sizable walk-in closet in the bedroom suite. Front and rear porches extend the living space and deliver outdoor enjoyment.
Affordable Barndo Design
Affordable Barndo Design - Front Exterior
Affordable Barndo Design - Main Level
The exterior of this three-bedroom barndo design exudes modern style with sleek lines. A welcoming front porch adds rustic charm. The uncomplicated layout makes this plan an affordable option. Highlights include an organized pantry, a luxe primary suite, and a handy mudroom.
Country Vibe
Country Vibe - Front Exterior
Here’s another design with country curb appeal. Attractive details include a gable roof, board-and-batten siding, and a front porch. Inside, the layout is relaxed, with the vaulted great room opening to the island kitchen. Check out the four-car garage, the office, and the gym on the first level.
Barn-Like Garage Apartment Plan
Barn-Like Garage Apartment Plan - Front Exterior
Barn-Like Garage Apartment Plan - Main Level
Barn-Like Garage Apartment Plan - Upper Level
Looking to add value to your property? Check out this garage apartment plan. The barn-like exterior metal roof accents, wood details, board-and-batten siding, and a gable roof.
A covered patio provides space for outdoor living. The first level gives you a three-car garage. Upstairs, an island in the kitchen serves the open living room. In the pantry, shelves keep groceries tidy.
Uncomplicated Layout
Uncomplicated Layout - Front Exterior
Uncomplicated Layout - Main Level
Here’s a barndominium plan that delivers an uncomplicated layout without skimping on style. The semi-open layout of the main living spaces makes it easy to entertain. The kitchen shines with a large island.
A fireplace adds cozy ambiance and warms the great room when the weather is chilly. Store up to two vehicles in the garage. We love the wet room in the primary suite.
Modest Barndominium Plan
Modest Barndominium Plan - Front Exterior
Modest Barndominium Plan - Main Level
This modest barndominium plan lives large with clever details. For example, an open layout between the main living areas makes the space feel larger than it is. A vaulted ceiling creates a breezy vibe and draws the eye up.
The country kitchen features a big island that seats up to four. A mudroom with a bench and hooks keeps items organized on the way in from the garage. Front and rear porches create indoor/outdoor living.
Plenty of Storage
Plenty of Storage - Front Exterior
Plenty of Storage - Main Level
An island kitchen is the star of this clever barndominium design. The extra-spacious pantry comes equipped with cabinets and shelves. Featuring a wood-burning fireplace, the vaulted great room and the dining area wait close by.
Here’s a nice detail: the primary suite boasts a custom shower with a seat. Other special amenities include a three-car garage with storage, a mudroom with lockers, and a wraparound porch.
Barndo Plan with Gambrel Roof
Barndo Plan with Gambrel Roof - Front Exterior
Barndo Plan with Gambrel Roof - Main Level
Barndo Plan with Gambrel Roof - Upper Level
Here’s a two-story plan that exudes country charm with thoughtful amenities and barndominium features (like a gambrel roof and a wide front porch). The kitchen impresses with a coffee bar, a large island, and a walk-in pantry. A buffet sits between the dining room and the vaulted great room.
Next to the foyer, a fireplace warms the morning room, while a study waits close by. The first-floor primary suite delivers luxury with a generous closet with built-ins, a fireplace, and a spa-like bath. Three more bedrooms (one of them a suite) wait on the second level. Want room for special guests or perhaps even tenants? Finish the apartment over the garage.



