Blog Home > Welcoming Barndominiums with Basement Plans

The Houseplans Blog

Welcoming Barndominiums with Basement Plans

Browse these four barndominiums with basement plans.

Hero Image

October 19, 2023

Livabl Brand

Can't find what you're looking for?

Give us a call below or reach out and we’ll make sure to be in contact!

Send Us a Message

By Devin Uriarte

There are so many advantages to choosing a floor plan that includes a basement level. Basements can offer additional living space, increased storage options, and even have the potential for extra income. These four barndominium house plans have stunning curb appeal and are very welcoming as they all include eye-catching entryways.

Browse the full collection of barndominium house plans here.

Barndominium Plan with Basement and Covered Patio Barndominium Plan with Basement and Covered Patio Barndominium Plan with Basement and Covered Patio - Front Exterior

Barndominium Plan with Basement and Covered Patio Barndominium Plan with Basement and Covered Patio - Main Floor

Barndominium Plan with Basement and Covered Patio Barndominium Plan with Basement and Covered Patio - Basement Plan

You'll love hosting game days in the spacious basement, where there’s a full wet bar and walk-in pantry for snacks. Great indoor-outdoor flow can be achieved by opening the French doors to the patio. There’s even a separate storage area that opens to the backyard to keep things organized. Also, downstairs there are two guest bedrooms and a convenient exercise room.

Simple Barndominium with Basement Plan Simple Barndominium with Basement Plan Simple Barndominium with Basement Plan - Front Exterior

Simple Barndominium with Basement Plan Simple Barndominium with Basement Plan - Main Floor

Simple Barndominium with Basement Plan Simple Barndominium with Basement Plan - Basement Plan

The simple and open layout of this barndominium makes it extremely welcoming. A sizeable island sits in the kitchen and provides an excellent space for guests to gather around. The two guest rooms and primary suite sit on the main floor, and each has its own personal walk-in closet. Connected to the two-car garage are some unique features to this barndominium plan: a storage closet, a rec area, and a safe room. For even more storage, the basement plan offers a second garage.

Barndominium with Basement Plan and Wraparound Deck Barndominium with Basement Plan and Wraparound Deck Barndominium with Basement Plan and Wraparound Deck - Front Exterior

Barndominium with Basement Plan and Wraparound Deck Barndominium with Basement Plan and Wraparound Deck - Main Floor

Barndominium with Basement Plan and Wraparound Deck Barndominium with Basement Plan and Wraparound Deck - Second Floor Plan

Barndominium with Basement Plan and Wraparound Deck Barndominium with Basement Plan and Wraparound Deck - Basement Plan

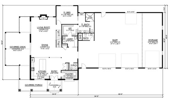
This barndominium house plan is serving up some eye-catching curb appeal with its massive wraparound deck. What’s even more eye-catching is the spacious three-car garage with an attached workshop and office. The covered deck loops back around to the welcoming front porch with a cathedral ceiling. Sliding glass doors in the great room provide excellent indoor-outdoor flow. The primary suite is conveniently located on the main floor, while two more bedrooms await guests upstairs. Head to the basement for extra storage and access to the covered patio.

Barndominium Style Plan with Basement Barndominium Style Plan with Basement Barndominium Style Plan with Basement - Front Exterior

Barndominium Style Plan with Basement Barndominium Style Plan with Basement - Main Floor

Barndominium Style Plan with Basement Barndominium Style Plan with Basement - Second Floor Plan

Barndominium Style Plan with Basement Barndominium Style Plan with Basement - Basement Plan

What we love most about this barndominium plan is the stunning wraparound porch/deck. The overall curb appeal and main entrance feels welcoming with its rustic details. Through the front door you immediately step into the open kitchen with a convenient walk-in pantry nearby. Sliding glass doors in the dining and living room open to the wraparound deck, letting in lots of natural light and creating indoor-outdoor flow. Attached to the main floor is the jaw-dropping, huge garage with an attached workshop and bathroom. There’s a basement downstairs that is unfinished so owners can have full creative freedom based on their specific needs.

Browse the full collection of barndominium house plans here.

Get Our Newsletter

Be the first to see new plans, special offers, and more.

By signing up for our newsletter, you agree to our Terms & Conditions and Privacy Policy, for an account

Blog Subscribe Icon