Blog Home > What Does 5,000 Square Feet Look Like?

The Houseplans Blog

What Does 5,000 Square Feet Look Like?

What does 5,000 square feet look like? Find out here!

Hero Image

April 26, 2024

Livabl Brand

Can't find what you're looking for?

Give us a call below or reach out and we’ll make sure to be in contact!

Send Us a Message

By Courtney Pittman

What does 5,000 square feet look like? These plans include flexible spaces, upscale amenities, kitchen islands with lots of seating, and more. Oh, and head-turning exteriors. Here are eight plans (all around 5,000 square feet) that give you plenty of room to grow with streamlined layouts and comfortable rooms.

Browse our 5,000 square foot plan collection here.

Large Farmhouse Plan Large Farmhouse Plan Large Farmhouse Plan - Front Exterior

Large Farmhouse Plan Large Farmhouse Plan - Main Level

Large Farmhouse Plan Large Farmhouse Plan - Upper Level

This four-bedroom farmhouse plan gives you lots of flexibility with a gym, a media room, and a bonus room (counted in the 4,704-square-foot living space). We love the organized mudroom and the hardworking pantry. At the center of the plan, the island kitchen flows seamlessly into the great room and the dining nook.

Out back, a partially-covered patio is ready for relaxation. The main-level primary suite features two walk-in closets and access to a private outdoor space. Three additional bedroom suites wait on the second level.

Farm Style Plan with Three-Car Garage Farm Style Plan with Three-Car Garage Farm Style Plan with Three-Car Garage - Front Exterior

Farm Style Plan with Three-Car Garage Farm Style Plan with Three-Car Garage - Main Level

Farm Style Plan with Three-Car Garage Farm Style Plan with Three-Car Garage - Upper Level

This farm style design gives you all the essentials with a modern floor plan. The well-equipped kitchen offers plenty of room for meal prep thanks to the sizable island and lots of counter space. A bedroom suite and a home office live on the right side of the plan.

Upstairs, the primary suite enjoys a large closet, a luxe bathroom, and access to a private covered deck. The laundry room sits conveniently nearby. Two more bedroom suites round out this level. Don’t miss the bonus room, the handy mudroom, and the three-car garage.

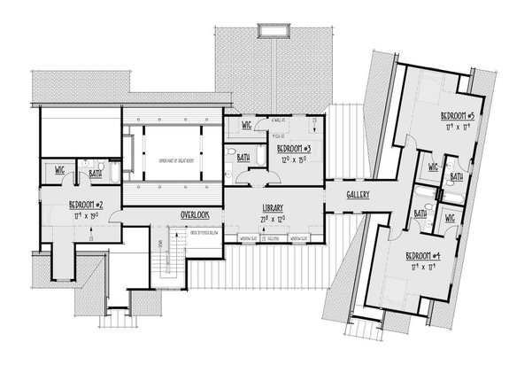
Five-Bedroom Plan with Library Five-Bedroom Plan with Library Five-Bedroom Plan with Library - Front Exterior

Five-Bedroom Plan with Library Five-Bedroom Plan with Library - Main Level

Five-Bedroom Plan with Library Five-Bedroom Plan with Library - Upper Level

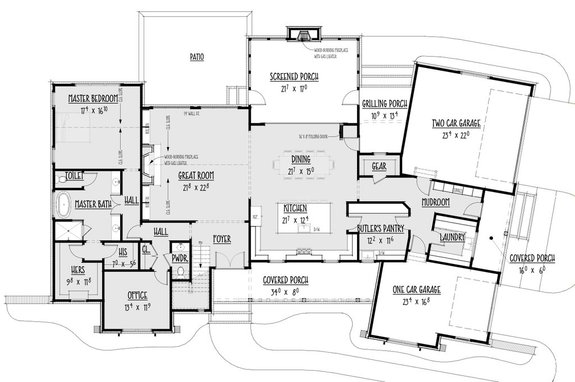
This five-bedroom farmhouse plan grabs your attention with country curb appeal and lots of extras. A spacious butler’s pantry sits near the island kitchen and features two entrances, a sink, and plenty of counter space. Cubbies keep items organized in the handy mudroom, while a gear closet waits close by.

Don’t miss the fireplace-warmed screened porch. Other outdoor areas include a generous back patio, a covered front porch, and a grilling porch. Tucked away in the left wing of the plan, the first-floor primary suite includes two walk-in closets and a luxurious bathroom. Four more bedroom suites and a home library complete the second level.

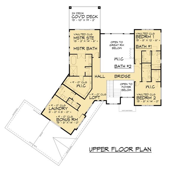
Modern Design with Outdoor Living Modern Design with Outdoor Living Modern Design with Outdoor Living - Front Exterior

Modern Design with Outdoor Living Modern Design with Outdoor Living - Main Level

Modern Design with Outdoor Living Modern Design with Outdoor Living - Upper Level

Stylish and cool, this modern design makes an impression inside and out. Check out the welcoming wraparound porch and the metal roof accents. The floor plan boasts an island kitchen that opens to the dining nook and the vaulted living room. The primary suite shines with an extra-large closet and a private porch.

You’ll find lots of room for storage in the four-car garage. Finish the 867-square-foot second level (part of the 4,827 total) if you want versatile space.

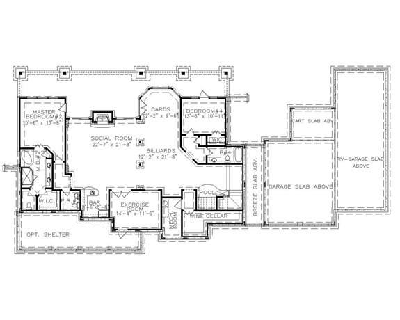
Ranch Plan with RV Garage Ranch Plan with RV Garage Ranch Plan with RV Garage - Front Exterior

Ranch Plan with RV Garage Ranch Plan with RV Garage - Main Level

Ranch Plan with RV Garage Ranch Plan with RV Garage - Upper Level

Here’s a ranch house plan with great outdoor living. In the great room, sliding glass doors open to a vaulted covered patio that features a fireplace and a BBQ space. Enjoy relaxed meals at the kitchen island, which gives you an eating bar.

Don’t miss the cool wine room next to the dining nook. Other highlights include a well-designed craft room (with a built-in desk and island), an exercise room, a butler’s pantry, and a large garage with room for an RV. Oh, and the versatile play room and the bunk room upstairs.

Country House Plan with Basement Country House Plan with Basement Country House Plan with Basement - Front Exterior

Country House Plan with Basement Country House Plan with Basement - Main Level

Country House Plan with Basement Country House Plan with Basement - Lower Level

This country house plan greets you with three dormer windows above the wide front porch. An organic flow between the main living spaces creates a breezy vibe. Check out the double-sided fireplace between the vaulted lodge room and the rear covered porch. There’s room for an RV and a golf cart in the three-car garage.

The primary suite enjoys privacy on the left side of the plan, while a secondary bedroom suite sits on the right. The lower level includes: a second primary suite, an additional bedroom, a large social room, a wine cellar, and more.

Contemporary Plan with Two Offices Contemporary Plan with Two Offices Contemporary Plan with Two Offices - Front Exterior

Contemporary Plan with Two Offices Contemporary Plan with Two Offices - Main Level

Contemporary Plan with Two Offices Contemporary Plan with Two Offices - Upper Level

Clocking in just over 5,000 square feet, this contemporary house plan stands out with not one, but two home offices. Cooking is made easy in the spacious island kitchen, which opens effortlessly to the vaulted family room. A mudroom with lockers keeps things tidy on the way in from either the two-car garage or the three-car garage.

The jaw-dropping primary suite shows off an extra-large closet with an island and convenient access to the laundry room. Don’t miss the outdoor kitchen and the flexible rec room.

Explore more 5,000 square foot plans.

Get Our Newsletter

Be the first to see new plans, special offers, and more.

By signing up for our newsletter, you agree to our Terms & Conditions and Privacy Policy, for an account

Blog Subscribe Icon