Blog Home > What is a Ranch Style House?

The Houseplans Blog

What is a Ranch Style House?

What is a ranch style house? Find out here!

Hero Image

June 20, 2024

Livabl Brand

Can't find what you're looking for?

Give us a call below or reach out and we’ll make sure to be in contact!

Send Us a Message

By Courtney Pittman

What is a ranch style house? This popular design style turns heads with streamlined layouts and a wide profile. Typically a single story (with a low-pitched roof), ranch house plans can be great for aging in place and accessible living. They also include indoor/outdoor living areas, simple exteriors, and open-concept floor plans. These eight designs do a great job at showcasing the ranch style.

Discover our ranch house plans collection here.

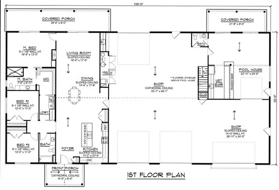
Ranch Plan with Barn Style Ranch Plan with Barn Style Ranch Plan with Barn Style - Front Exterior

Ranch Plan with Barn Style Ranch Plan with Barn Style - Main Level

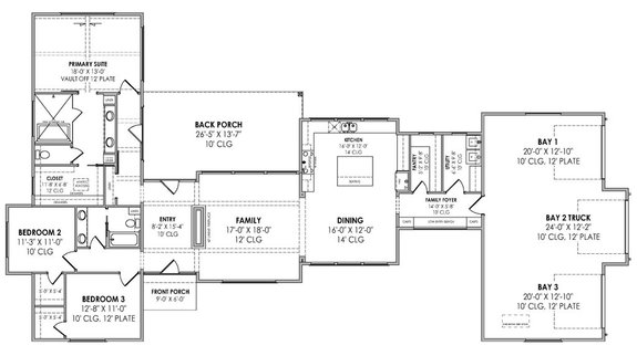
Inspired by the timeless barndominium look, this ranch house plan gives you a massive garage with a workshop, along with a unique pool house! The super-open layout includes an island kitchen, a dining area, and a living room. Two sets of sliding glass doors (one in the primary suite and one in the living room) open to the rear covered porch.

For extra convenience, the primary suite features direct access to the laundry room. Here’s a fun detail: a pool house (complete with a wet bar) sits on the right side of the plan.

Farmhouse Ranch Plan Farmhouse Ranch Plan Farmhouse Ranch Plan - Front Exterior

Farmhouse Ranch Plan Farmhouse Ranch Plan - Main Level

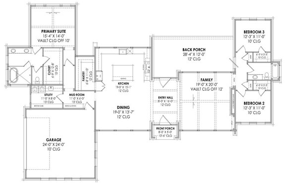
Hello curb appeal! This ranch beauty delivers farmhouse style with a wide front porch, board-and-batten siding, and barn-style lighting. Inside, the deluxe primary suite treats you to a big shower and a walk-in closet with access to the laundry room.

In the island kitchen, the walk-in pantry shows off a stylish barn door, while a butler's pantry offers extra storage. The spacious living room opens to the rear porch, which features an outdoor kitchen.

Click through to see photos!

Modern Design with Three-Car Garage Modern Design with Three-Car Garage Modern Design with Three-Car Garage - Front Exterior

Modern Design with Three-Car Garage Modern Design with Three-Car Garage - Main Level

Here’s a modern ranch design with a sleek exterior and an impressive interior to match. An island in the kitchen gives you plenty of room for meal prep and enjoying casual meals. A generous pantry waits nearby.

Every bedroom features a walk-in closet, including the primary suite, which also wows with a wet room (where the tub is in with the shower). Unwind on the large back porch.

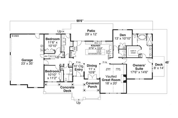
Ranch House Plan with Bonus Room Ranch House Plan with Bonus Room Ranch House Plan with Bonus Room - Front Exterior

Ranch House Plan with Bonus Room Ranch House Plan with Bonus Room - Main Level

Ranch House Plan with Bonus Room Ranch House Plan with Bonus Room - Upper Level

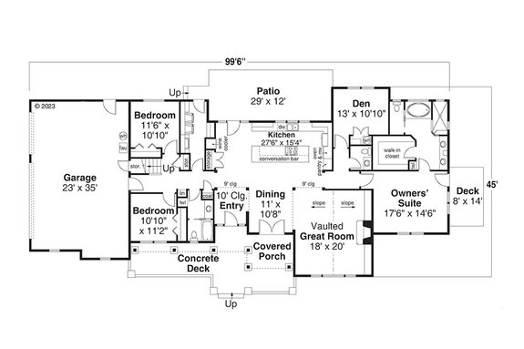
This lovely ranch house plan offers three bedrooms and an easygoing layout. The spacious kitchen gives you a large island with an eating bar. A fireplace warms the vaulted great room. The primary suite enjoys a spa-like bathroom and access to a private deck. Flexible spaces include a den on this level and a bonus room on the second level.

Modern House Plan with Big Pantry Modern House Plan with Big Pantry Modern House Plan with Big Pantry - Front Exterior

Modern House Plan with Big Pantry Modern House Plan with Big Pantry - Main Level

Here’s a modern ranch house plan that delivers contemporary charm with clean lines and a wall of windows in the main living areas. The vaulted family room flows nicely into the dining area and the island kitchen. Check out the large walk-in pantry. A tub-shower in the primary suite invites you to relax in style. Don’t miss the two-car garage, the sizable back porch, and the handy mudroom.

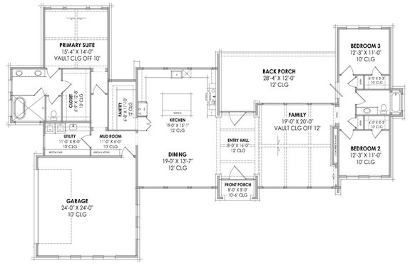
Ranch Design with Big Back Porch Ranch Design with Big Back Porch Ranch Design with Big Back Porch - Front Exterior

Ranch Design with Big Back Porch Ranch Design with Big Back Porch - Main Level

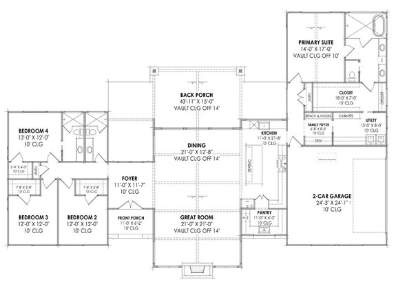
Front and rear porches add outdoor living to this ranch design. The primary suite enjoys privacy and a walk-in closet in the left wing of the plan. On the other side of the home, three more bedrooms share a hall bath.

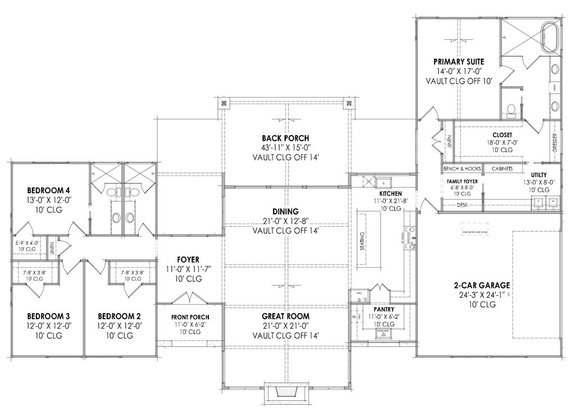
Four-Bedroom Modern House Plan Four-Bedroom Modern House Plan Four-Bedroom Modern House Plan - Front Exterior

Four-Bedroom Modern House Plan Four-Bedroom Modern House Plan - Main Level

This four-bedroom plan features floor-to-ceiling windows and a vaulted ceiling in the main living areas. The open kitchen encourages relaxed living with an island that overlooks the dining area. The luxurious primary suite shines with a generous walk-in closet (that opens to the laundry room) and a large wet room. All three secondary bedrooms come equipped with a walk-in closet.

Stunning House Plan with Office Stunning House Plan with Office Stunning House Plan with Office - Front Exterior

Stunning House Plan with Office Stunning House Plan with Office - Main Level

Looking for a ranch house plan with chic curb appeal? This design does the job nicely. We love the sleek metal roof. An open dining area sits between the great room and the island kitchen.

French doors lead to the huge rear porch and outdoor kitchen. There’s plenty of room for storage in the two-car garage. The primary suite, two additional bedroom suites, and a versatile office complete this plan.

Explore more ranch house plans.

Get Our Newsletter

Be the first to see new plans, special offers, and more.

By signing up for our newsletter, you agree to our Terms & Conditions and Privacy Policy, for an account

Blog Subscribe Icon