Looking for a house plan that won’t break the bank? We’ve got you covered. These affordable house plans keep costs in check with modest footprints, smart material choices, open layouts, and more. Whether you’re drawn to the charm of a modern farmhouse or the sleek look of a contemporary build, you’ll find plenty of budget-friendly plans in our round-up below (plus some helpful tips for designing smart and saving big).
See our collection of affordable house plans here.
We caught up with Sarah Bonnarens, Director of Economic Research at Zonda (our parent company), to talk through what’s shaping today’s housing market. She shared a few insights worth paying attention to.
Learn more about Zonda's research here.
The Median New Home Size and Price
Home sizes have been quietly trending down over the past few years. Since January 2019, the average has dipped 4.7%, landing around 2,200 square feet as of December. Looking across the top 50 markets, the pattern holds steady: a 4.4% decline overall, with some areas seeing sharper shifts. Columbia, SC stands out the most, with the average home size having dropped by a notable 21%.


A look at the latest Zonda data shows new home prices averaging $400.5K as of January 2026, with most major markets cooling off from their peak levels. In fact, across the top 50 housing markets, prices have pulled back everywhere except Richmond and Cincinnati.


Today’s homeowners are trading excess square footage for smarter layouts, flexible spaces, and thoughtful design that makes every inch count – proving that less space can still deliver plenty of comfort, style, and function.
Curious what it really costs to build a small house? Check out this blog for the full breakdown.
Design Smarts: Stylish Ways to Save
Builders are getting more strategic with how they design homes. It’s about building smaller and smarter. "To improve affordability down the road (and therefore boost buyer demand), some are prioritizing energy efficiency via things like insulation and window performance," Bonnarens adds.
To keep costs down and demand up, many are focusing on energy efficiency. Better insulation and high-performance windows help lower long-term expenses.
Flexibility is also driving design decisions. Smaller floor plans are being reworked to do more with less. Instead of single-use rooms, buyers are looking for spaces that can adapt over time.
Look for:
-
Flex spaces over formal rooms: office, storage, or hobby use instead of an extra bedroom
-
Open-concept layouts: fewer walls, lower costs, and a more spacious feel
-
Smarter square footage: smaller homes that live larger
-
Energy-efficient features: long-term savings built in
Some of Our Favorite Affordable Home Plans to Build
Now, take a look at some of our favorite affordable house plans below to see these ideas come to life.
Super-Open Craftsman Plan
Super-Open Craftsman Plan - Front Exterior
Super-Open Craftsman Plan - Main Level
This Craftsman house plan keeps things breezy with an open layout and thoughtful touches throughout. The charming front porch and classic board-and-batten siding set a warm, welcoming tone from the start. Inside, an L-shaped kitchen with a roomy island makes meal prep feel effortless, while the open dining area flows right into a vaulted living room built for gathering.
Three bedrooms (including the primary suite) are tucked away on the left side of the plan for privacy. A second bedroom suite near the foyer offers a perfect setup for guests. Don’t miss the two-car garage and the spacious back porch.
Looking to build a smaller home? See what the data shows here.
One-Bed Cabin Design
One-Bed Cabin Design - Front Exterior
One-Bed Cabin Design - Main Level
A four-corner footprint makes this cabin house plan a builder-friendly option. The exterior pairs a classic metal roof with board-and-batten siding for timeless charm. Inside, a spacious kitchen island seats up to five and opens to the living room for easy serving.
The primary suite feels like a retreat, complete with a generous walk-in closet, dual sinks, and sliding glass doors. Just off the garage, a well-placed mudroom keeps items tidy.
Tiny Farmhouse Plan
Tiny Farmhouse Plan - Front Exterior
Tiny Farmhouse Plan - Main Level
Farmhouse style continues to hold its ground – and honestly, we’re all in. Board-and-batten siding pairs with natural wood accents and a metal gable roof, creating a palette that’s both timeless and quietly refined.
Inside, the modest footprint lives larger than expected, thanks to an airy open layout and a vaulted ceiling that lifts the entire space. Front and rear porches further expand the living area, blurring the line between indoors and out.
See our collection of simple house plans here.
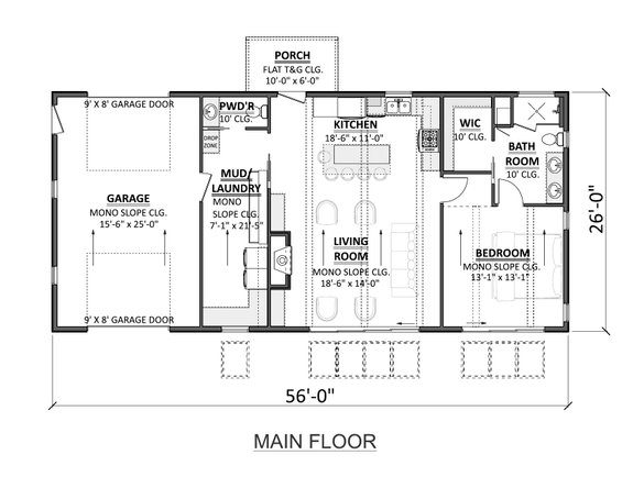
Simple Barndominium Plan
Simple Barndominium Plan - Front Exterior
Simple Barndominium Plan - Main Level
This eye-catching barndominium house plan is a budget-friendly option thanks to its four-corner footprint. A charming front porch sets the tone and delivers a welcoming vibe. The super-open layout offers effortless living.
A cathedral ceiling brings character to the main living areas, while the kitchen's peninsula is ready for casual meals. The primary suite feels like a retreat with dual sinks and a walk-in closet, while a spacious three-car garage and covered back patio round things out with plenty of room to work, relax, and entertain.
Explore our collection of 2 bedroom house plans here.
Modern Duplex Plan
Modern Duplex Plan - Front Exterior
Modern Duplex Plan - Main Level
Modern Duplex Plan - Upper Level
Stucco siding and a shed roof deliver contemporary curb appeal to this modern duplex plan. Each unit shows off an open layout that feels bright and airy. The main living areas are located at the front of each plan, while a bedroom and a full bath wait at the back.
Extending the living space, French doors open to a spacious deck for easy indoor-outdoor living.
Barndo Plan with Bonus Room
Barndo Plan with Bonus Room - Front Exterior
Barndo Plan with Bonus Room - Main Level
Barndo Plan with Bonus Room - Upper Level
Looking for an affordable house plan that doesn’t skimp on space? This two-story barndo design delivers with a clean four-corner footprint and room to grow. Inside, the open-concept layout includes a generous walk-in pantry and a hardworking laundry room.
Designed with longevity in mind, the main-level primary suite makes aging in place feel effortless, complete with an oversized walk-in closet. Upstairs, two additional bedrooms share a hall bath, while a flexible bonus room adds even more options for work or play. Top it all off with a three-car garage and two levels of outdoor living.
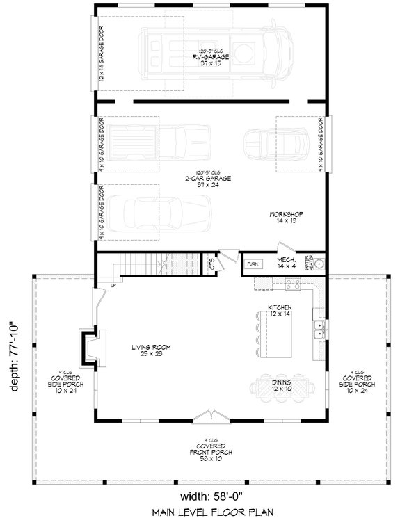
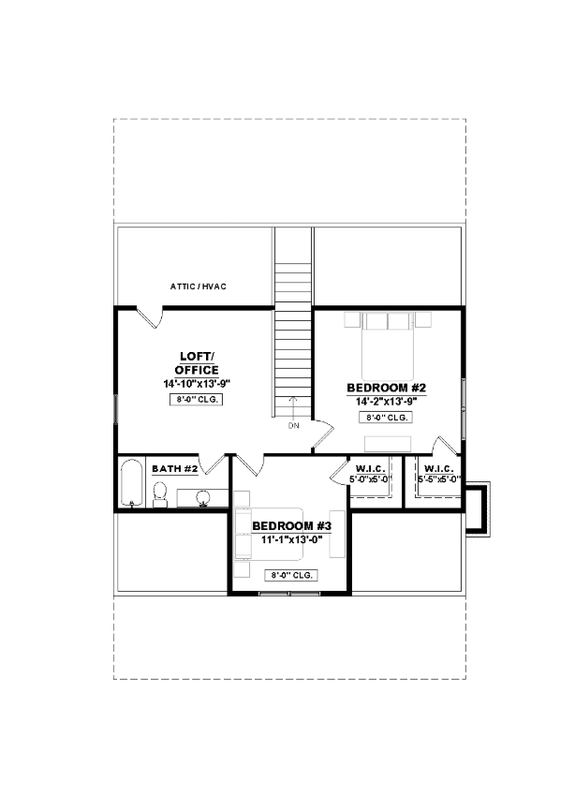
2,000 Square Feet
2,000 Square Feet - Front Exterior
2,000 Square Feet - Main Level
2,000 Square Feet - Upper Level
This swoon-worthy barndominium blends smart design with undeniable style. A striking metal gable roof, classic board-and-batten siding, and a wraparound porch set the tone on the exterior. At the heart of the home, the kitchen shines with a generous island that comfortably seats four. Nearby, the airy living room and the dining nook keep things open and inviting.
The three-car garage gives you plenty of space for an RV and a workshop. Upstairs, you’ll find three bedrooms, including the primary suite, along with a conveniently located laundry room.
Simple Farmhouse Design
Simple Farmhouse Design - Front Exterior
Simple Farmhouse Design - Main Level
Simple Farmhouse Design - Upper Level
Building on a budget? Check out this simple farmhouse plan. Clocking in at 2,000 square feet, this design delivers an open layout and welcoming details. Sit back and relax on the wide front porch.
The fireplace-warmed great room flows nicely into the dining area and the island kitchen. The primary suite is conveniently located on the first floor, while two additional bedrooms are tucked upstairs for privacy. Here’s a fun detail: the versatile loft could be used as an office.