By Courtney Pittman
Looking to build a home that evokes timeless elegance and Old World charm? These castle floor plans blend European luxury with modern living. Iconic elements like steeply pitched roofs, towering turrets, and arched doorways deliver romantic curb appeal. Thoughtfully designed interiors are an added advantage. See our curated selection of castle floor plans below.
Ready to explore? Discover our handpicked collection of castle floor plans here.
European Charm
European Charm - Front Exterior
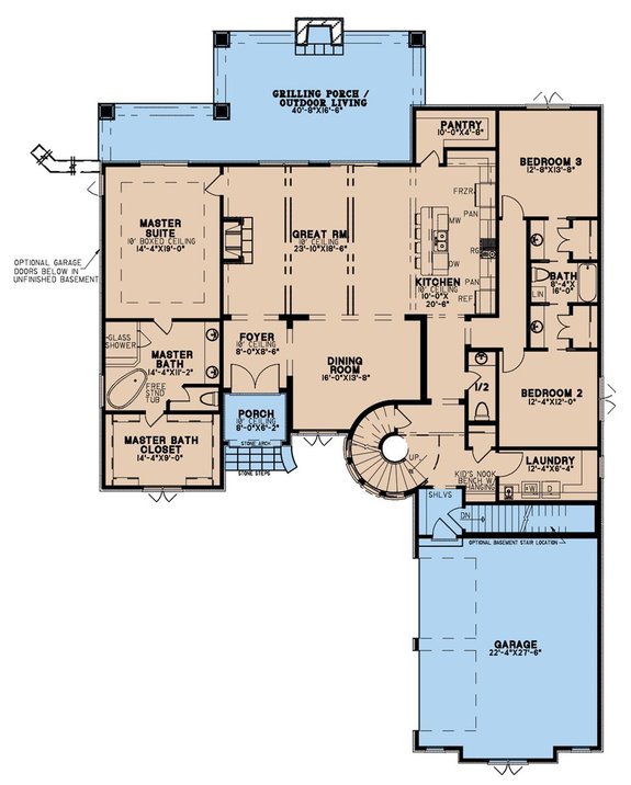
Here’s a stunning castle-feeling house plan that offers modern luxury and thoughtful amenities. For example, the two-story great room flows effortlessly into the island kitchen and the dining nook. The hidden walk-in pantry is a lovely touch.
French doors connect the interior to a covered porch. The mudroom features a bench and hooks for convenience. Upstairs, two bedrooms (each with a walk-in closet) share a hall bath. Nearby, the primary suite impresses with a sitting area, two sizable closets, and a private deck.
Under 2,000 Square Feet
Under 2,000 Square Feet - Front Exterior
Under 2,000 Square Feet - Main Level
Under 2,000 Square Feet - Upper Level
Under 2,000 Square Feet - Lower Level
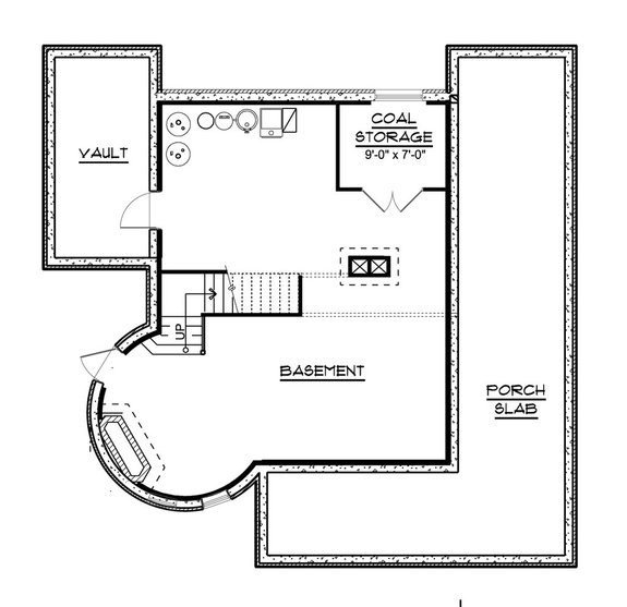
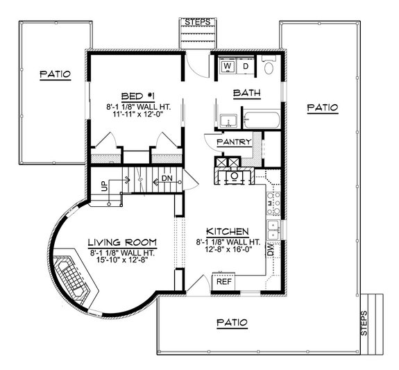
Clocking in at 1,814 square feet, this castle floor plan exudes storybook charm. The U-shaped kitchen gives you a walk-in pantry and opens directly to the fireplace-warmed living room. Note the wraparound patio.
At the back of the plan, a bedroom boasts two closets and access to a private patio. A full bath waits nearby. On the second level, a versatile loft could become an office. Check out the tower! A basement opens up all kinds of opportunities.
Mother-In-Law Suite
Mother-In-Law Suite - Front Exterior
Mother-In-Law Suite - Main Level
Mother-In-Law Suite - Upper Level
Mother-In-Law Suite - Lower Level
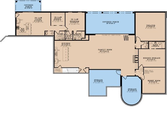
This enchanting castle floor plan encourages modern living with a seamless layout. The open kitchen takes center stage with a generous island and a walk-in pantry. Both a breakfast nook and a formal dining room wait close by. Decorative details like timber beams, cool built-ins, and a fireplace deliver style to the great room.
Accordion doors bring the outdoors in and open to a large grilling porch (with a fireplace). The main-level primary suite impresses with two sizable closets, a big shower with two shower heads, and a separate tub. On the lower level, an in-law suite boasts a U-shaped kitchen, an office, a bedroom, and a private porch. A game room and a guest room wait on the second floor. Other versatile highlights include a second family room, a second kitchen, a theater, a hobby room, and a study.
Luxury Castle Floor Plan
Luxury Castle Floor Plan - Front Exterior
Luxury Castle Floor Plan - Main Level
Luxury Castle Floor Plan - Upper Level
This castle floor plan is all about luxury. The well-equipped kitchen features an extra-large angled island that seats up to ten. Hidden by cabinetry, the walk-in pantry offers convenience with shelves, a sink, a dishwasher, and a swing-away shelf. A masonry fireplace highlights the rear grilling porch.
Located on the main level, the primary suite features a gym, a spa-like bath, and a walk-in closet. Check out the spacious game room and the flexible craft room on the second floor. The four-car garage gives you a shop and room for an RV.
Four-Bedroom Castle Floor Plan
Four-Bedroom Castle Floor Plan - Front Exterior
Four-Bedroom Castle Floor Plan - Main Level
Four-Bedroom Castle Floor Plan - Upper Level
Here’s a romantic castle floor plan that boasts European flair. The thoughtfully designed layout pairs timeless details (like a turret) with a fresh, open floor plan. The island kitchen flows effortlessly into the two-story great room. Nice weather? Head out to the grilling porch at the rear of the home.
A game room on the second level could also be used as a home office if needed. Four bedrooms (including the primary suite), a bonus room, and a two-car garage (with dedicated storage space) complete this design.
Castle House Plan with Office
Castle House Plan with Office - Front Exterior
Castle House Plan with Office - Main Level
Castle House Plan with Office - Upper Level
European charm meets modern comfort in this alluring 3,440-square-foot castle floor plan. We love the steeply pitched rooflines, the classic brick and stucco siding, and the classic turret. The layout inside encourages practicality with an open-concept floor plan.
The gourmet kitchen features a walk-in pantry, a breakfast nook, and an island that serves the great room. Nearby, an office and a game room offer versatility. Keep items organized in the handy mudroom just off the two-car garage. The luxe primary suite, three additional bedrooms, and a TV area rest on the second level.
Castle House Plan with Brick and Stone Curb Appeal
Brick and Stone Curb Appeal - Front Exterior
Castle House Plan with Brick and Stone Curb Appeal - Main Level
Castle House Plan with Brick and Stone Curb Appeal - Upper Level
With its timeless brick facade and soaring rooflines, this European design showcases castle-inspired curb appeal. Flooded with natural light, the two-story living room feels spacious and bright. An angled island in the kitchen opens to the fireplace-warmed family room.
The first-floor primary suite shines with two closets and a sitting area. Three more bedroom suites rest on the second level. Other practical touches: a spacious side-entry three-car garage with ample storage, a library, and an outdoor terrace.
Practical Details
Practical Details - Front Exterior
Practical Details - Main Level
Practical Details - Upper Level
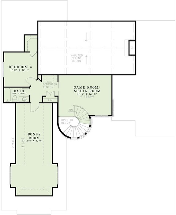
Crowned by steep rooflines and a brick and stone exterior, this castle floor plan delivers an Old World vibe. Anchored by an island, the open kitchen flows seamlessly into the airy great room. Don’t miss the walk-in pantry.
The main-level primary suite offers a private oasis on the left side of the plan, while two secondary bedrooms share a full bath on the right. Enjoy the great outdoors on the rear covered porch (with a fireplace). The second floor hosts a game room/media room.

