Don't lose your saved plans! 
Create an account to access your saves whenever you want. See our Terms & Conditions and Privacy Policy.
OR

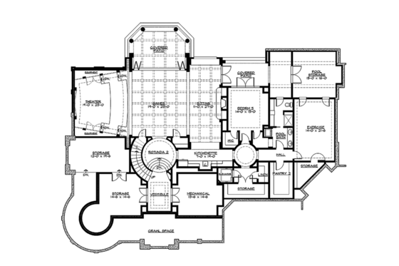
Craftsman House Plan 132-565 11000 Sq Ft, 5 Bed, 5 Bath, 3 Floor, 6 Garage

Key Specs
  • 5
    Beds
  • 5
    Baths
  • 3
    Floors
  • 6
    Garages
  • 11000
    Square Feet
This splendid seaside manor draws upon Shingle-style influences while also providing a thoroughly contemporary layout. The kitchen in particular stands out, with a huge island, plenty of room for informal dining, and easy access via a butler's pantry to the formal dining room. An elevator whisks you upstairs to the jaw-dropping master retreat (highlights include the enormous walk-in closet and a luxurious bathroom). Bedroom three shows off the view with a tower sitting room. More room for guests and fun awaits in the walkout lower level. Don't miss the widow's walk, spacious craft room, and split four-car garage.

Questions on this plan?

New to the process and looking for some help to kick things off? Let us know a bit about your plans and we’ll be happy to help.

Budget & Customization Tools

Modify icon
Customize this Plan
Tell us about your desired changes and we can prepare an estimate.
Cost to Build icon
Cost to Build Report
A personalized estimate based on your location, plan, & materials.
Cost to Build icon
Residential Construction Guide
This downloadable, 26-page guide is full of diagrams and details about plumbing, electrical, and more.

Full specs & Features

Basic Features

Bedrooms: 5
Baths: 5
Stories: 3
Garages: 6

Dimension

Depth: 132'
Height: 33'
Width: 132'

Area

Total: 11000 sq/ft
Basement Living: 3105 sq/ft height 10'
Bonus: 585 sq/ft
First Floor: 3886 sq/ft height 10'
Garage: 3280 sq/ft
Second Floor: 3899 sq/ft height 9'
Storage: 1013 sq/ft
Third Floor: 110 sq/ft height 8'
* Total Square Footage typically only includes conditioned space and does not include garages, porches, bonus rooms, or decks.

Roof

Primary Pitch: 8:12
Roof Framing: Combination Truss/Conventional
Roof Type: Composition
Secondary Pitch: 6:12

Exterior Wall Framing

Exterior Wall Finish: Shingle/Stone
Framing: Wood - 2x6

Bedroom Features

Fireplace
Formal Dining Room
Formal Living Room / Parlor
Split Bedrooms
Upstairs Master Bedrooms
Walk In Closet

Kitchen Features

Breakfast Nook
Butler's Pantry
Kitchen Island
Kitchenette Wet Bar
Walk In Pantry Cabinet Pantry

Additional Room Features

Den Office Study Computer
Exercise Room
Family Room Keeping Room
Hobby Rec Room Game Room
Loft
Main Floor Laundry
Master Sitting Area
Media Room
Mud Room
Open Floor Plan
Storage Area
Upstairs Laundry
Vaulted / Cathedral Ceilings
Wine Cellar
Workshop

Garage Features

Carport Porte Cochere
Detached Garage
Front Entry Garage
Rear Entry Garage
Side Entry Garage

Outdoor Spaces

Balcony
Courtyard
Covered Front Porch
Covered Rear Porch
Deck
Grill Deck Sundeck
Outdoor Fireplace
Wrap Around Porch

More

Wheelchair Adaptable

What's Included

Purchasing a CAD set gives you a multi-build license.

If you are building this plan in the state of Washington, please call us before placing your order. This designer includes the bonus square feet in the total heated living square feet. Plans are typically drawn to ¼” scale and include:
  • Cover Sheet: The cover sheet includes the general notes and building code information, design standards and structural materials specifications required to construct your home.
  • Foundation Plan(s): The foundation plan sheet shows the layout of the crawl space, walk-out basement or slab foundation. The foundation plan includes all necessary notes, dimensions, concrete walls, footing pads, posts, beams, bearing walls, crawlspace vents, footing schedule, steel reinforcing, and structural information. If you require a different foundation type, please contact us for modifications to your plan.
  • Floor Plan(s): Floor plans are horizontal cuts through each floor level of the home, usually at 5' above the floor. The floor plan shows the location of interior and exterior walls, doors, windows, stairs, closets, cabinets, flooring, appliances, plumbing fixtures, fireplaces, posts and beams. Floor plans also indicate vaulted, coffered, or box beam ceilings, cased openings and areas with ceiling soffits.
  • Exterior Elevations: Exterior elevations show all four sides of the house, describing the roofing, siding, and trim materials, doors, windows, roof pitches, skylights, gutters, chimneys, wall heights, finish grade and overall building height.
  • Overhead Roof Plan(s): The roof framing plan shows the geometry of the hips, ridges, valleys, dormers, roof pitches, wall and plate heights, and overhangs. The plan also shows all individual roof framing members, trusses, rafters, beams, skylights, roof vents, gutters, downspouts, skylights, bearing walls under framing members, and point loads. Design loads and weather conditions vary by region. As a result the size, spacing, and layout of all structural elements in this home design may need approval by a structural engineer or code official based on your specific site location.
  • Cross Section(s): Building sections are vertical cuts through the house from the roof to the foundation. The sections illustrate the construction sequence from bottom to top starting with excavation, proceeding up through the foundation, drainage, wall and floor framing, stair framing, roof framing, windows, doors, venting, and exterior and interior finishes. Wall plate heights for each floor are also delineated.
  • Detail Sheet(s): The detail sheet shows building components at large scale as required to explain construction of footings, foundation walls, concrete slabs, framed floors and walls, posts, beams, insulation, eaves, roofs, vents, stairs, skylights, and connections.
  • Construction Notes / Detail(s): Shows basic parts and assemblies recommended for the home so the builder can see how things come together.
  • Door / Window Schedule(s): The schedule sheet includes the window, roof and foundation ventilation schedules, insulation and vapor barrier specifications, and exhaust fan ventilation schedule.

FAQs

Are designs on Houseplans ready to submit to my building department for permitting?

It depends on where you're building. Our plans contain enough information for a professional builder to construct your home, but your local government may require additional information before permitting. We strongly advise that you talk with your builder before you get started. If you are building for yourself, we recommend visiting your local building department to start your diligence. Read more here.

Can I make changes to a plan?

Absolutely! Our modification service allows you to customize almost anything - whether it's adding an extra garage bay, adjusting square footage, changing the roof pitch, or more, the plan modification service is a great value and can be completed quickly. Additionally, if you purchase an electronic plan set (PDF or CAD), you may have the option to make changes locally. CAD files offer the most flexibility for custom edits. Just let us know what you're thinking, and we’ll provide an estimate and timeframe to get started. Learn more here.

How much does a house cost to build?

Find out! Build costs vary based on the size of the home, materials used, and local rates for goods and labor. Our Cost to Build report is a great way to get some basic costs dialed in before you order your plans. Just plug in your postal code, select your desired construction quality, and we'll calculate for you.

Learn more about Cost to Build reports here.

Can I trust Houseplans?

Founded in 2004, Houseplans works with hundreds of architects and designers to offer their plans at a fraction of the price of custom design. Houseplans has an "Excellent" rating on TrustPilot.

Read more about us here.

Does Houseplans offer live support?

Yes, Houseplans has a dedicated team of house plan advisors with decades of experience between them. You can reach them by calling, emailing, filling out a form on the page of a plan that you like, or going to the Contact Us page. We're available to talk every day, even on weekends.

Builder Advantage Home

Builder Advantage Program

Are you a Pro Builder? Join the club, save 5% on your first order, get exclusive discounts, and more.

Learn More

You may also like

Save Plan
Craftsman

Plan 126-236

$1195.00

beds2

bd

baths2

ba

stories1

story

square feet988

sq ft

Save Plan
Traditional

Plan 20-2346

$1305.00

beds4

bd

baths2.5

ba

stories2

stories

square feet2257

sq ft

Save Plan
Victorian

Plan 410-3612

$1166.00

beds4

bd

baths4.5

ba

stories2

stories

square feet3574

sq ft

Recently viewed plans

Exterior - Front Elevation for Craftsman House Plan #132-565 - 5 bed, 5 bath
Save Plan

Plan 132-565

$6300.00

beds5

bd

baths5

ba

stories3

stories

square feet11000

sq ft